Don't lose your saved plans! Create an account to access your saves whenever you want.
See our Terms & Conditions and Privacy Policy.
- Jump to:
- All (3)
- Floor plans (2)
Key Specs
1412
sq ft
3
Beds
1.5
Baths
2
Floors
1
Garages
Get Personalized Help
We do our best to get back to you within 24 - 48 business hours.
Need an answer faster? Call now...
Phone: 1-877-222-1762
Phone: 1-877-222-1762
Hours:
Ready for Your Call 7 Days a Week
Every Day 7 am - 8:30 pm Eastern
See our Terms & Conditions and Privacy Policy.
Wow!
Cost to Build Reports
Only $1.99 Right Now
Use Code CTB2026
Use Code CTB2026
Our Cost to Build Report gives you a personalized estimate for building your home, based on your location, plan, and materials.
Get Cost To Build Report
Limit one per order.
Residential Construction Guide
Learn Building Basics
This downloadable, 26-page guide is full of diagrams and details about plumbing, electrical, and more.
PLAN 25-2170
This plan can be customized
Tell us about your desired changes so we can prepare an estimate for the design service. Click the button to submit your request for pricing, or call 1-877-222-1762 for assistance.
Plan Description
This victorian design floor plan is 1412 sq ft and has 3 bedrooms and 1.5 bathrooms.
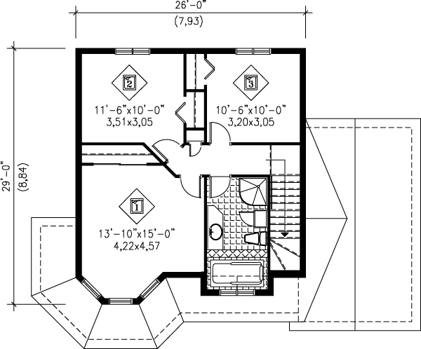
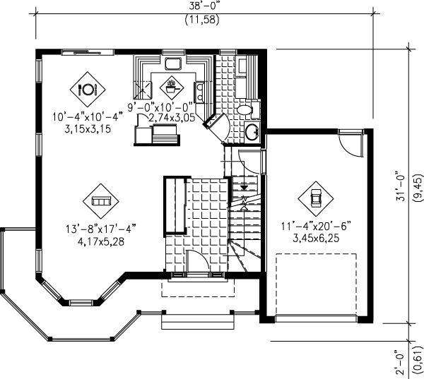
Floor Plans
Full Specs & Features
Dimension
Depth: 33'
Height: 30'
Width: 38'
Area
Basement: 698 sq/ft
Main Floor: 698 sq/ft
Upper Floor: 714 sq/ft
* Total Square Footage typically only includes conditioned space and does not include garages, porches, bonus rooms, or decks.
Bedroom Features
Upstairs Master Bedrooms
Additional Room Features
Master Sitting Area
Unfinished Future Space
Lot Characteristics
Suited For Narrow Lot
Outdoor Spaces
Wrap Around Porch
What's Included In This Plan Set
Plans are typically drawn to ¼” scale and include:
- Foundation Plan(s): This page shows all necessary notations and dimensions including footings, support columns, walls, and excavated/unexcavated areas.
- Floor Plan(s): Detailed plans for each level showing room dimensions, wall partitions, windows and doors, fixture locations, and ceiling treatments.
- Exterior Elevations: Views of the home from all four sides showing exterior materials, roof slope, ridge heights, siding and trim notes.
- Overhead Roof Plan(s): A view of the home from above showing roof pitch, peaks, valleys, and other details.
- Cross Section(s): A slice of the home from roof to foundation, showing relationships between floors, roof, and foundation.
- Construction Notes / Detail(s): Shows basic parts and assemblies recommended for the home so the builder can see how things come together.
Questions? Call 1-877-222-1762
Plan Set
PDF Set:
$920.00
$920.00
PDF plan sets are best for fast electronic delivery and inexpensive local printing.
5 Copy Set:
$965.00
$965.00
5 printed plan sets mailed to you.
5 Copy and PDF Set:
$1055.00
$1055.00
5 printed plan sets mailed to you plus PDF plan sets are best for fast electronic delivery and inexpensive local printing.
CAD and PDF Set:
$1940.00
$1940.00
For use by design professionals to make substantial changes to your house plan and inexpensive local printing plus PDF plan sets are best for fast electronic delivery and inexpensive local printing.
Foundation
Basement:
$0.00
$0.00
Ideal for level lot, lower level of home partially or fully underground.
Additional Options
Right-Reading Reverse:
$150.00
$150.00
Choose this option to reverse your plans and to have the text and dimensions readable.
Additional Construction Sets:
$50.00
$50.00
Additional hard copies of the plan (can be ordered at the time of purchase and within 90 days of the purchase date).
Audio Video Design:
$165.00
$165.00
Receive an overlay sheet with suggested placement of audio and video components.
Comprehensive Material List:
$295.00
$295.00
A complete list of building supplies needed to construct the infrastructure of your new house, plus an overlay of materials shown directly on your PDF (foundation to rooftop with interior and exterior materials), and a detailed, itemized door and window schedule showing all sizes and types. Please allow 5-7 Business Days for completion. Note, the Comprehensive list is only available with a PDF purchase. The Comprehensive list can be ordered no matter what additional plan options you have selected.
Construction Guide:
$39.00
$39.00
Educate yourself about basic building ideas with these four detailed diagrams that discuss electrical, plumbing, mechanical, and structural topics.
Lighting Design:
$165.00
$165.00
Receive an overlay sheet with suggested placement of lighting fixtures.
Material List:
$150.00
$150.00
A spreadsheet of building supplies needed to construct the infrastructure of your new house. Please note materials lists will not reflect add-ons such as alternate foundation and framing options.
Unlimited Use License:
$250.00
$250.00
Allows you to build this home as many times as you want.
* Alternate Foundations may take time to prepare.
** Options with a fee may take time to prepare. Please call to confirm.
Unless you buy an “unlimited” plan set or a multi-use license you may only build one home from a set of plans. Please call to verify if you intend to build more than once. Plan licenses are non-transferable and cannot be resold.



