- Jump to:
- All (6)
- Floor plans (2)
Key Specs
3148
sq ft
4
Beds
3
Baths
1
Floors
2
Garages
Phone: 1-877-222-1762
See our Terms & Conditions and Privacy Policy.
Use Code CTBFALL
Residential Construction Guide
Learn Building Basics
This downloadable, 26-page guide is full of diagrams and details about plumbing, electrical, and more.
PLAN 117-833
This plan can be customized
Tell us about your desired changes so we can prepare an estimate for the design service. Click the button to submit your request for pricing, or call 1-877-222-1762 for assistance.
Plan Description
Floor Plans
Full Specs & Features
Dimension
Depth : 63' 7"
Height : 23' 3"
Width : 53'
Area
Basement Living: 1574 sq/ft height 9'
First Floor: 1574 sq/ft
Garage: 624 sq/ft
Roof
Primary Pitch : 6:12
Roof Framing : Conventional
Roof Type : Shingle
Exterior Wall Framing
Exterior Wall Finish : Shingle/Siding
Framing : ICF (Insulated Concrete Forms)
Bedroom Features
Fireplace
Main Floor Master Bedroom
Split Bedrooms
Walk In Closet
Kitchen Features
Kitchen Island
Kitchenette Wet Bar
Additional Room Features
Den Office Study Computer
Family Room Keeping Room
Great Room Living Room
Loft
Vaulted / Cathedral Ceilings
Outdoor Spaces
Balcony
Courtyard
Covered Front Porch
Covered Rear Porch
Deck
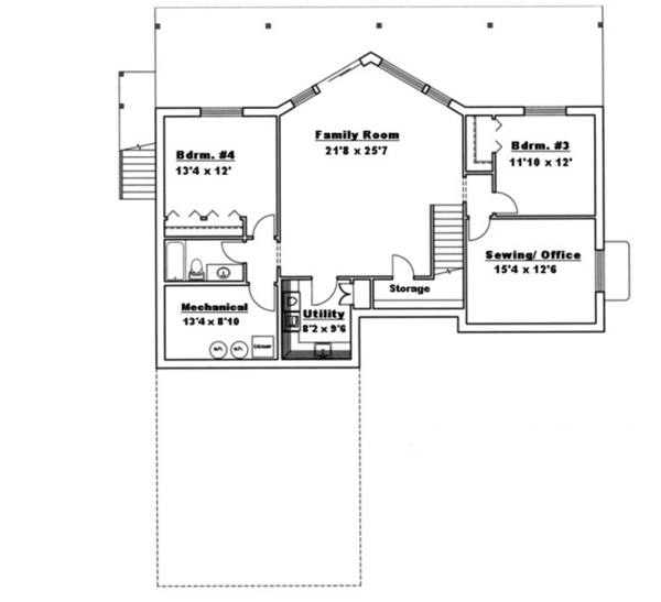
Rooms
Bedroom 2:
width 12' 6" x depth 10'
Bedroom 3:
width 11' 10" x depth 12'
Bedroom 4:
width 13' 4" x depth 12'
Dining Room:
width 14' 10" x depth 10' 10"
Family Room:
width 21' 8" x depth 25' 7"
Garage:
624 sq/ft width 23' x depth 25' 6"
Great Room:
width 21' 8" x depth 17' 3"
Kitchen:
width 11' 11" x depth 12' 2"
Master Suite:
width 15' 4" x depth 12' 4"
Mechanical Room:
width 13' 4" x depth 8' 10"
Sewing/Office:
width 15' 4" x depth 12' 6"
Utility Room:
width 8' 2" x depth 9' 6"
What's Included In This Plan Set
- Foundation Plan(s): Footing locations, foundation details, etc.
- Floor Plan(s): Layout of floor plan, window/door schedule, interior and exterior dimensions
- Exterior Elevations: Exterior on all four sides, siding notes, roof pitches, garage door heights, etc.
- Overhead Roof Plan(s): A view of the home from above showing roof pitch, peaks, valleys, and other details.
- Cross Section(s): Cut-through view of home. Shows foundation, insulation, wall construction, ceiling heights, etc.
- Electrical Plan(s): Lighting, switches, electrical outlet placement throughout home.
- Detail Sheet(s): Additional structural details included in most log and ICF plans. Important: design loads and weather conditions vary by region. As a result the size, spacing, and layout of all structural elements in this home design may need approval by a structural engineer or code official based on your specific site location.
- Construction Notes / Detail(s): Referencing the entirety of the project.
- Framing Detail(s): Location of supporting walls and beams. Location/spacing of floor joists, floor framing details. Layout of roof, roof framing details, truss/rafter locations, connection details etc. If included, the framing layout is intended to be a suggested layout only. Design loads and weather conditions vary by region. As a result the size, spacing, and layout of all structural elements in this home design may need approval by a structural engineer or code official based on your specific site location.
Plan Set
$1270.75
$1270.75
$1865.75
Foundation
$0.00
Framing
$0.00
Additional Options
$165.75
$140.25
$335.75
$33.15
$140.25
* Alternate Foundations may take time to prepare.
** Options with a fee may take time to prepare. Please call to confirm.
 
       
       
                 
                         
                         
                 
                 
                 
                 
                 
                 
                 
                 
                 
                 
                        


