- Jump to:
- All (3)
- Floor plans (2)
Key Specs
2812
sq ft
4
Beds
2.5
Baths
1
Floors
2
Garages
Phone: 1-877-222-1762
See our Terms & Conditions and Privacy Policy.
Use Code CTBFALL
Residential Construction Guide
Learn Building Basics
This downloadable, 26-page guide is full of diagrams and details about plumbing, electrical, and more.
PLAN 117-391
This plan can be customized
Tell us about your desired changes so we can prepare an estimate for the design service. Click the button to submit your request for pricing, or call 1-877-222-1762 for assistance.
Plan Description
Floor Plans
Full Specs & Features
Dimension
Depth : 53' 2"
Height : 27' 6"
Width : 81' 4"
Area
Basement Living: 1406 sq/ft
First Floor: 1406 sq/ft
Garage: 575 sq/ft
Ceiling
Main Ceiling : 9'
Roof
Primary Pitch : 7:12
Roof Framing : Truss
Exterior Wall Framing
Exterior Wall Finish : Siding
Framing : 2"x6"
Bedroom Features
Main Floor Master Bedroom
Walk In Closet
Kitchen Features
Breakfast Nook
Eating Bar
Kitchen Island
Additional Room Features
Great Room Living Room
Unfinished Future Space
Garage Features
Side Entry Garage
Lot Characteristics
Suited For Corner Lot
Suited For View Lot
Outdoor Spaces
Covered Front Porch
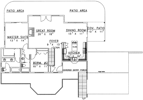
Rooms
Bedroom 2:
111 sq/ft width 10' 2" x depth 11'
Bedroom 3:
111 sq/ft width 10' 2" x depth 11'
Bedroom 4:
110 sq/ft width 10' 1" x depth 11'
Dining Room:
146 sq/ft width 13' 4" x depth 11'
Garage:
544 sq/ft width 23' 4" x depth 23' 4"
Great Room:
366 sq/ft width 20' x depth 18' 4"
Master Bedroom:
188 sq/ft width 13' 2" x depth 14' 4"
Mechanical/Equipment Room:
173 sq/ft width 12' 7" x depth 13' 9"
What's Included In This Plan Set
- Foundation Plan(s): Footing locations, foundation details, etc.
- Floor Plan(s): Layout of floor plan, window/door schedule, interior and exterior dimensions
- Exterior Elevations: Exterior on all four sides, siding notes, roof pitches, garage door heights, etc.
- Overhead Roof Plan(s): A view of the home from above showing roof pitch, peaks, valleys, and other details.
- Cross Section(s): Cut-through view of home. Shows foundation, insulation, wall construction, ceiling heights, etc.
- Electrical Plan(s): Lighting, switches, electrical outlet placement throughout home.
- Detail Sheet(s): Additional structural details included in most log and ICF plans. Important: design loads and weather conditions vary by region. As a result the size, spacing, and layout of all structural elements in this home design may need approval by a structural engineer or code official based on your specific site location.
- Construction Notes / Detail(s): Referencing the entirety of the project.
- Framing Detail(s): Location of supporting walls and beams. Location/spacing of floor joists, floor framing details. Layout of roof, roof framing details, truss/rafter locations, connection details etc. If included, the framing layout is intended to be a suggested layout only. Design loads and weather conditions vary by region. As a result the size, spacing, and layout of all structural elements in this home design may need approval by a structural engineer or code official based on your specific site location.
Plan Set
$1143.25
$1143.25
$1738.25
Foundation
$0.00
Additional Options
$165.75
$140.25
$250.75
$33.15
$140.25
* Alternate Foundations may take time to prepare.
** Options with a fee may take time to prepare. Please call to confirm.
 
       
       
                 
                         
                         
                 
                 
                 
                 
                 
                 
                 
                 
                 
                


