- Jump to:
- All (3)
- Floor plans (1)
Key Specs
1810
sq ft
3
Beds
2
Baths
1
Floors
2
Garages
Phone: 1-877-222-1762
See our Terms & Conditions and Privacy Policy.
Use Code CTBFALL
Residential Construction Guide
Learn Building Basics
This downloadable, 26-page guide is full of diagrams and details about plumbing, electrical, and more.
PLAN 20-116
This plan can be customized
Tell us about your desired changes so we can prepare an estimate for the design service. Click the button to submit your request for pricing, or call 1-877-222-1762 for assistance.
Plan Description
Floor Plans
Full Specs & Features
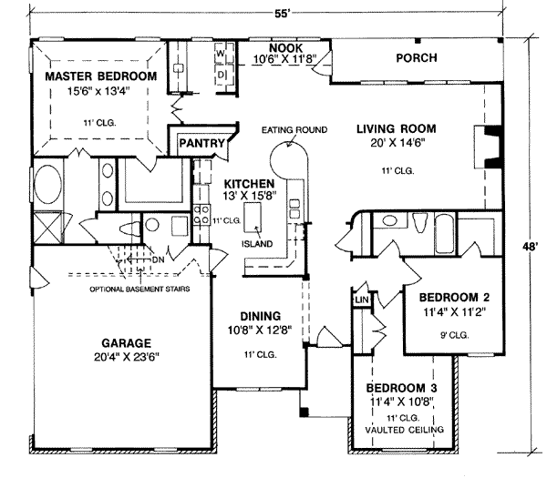
Dimension
Depth : 48'
Height : 25'
Width : 55'
Area
First Floor: 1810 sq/ft height 9'
Roof
Primary Pitch : 8:12
Roof Framing : Truss
Roof Type : Shingle
Secondary Pitch : 10:12
Exterior Wall Framing
Exterior Wall Finish : Brick/Siding
Framing : Wood - 2x4
Bedroom Features
Split Bedrooms
Walk In Closet
Kitchen Features
Breakfast Nook
Eating Bar
Kitchen Island
Walk In Pantry Cabinet Pantry
Additional Room Features
Great Room Living Room
Garage Features
Side Entry Garage
Lot Characteristics
Suited For Corner Lot
Suited For View Lot
Outdoor Spaces
Covered Rear Porch
Rooms
Bathroom 2:
48 sq/ft width 9' 8" x depth 5'
Bedroom 2:
126 sq/ft width 11' 4" x depth 11' 2"
Bedroom 3:
120 sq/ft width 11' 4" x depth 10' 8"
Dining Room:
135 sq/ft width 10' 8" x depth 12' 8"
Foyer:
65 sq/ft width 5' x depth 13'
Garage:
477 sq/ft width 20' 4" x depth 23' 6"
Kitchen:
203 sq/ft width 13' x depth 15' 8"
Living Room:
290 sq/ft width 20' x depth 14' 6"
Master Bathroom:
93 sq/ft width 9' 6" x depth 9' 10"
Master Bedroom:
206 sq/ft width 15' 6" x depth 13' 4"
Master Closet:
49 sq/ft width 8' 2" x depth 6'
Nook:
122 sq/ft width 10' 6" x depth 11' 8"
Pantry:
25 sq/ft width 7' 8" x depth 3' 4"
Utility Room:
44 sq/ft width 7' 8" x depth 5' 10"
What's Included In This Plan Set
- Foundation Plan(s): This page shows all necessary notations and dimensions including footings, support columns, walls, and excavated/unexcavated areas.
- Floor Plan(s): Detailed plans for each level showing room dimensions, wall partitions, windows and doors, fixture locations, and ceiling treatments.
- Exterior Elevations: Views of the home from all four sides showing exterior materials, roof slope, ridge heights, siding and trim notes.
- Overhead Roof Plan(s): A view of the home from above showing roof pitch, peaks, valleys, and other details.
- Cross Section(s): A slice of the home from roof to foundation, showing relationships between floors, roof, and foundation.
- Construction Notes / Detail(s): Shows basic parts and assemblies recommended for the home so the builder can see how things come together.
Plan Set
$939.25
$1190.00
Foundation
$0.00
$165.75
$165.75
Framing
$0.00
$165.75
Additional Options
$165.75
$140.25
$250.75
$33.15
$140.25
* Alternate Foundations may take time to prepare.
** Options with a fee may take time to prepare. Please call to confirm.
 
       
       
                 
                         
                 
                 
                 
                 
                 
                 
                 
                 
                


