- Jump to:
- All (4)
- Floor plans (2)
Phone: 1-877-222-1762
See our Terms & Conditions and Privacy Policy.
Use Code CTBFALL
Residential Construction Guide
Learn Building Basics
This downloadable, 26-page guide is full of diagrams and details about plumbing, electrical, and more.
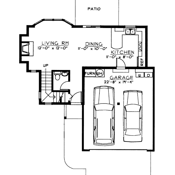
PLAN 96-206
This plan can be customized
Tell us about your desired changes so we can prepare an estimate for the design service. Click the button to submit your request for pricing, or call 1-877-222-1762 for assistance.
Plan Description
Floor Plans
Full Specs & Features
Dimension
Depth : 35'
Height : 25'
Width : 33' 6"
Area
First Floor: 562 sq/ft height 8'
Second Floor: 716 sq/ft
Ceiling
Main Ceiling : 8'
Upper Ceiling Ft : 8'
Roof
Primary Pitch : 7:12
Roof Framing : Truss
Roof Type : Shingle
Exterior Wall Framing
Exterior Wall Finish : Shingle/Siding
Framing : 2"x6"
Bedroom Features
Upstairs Master Bedrooms
Walk In Closet
Kitchen Features
Eating Bar
Lot Characteristics
Suited For Narrow Lot
More
Economical To Build
What's Included In This Plan Set
- Foundation Plan(s): Foundation or Basement Plan drawn at 1/4" = 1'-0" scale, and includes: All post and beam locations, door and window sizes, complete and accurate dimensions, all foundation wall and footing sizes, code-related notes, building section markers, floor and deck joist type, spacing and direction, mechanical equipment location, electrical layouts.
- Floor Plan(s): Floor Plans drawn at 1/4" = 1'-0" scale, and includes all post and beam locations, door and window sizes, complete and accurate dimensions, room labels and interior room sizes, electrical layouts, code-related notes, building section markers, floor joist type, spacing and direction
- Exterior Elevations: Elevations drawn at 1/4" = 1'-0" scale, and includes material labels, floor-to-floor heights, roof slope indicators, attic ventilation notes
- Overhead Roof Plan(s): Roof Plan drawn at 1/4" = 1'-0", and includes all beam and header locations, building section markers, code-related notes, all necessary notes pertaining to the structural system
- Cross Section(s): A slice of the home from roof to foundation, showing relationships between floors, roof, and foundation.
- Building Section(s): Building Sections drawn at 1/4" = 1'-0" scale, and includes beam connections and locations, floor joist type and spacing, floor-to-floor heights, non-typical plate heights indicated
- Construction Notes / Detail(s): Shows basic parts and assemblies recommended for the home so the builder can see how things come together.
- Other Note(s): Including miscellaneous framing details, stairway details and general notes covering code requirements for residential construction
Plan Set
$995.00
$1145.00
$1245.00
$1995.00
Foundation
$0.00
$150.00
$250.00
$350.00
Additional Options
$150.00
$50.00
$165.00
$39.00
$165.00
* Alternate Foundations may take time to prepare.
** Options with a fee may take time to prepare. Please call to confirm.



