- Jump to:
- All (5)
- Floor plans (2)
Key Specs
4693
sq ft
5
Beds
5.5
Baths
2
Floors
3
Garages
Phone: 1-877-222-1762
See our Terms & Conditions and Privacy Policy.
Use Code CTBFALL
Residential Construction Guide
Learn Building Basics
This downloadable, 26-page guide is full of diagrams and details about plumbing, electrical, and more.
PLAN 54-329
This plan can be customized
Tell us about your desired changes so we can prepare an estimate for the design service. Click the button to submit your request for pricing, or call 1-877-222-1762 for assistance.
Plan Description
Floor Plans
Full Specs & Features
Dimension
Depth : 56' 10"
Height : 34' 6"
Width : 72' 2"
Area
First Floor: 2197 sq/ft
Garage: 731 sq/ft
Second Floor: 2496 sq/ft
Roof
Roof Framing : Conventional
Roof Type : Asphalt
Exterior Wall Framing
Exterior Wall Finish : Brick/Stone
Framing : Wood - 2x4
Bedroom Features
Fireplace
Formal Dining Room
Guest Suite
Upstairs Master Bedrooms
Walk In Closet
Kitchen Features
Breakfast Nook
Additional Room Features
Den Office Study Computer
Master Sitting Area
Outdoor Spaces
Covered Front Porch
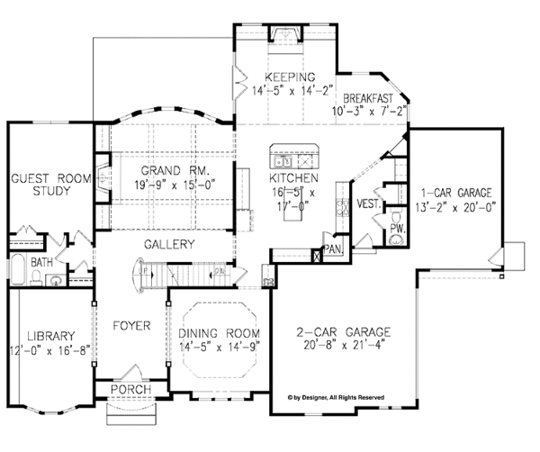
Rooms
Bedroom 2:
211 sq/ft width 14' 5" x depth 14' 8"
Bedroom 3:
174 sq/ft width 12' 1" x depth 14' 5"
Bedroom 4:
188 sq/ft width 12' x depth 15' 8"
Breakfast:
73 sq/ft width 10' 3" x depth 7' 2"
Dining Room:
212 sq/ft width 14' 5" x depth 14' 9"
Garage:
440 sq/ft width 20' 8" x depth 21' 4"
Garage Two:
263 sq/ft width 13' 2" x depth 20'
Grand Room:
296 sq/ft width 19' 9" x depth 15'
Keeping Room:
204 sq/ft width 14' 5" x depth 14' 2"
Kitchen:
279 sq/ft width 16' 5" x depth 17'
Library:
188 sq/ft width 12' x depth 15' 8"
Master Bedroom:
267 sq/ft width 17' 5" x depth 15' 4"
Master Sitting Room:
221 sq/ft width 14' 5" x depth 15' 4"
Rear Porch:
width 16' x depth 5' 8"
What's Included In This Plan Set
- Foundation Plan: Drawn to 1/4" scale, this page shows all necessary notations and dimensions including support columns, walls and excavated and unexcavated areas.
- Exterior Elevations: A blueprint picture of all four sides showing exterior materials and measurements.
- Floor Plan(s): Detailed plans, drawn to 1/4" scale for each level showing room dimensions, wall partitions, windows, etc. as well as the location of electrical outlets and switches.
- Cross Section: A vertical cutaway view of the house from roof to foundation showing details of framing, construction, flooring and roofing.
- Interior Elevations: Detailed drawings of kitchen cabinet elevations and other elements as required.
Plan Set
$2035.75
$3098.25
$3179.00
Foundation
$0.00
$0.00
$297.50
Framing
$0.00
$297.50
Additional Options
$212.50
$140.25
$335.75
$33.15
$140.25
* Alternate Foundations may take time to prepare.
** Options with a fee may take time to prepare. Please call to confirm.



