- Jump to:
- All (8)
- Floor plans (2)
Key Specs
4263
sq ft
4
Beds
4
Baths
2
Floors
3
Garages
Phone: 1-877-222-1762
See our Terms & Conditions and Privacy Policy.
Use Code CTBFALL
Residential Construction Guide
Learn Building Basics
This downloadable, 26-page guide is full of diagrams and details about plumbing, electrical, and more.
PLAN 137-312
This plan can be customized
Tell us about your desired changes so we can prepare an estimate for the design service. Click the button to submit your request for pricing, or call 1-877-222-1762 for assistance.
Plan Description
Floor Plans
Full Specs & Features
Dimension
Depth : 56' 8"
Height : 43'
Width : 98'
Area
Bonus: 669 sq/ft
First Floor: 2603 sq/ft height 10'
Second Floor: 1660 sq/ft height 9'
Roof
Roof Framing : Conventional
Roof Type : Shingle
Exterior Wall Framing
Exterior Wall Finish : Brick
Framing : Wood - 2x4
Bedroom Features
Fireplace
Formal Dining Room
Formal Living Room / Parlor
Main Floor Master Bedroom
Kitchen Features
Breakfast Nook
Kitchenette Wet Bar
Additional Room Features
Family Room Keeping Room
Hobby Rec Room Game Room
Loft
Main Floor Laundry
Open Floor Plan
Storage Area
Garage Features
Side Entry Garage
Outdoor Spaces
Balcony
Covered Front Porch
Covered Rear Porch
Rooms
Bathroom 3:
108 sq/ft width 6' 8" x depth 16' 4"
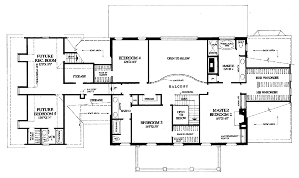
Bedroom 2:
266 sq/ft width 16' x depth 16' 8"
Bedroom 3:
182 sq/ft width 14' x depth 13'
Bedroom 3 Closet:
31 sq/ft width 5' 2" x depth 6'
Bedroom 4:
183 sq/ft width 12' 6" x depth 14' 8"
Bedroom 4 Closet:
39 sq/ft width 6' x depth 6' 6"
Breakfast Room:
151 sq/ft width 12' 6" x depth 12' 1"
Family Room:
357 sq/ft width 17' x depth 21'
Foyer:
182 sq/ft width 14' x depth 13'
Garage:
876 sq/ft width 24' x depth 36' 6"
Half Bathroom:
29 sq/ft width 7' 4" x depth 4'
Kitchen:
172 sq/ft width 12' 6" x depth 13' 10"
Living Room:
304 sq/ft width 16' x depth 19'
Master Bedroom:
270 sq/ft width 15' x depth 18'
Master Closet - Hers:
169 sq/ft width 15' x depth 11' 4"
Master Closet - Hers:
238 sq/ft width 16' x depth 14' 11"
Master Closet - Hers:
192 sq/ft width 13' x depth 14' 10"
Master Closet - His:
143 sq/ft width 11' x depth 13'
Porch - Front:
254 sq/ft width 29' 8" x depth 8' 7"
Porch - Rear:
481 sq/ft width 48' 2" x depth 10'
Powder Room:
45 sq/ft width 7' 6" x depth 6'
Utility Room:
81 sq/ft width 10' 8" x depth 7' 8"
What's Included In This Plan Set
All plans are drawn at ¼” scale or larger and include :
Plans are typically drawn to ¼” scale and include:
- Foundation Plan(s): This page shows all necessary notations and dimensions including footings, support columns, walls, and excavated/unexcavated areas.
- Floor Plan(s): Detailed plans for each level showing room dimensions, wall partitions, windows and doors, fixture locations, and ceiling treatments.
- Exterior Elevations: Views of the home from all four sides showing exterior materials, roof slope, ridge heights, siding and trim notes.
- Interior Elevations: Detailed drawings of kitchen cabinet elevations and other elements.
- Overhead Roof Plan(s): A view of the home from above showing roof pitch, peaks, valleys, and other details.
- Cross Section(s): A slice of the home from roof to foundation, showing relationships between floors, roof, and foundation.
- Building Section(s): Shows the relationship between different levels, wall heights, and the overall building volume. May include details like foundation, framing, insulation, and finishes.
- Electrical Plan(s): Shows the location of lights, receptacles, switches, etc. Some plans that do not include an electrical plan may have it available for an additional fee.
- Construction Notes / Detail(s): Shows basic parts and assemblies recommended for the home so the builder can see how things come together.
- Rendering(s): Designer’s rendering of front elevation
Plan Set
$1020.00
$1110.00
$1500.00
$1500.00
$900.00
Foundation
$0.00
Framing
$0.00
Additional Options
$55.00
$165.00
$395.00
$39.00
$165.00
$50.00
* Alternate Foundations may take time to prepare.
** Options with a fee may take time to prepare. Please call to confirm.



