- Jump to:
- All (31)
- Floor plans (3)
Phone: 1-877-222-1762
See our Terms & Conditions and Privacy Policy.
Use Code CTB2026
Residential Construction Guide
Learn Building Basics
This downloadable, 26-page guide is full of diagrams and details about plumbing, electrical, and more.
PLAN 928-400
This plan can be customized
Tell us about your desired changes so we can prepare an estimate for the design service. Click the button to submit your request for pricing, or call 1-877-222-1762 for assistance.
Plan Description
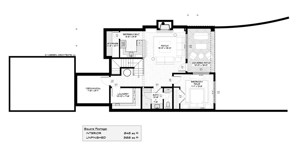
Floor Plans
Full Specs & Features
Dimension
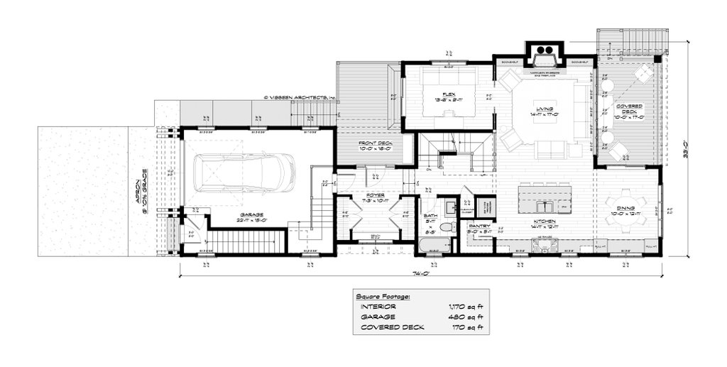
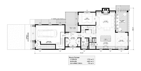
Depth : 74'
Width : 33'
Area
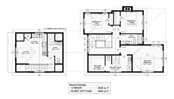
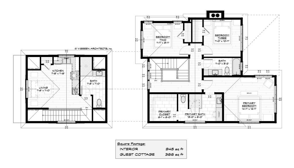
Bonus : 366 sq/ft
Garage : 480 sq/ft
Lower Floor : 793 sq/ft
Main Floor : 1170 sq/ft
Storage : 222 sq/ft
Upper Floor : 945 sq/ft
Ceiling
Bonus Ceiling : 9'
Ceiling Details : Vaulted ceiling in the upper level
Garage Ceiling : 10' 3"
Lower Ceiling : 8'
Main Ceiling : 9'
Upper Ceiling Ft : 9'
Roof
Primary Pitch : 12/12
Roof Framing : truss
Roof Type : Asphalt & metal
Secondary Pitch : 6/12
Exterior Wall Framing
Exterior Wall Finish : board & batten, shake, stone
Framing : 2x6
Bedroom Features
Lower Level Bedrooms
Upstairs Master Bedrooms
Walk In Closet
Kitchen Features
Breakfast Nook
Eating Bar
Kitchen Island
Kitchenette Wet Bar
Walk In Pantry Cabinet Pantry
Additional Room Features
Den Office Study Computer
Family Room Keeping Room
Hobby Rec Room Game Room
Media Room
Mud Room
Play Flex Room
Storage Area
Wet Bar
Garage Features
Front Entry Garage
Lot Characteristics
Suited For Narrow Lot
Suited For Sloping Lot
Suited For View Lot
Zero Lot Lines
Outdoor Spaces
Balcony
Covered Front Porch
Screened Porch
More
Empty Nester
Suited For Vacation Home
What's Included In This Plan Set
Please note: If you are building this plan in the state of Michigan, please give us a call to confirm availability. The designer has some geographic restrictions in Michigan.
All plans are drawn at ¼” scale or larger and include :Plans are typically drawn to ¼” scale and include:
- Foundation Plan(s): Drawn to 1/4" scale, this page shows all necessary notations and dimensions including support columns, walls and excavated and unexcavated areas.
- Floor Plan(s): Detailed plans, drawn to 1/4" scale for each level showing room dimensions, wall partitions, windows, etc.
- Exterior Elevations: A blueprint picture of all four sides showing exterior materials and measurements.
- Overhead Roof Plan(s): A view of the home from above showing roof pitch, peaks, valleys, and other details.
- Cross Section(s): A vertical cutaway view of the house from roof to foundation showing details of framing, construction, flooring and roofing. Important: If you are ordering a CAD set, or Right-Reading Reverse on this plan, please allow two weeks for delivery based on the current design schedule.
- Construction Notes and Detail(s): Shows basic parts and assemblies recommended for the home so the builder can see how things come together.
Plan Set
$1495.00
$3495.00
Foundation
$0.00
Framing
$0.00
Additional Options
$295.00
$295.00
$39.00
* Alternate Foundations may take time to prepare.
** Options with a fee may take time to prepare. Please call to confirm.



