- Jump to:
- All (8)
- Floor plans (3)
Key Specs
3770
sq ft
6
Beds
4
Baths
3
Floors
4
Garages
Phone: 1-877-222-1762
See our Terms & Conditions and Privacy Policy.
Use Code CTBFALL
Residential Construction Guide
Learn Building Basics
This downloadable, 26-page guide is full of diagrams and details about plumbing, electrical, and more.
PLAN 932-444
This plan can be customized
Tell us about your desired changes so we can prepare an estimate for the design service. Click the button to submit your request for pricing, or call 1-877-222-1762 for assistance.
Plan Description
Floor Plans
Full Specs & Features
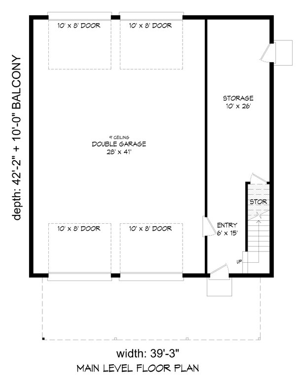
Dimension
Depth : 52' 2"
Height : 34' 6"
Width : 39' 3"
Area
Decks : 700 sq/ft
Garage : 1189 sq/ft
Lower Floor : 464 sq/ft
Main Floor : 1653 sq/ft
Upper Floor : 1653 sq/ft
Ceiling
Ceiling Details : third floor ceiling slopes 7' - 15'-8"
Garage Ceiling : 9'
Main Ceiling : 8'
Upper Ceiling Ft : 7'
Roof
Primary Pitch : 1.5:12
Roof Framing : Conventional
Exterior Wall Framing
Exterior Wall Finish : siding
Framing : 2x6
Bedroom Features
2 Master Suites
Walk In Closet
Kitchen Features
Breakfast Nook
Eating Bar
Additional Room Features
Great Room Living Room
Storage Area
Garage Features
Garage Under
Outdoor Spaces
Balcony
Covered Front Porch
More
Two Family Home
What's Included In This Plan Set
- Foundation Plan(s): This page shows all necessary notations and dimensions including support columns, walls, and excavated/unexcavated areas.
- Floor Plan(s): Detailed plans for each level showing room dimensions, wall partitions, windows and doors sizes, joist directions and beam locations.
- Exterior Elevations: Views of the home from all four sides showing exterior materials, roof slope, ridge heights, siding and trim notes.
- Overhead Roof Plan(s): A view of the home from above showing roof pitch, peaks, valleys, and other details.
- Cross Section(s): A slice of the home from roof to foundation, showing relationships between floors, roof, and foundation.
- Construction Notes / Detail(s): Shows basic parts and assemblies recommended for the home so the builder can see how things come together.
Plan Set
$2938.00
$3250.00
$3372.00
$3625.00
$2206.00
Foundation
$0.00
$300.00
$550.00
$650.00
Framing
$0.00
$200.00
Additional Options
$200.00
$63.00
$165.00
$39.00
$165.00
$400.00
$50.00
$250.00
* Alternate Foundations may take time to prepare.
** Options with a fee may take time to prepare. Please call to confirm.



