- Jump to:
- All (24)
- Floor plans (2)
Key Specs
3054
sq ft
5
Beds
4
Baths
2
Floors
2
Garages
Phone: 1-877-222-1762
See our Terms & Conditions and Privacy Policy.
Use Code CTBFALL
Residential Construction Guide
Learn Building Basics
This downloadable, 26-page guide is full of diagrams and details about plumbing, electrical, and more.
PLAN 54-324
This plan can be customized
Tell us about your desired changes so we can prepare an estimate for the design service. Click the button to submit your request for pricing, or call 1-877-222-1762 for assistance.
Plan Description
Floor Plans
Full Specs & Features
Dimension
Depth : 51'
Height : 30' 8"
Width : 55'
Area
First Floor: 1567 sq/ft
Garage: 436 sq/ft
Second Floor: 1487 sq/ft
Roof
Roof Framing : Conventional
Roof Type : Asphalt
Exterior Wall Framing
Exterior Wall Finish : Shingle/Stone
Framing : Wood - 2x4
Bedroom Features
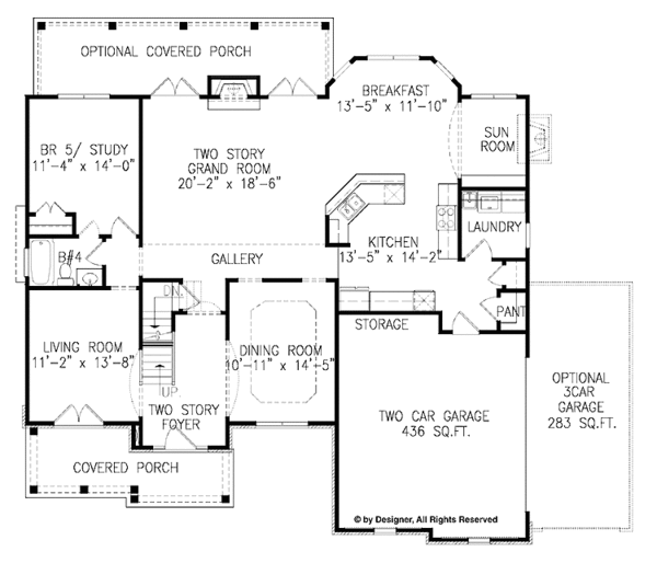
Formal Dining Room
Formal Living Room / Parlor
Upstairs Master Bedrooms
Walk In Closet
Kitchen Features
Breakfast Nook
Kitchen Island
Additional Room Features
Main Floor Laundry
Master Sitting Area
Outdoor Spaces
Covered Front Porch
Covered Rear Porch
Rooms
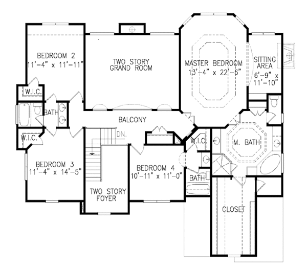
Bedroom 2:
135 sq/ft width 11' 4" x depth 11' 11"
Bedroom 3:
163 sq/ft width 11' 4" x depth 14' 5"
Bedroom 4:
120 sq/ft width 10' 11" x depth 11'
Bedroom 5:
158 sq/ft width 11' 4" x depth 14'
Breakfast:
158 sq/ft width 13' 5" x depth 11' 10"
Cedar Closet:
width 5' 7" x depth 4'
Dining Room:
157 sq/ft width 10' 11" x depth 14' 5"
Garage:
428 sq/ft width 20' x depth 21' 5"
Grand Room:
373 sq/ft width 20' 2" x depth 18' 6"
Kitchen:
190 sq/ft width 13' 5" x depth 14' 2"
Laundry Room:
49 sq/ft width 7' x depth 7'
Living Room:
152 sq/ft width 11' 2" x depth 13' 8"
Master Bathroom:
151 sq/ft width 14' 8" x depth 10' 4"
Master Bedroom:
299 sq/ft width 13' 4" x depth 22' 6"
Master Closet:
144 sq/ft width 9' x depth 16'
Master Sitting Area:
79 sq/ft width 6' 9" x depth 11' 10"
Sun Room:
68 sq/ft width 7' x depth 9' 9"
What's Included In This Plan Set
- Foundation Plan: Drawn to 1/4" scale, this page shows all necessary notations and dimensions including support columns, walls and excavated and unexcavated areas.
- Exterior Elevations: A blueprint picture of all four sides showing exterior materials and measurements.
- Floor Plan(s): Detailed plans, drawn to 1/4" scale for each level showing room dimensions, wall partitions, windows, etc. as well as the location of electrical outlets and switches.
- Cross Section: A vertical cutaway view of the house from roof to foundation showing details of framing, construction, flooring and roofing.
- Interior Elevations: Detailed drawings of kitchen cabinet elevations and other elements as required.
Plan Set
$1015.75
$1908.25
$1989.00
Foundation
$0.00
$297.50
$297.50
Framing
$0.00
$297.50
Additional Options
$212.50
$59.50
$140.25
$335.75
$33.15
$140.25
$46.75
* Alternate Foundations may take time to prepare.
** Options with a fee may take time to prepare. Please call to confirm.



