- Jump to:
- All (4)
- Floor plans (2)
Phone: 1-877-222-1762
See our Terms & Conditions and Privacy Policy.
Use Code CTBFALL
Residential Construction Guide
Learn Building Basics
This downloadable, 26-page guide is full of diagrams and details about plumbing, electrical, and more.
PLAN 406-223
This plan can be customized
Tell us about your desired changes so we can prepare an estimate for the design service. Click the button to submit your request for pricing, or call 1-877-222-1762 for assistance.
Plan Description
Floor Plans
Full Specs & Features
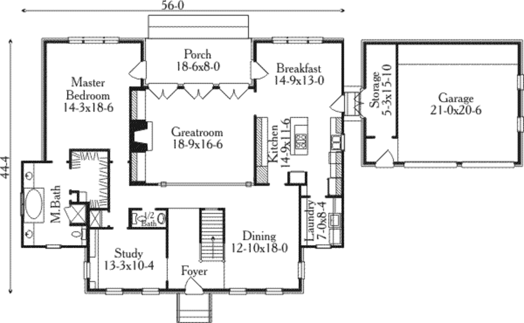
Dimension
Depth : 45'
Height : 32'
Width : 56'
Area
Garage : 616 sq/ft
Main Floor : 2111 sq/ft
Porch : 147 sq/ft
Upper Floor : 917 sq/ft
Ceiling
Main Ceiling : 10'
Upper Ceiling Ft : 8'
Roof
Primary Pitch : 10:12
Exterior Wall Framing
Framing : 2"x4"
Bedroom Features
Main Floor Master Bedroom
Walk In Closet
Kitchen Features
Breakfast Nook
Kitchen Island
Additional Room Features
Den Office Study Computer
Great Room Living Room
Loft
Storage Area
Garage Features
Detached Garage
Rear Garage
Lot Characteristics
Suited For View Lot
Outdoor Spaces
Balcony
Breezeway
What's Included In This Plan Set
- Cover Sheet: Outlines the design criteria and construction notes, such as general site, foundation, framing, and mechanical notes
- Foundation Plan(s): The foundation of your choice (slab or crawlspace - fee may apply)
- Floor Plan(s): Detailed plans for each level showing room dimensions, wall partitions, windows and doors, fixture locations, and ceiling treatments.
- Exterior Elevations: Views of the home from all four sides showing exterior materials, roof slope, ridge heights, siding and trim notes.
- Overhead Roof Plan(s): A view of the home from above showing roof pitch, peaks, valleys, and other details.
- Cross Section(s): A slice of the home from roof to foundation, showing relationships between floors, roof, and foundation.
- Electrical Plan(s): Shows the location of lights, receptacles, switches, etc. Some plans that do not include an electrical plan may have it available for an additional fee.
- Kitchen Cabinet Elevation(s): Detailed drawings of kitchen cabinet elevations.
- Construction Notes / Detail(s): Shows basic parts and assemblies recommended for the home so the builder can see how things come together.
Plan Set
$1460.00
$1805.00
$1980.00
$2415.00
Foundation
$0.00
$350.00
$350.00
Framing
$0.00
Additional Options
$165.00
$395.00
$39.00
$165.00
* Alternate Foundations may take time to prepare.
** Options with a fee may take time to prepare. Please call to confirm.



