- Jump to:
- All (4)
- Floor plans (2)
Key Specs
2923
sq ft
3
Beds
2.5
Baths
2
Floors
3
Garages
Phone: 1-877-222-1762
See our Terms & Conditions and Privacy Policy.
Use Code CTBFALL
Residential Construction Guide
Learn Building Basics
This downloadable, 26-page guide is full of diagrams and details about plumbing, electrical, and more.
PLAN 70-848
This plan can be customized
Tell us about your desired changes so we can prepare an estimate for the design service. Click the button to submit your request for pricing, or call 1-877-222-1762 for assistance.
Plan Description
Floor Plans
Full Specs & Features
Dimension
Depth : 65' 9"
Height : 33'
Width : 100' 7"
Area
First Floor: 2168 sq/ft
Garage: 991 sq/ft
Second Floor: 755 sq/ft
Roof
Primary Pitch : 12:12
Roof Framing : Truss
Roof Type : Shingle
Secondary Pitch : 9:12
Exterior Wall Framing
Exterior Wall Finish : Siding/Stone
Framing : 2"x6"
Bedroom Features
Main Floor Master Bedroom
Walk In Closet
Kitchen Features
Breakfast Nook
Kitchen Island
Walk In Pantry Cabinet Pantry
Additional Room Features
Great Room Living Room
Loft
Play Flex Room
Storage Area
Sunroom
Garage Features
Oversized Garage
Outdoor Spaces
Balcony
Screened Porch
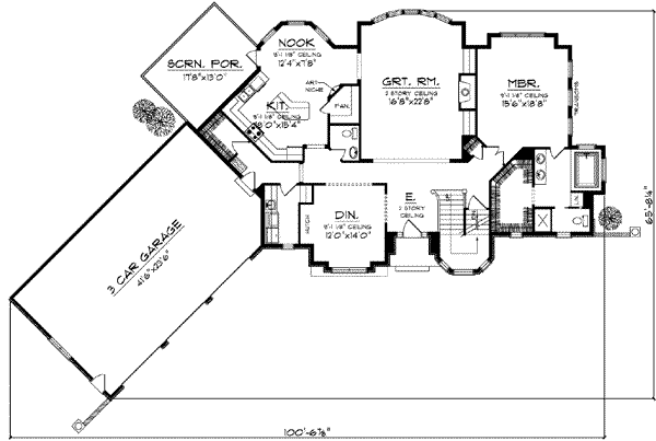
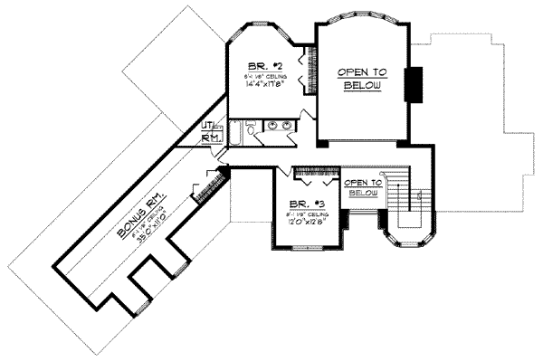
Rooms
Basement Foundation:
6613 sq/ft width 100' 7" x depth 65' 9"
Bathroom 2:
30 sq/ft width 5' x depth 6'
Bedroom 2:
253 sq/ft width 14' 4" x depth 17' 8"
Bedroom 3:
152 sq/ft width 12' x depth 12' 8"
Bedroom 3 Closet:
16 sq/ft width 8' x depth 2'
Bonus Room - Finished:
385 sq/ft width 35' x depth 11'
Breakfast Room:
94 sq/ft width 12' 4" x depth 7' 8"
Dining Room:
168 sq/ft width 12' x depth 14'
Foyer:
72 sq/ft width 8' 8" x depth 8' 4"
Garage:
975 sq/ft width 41' 6" x depth 23' 6"
Gathering Room:
377 sq/ft width 16' 8" x depth 22' 8"
Hall:
132 sq/ft width 38' 8" x depth 3' 5"
Hall Bathroom:
63 sq/ft width 12' 8" x depth 5'
Hall Closet:
6 sq/ft width 3' x depth 2'
Kitchen:
275 sq/ft width 18' x depth 15' 4"
Laundry Room:
60 sq/ft width 6' x depth 10'
Master Bathroom:
159 sq/ft width 11' 5" x depth 14'
Master Bedroom:
289 sq/ft width 15' 6" x depth 18' 8"
Master Closet:
85 sq/ft width 7' x depth 12' 3"
Master Closet Two:
18 sq/ft width 2' x depth 9'
Mud Room:
32 sq/ft width 6' 6" x depth 5'
Pantry:
32 sq/ft width 5' x depth 6' 5"
Porch - Front:
38 sq/ft width 7' 8" x depth 5'
Porch - Screened:
229 sq/ft width 17' 8" x depth 13'
Utility Room:
93 sq/ft width 9' 8" x depth 9' 8"
Walk-In Closet:
35 sq/ft width 5' x depth 7'
What's Included In This Plan Set
- Cover Sheet: Cover sheet with front rendering
- Foundation Plan(s): Foundation plans at 1/4" = 1' scale
- Floor Plan(s): Floor plans at 1/4" = 1' scale
- Exterior Elevations: Exterior elevations of all four views, front at 1/4" = 1' scale, rear and sides vary from 1/8" to 1/4" = 1' scale
- Overhead Roof Plan(s): A view of the home from above showing roof pitch, peaks, valleys, and other details.
- Cross Section(s): A slice of the home from roof to foundation, showing relationships between floors, roof, and foundation.
- Building Section(s): Building sections and details as required to construct the individual design
- Electrical Plan(s): Schematic electrical plans with suggested switch, outlet, and light fixture locations
- Kitchen Cabinet Elevation(s): Interior elevation of cabinets at 1/4" = 1' scale
- Construction Notes / Detail(s): Shows basic parts and assemblies recommended for the home so the builder can see how things come together.
- Specification(s): General specification design notes
Plan Set
$1204.00
$1250.00
$1505.00
$1505.00
$2408.00
Foundation
$0.00
$395.00
$395.00
Additional Options
$395.00
$80.00
$165.00
$295.00
$39.00
$165.00
$75.00
* Alternate Foundations may take time to prepare.
** Options with a fee may take time to prepare. Please call to confirm.



