- Jump to:
- All (5)
- Floor plans (2)
Phone: 1-877-222-1762
See our Terms & Conditions and Privacy Policy.
Use Code CTB2026
Residential Construction Guide
Learn Building Basics
This downloadable, 26-page guide is full of diagrams and details about plumbing, electrical, and more.
PLAN 53-699
This plan can be customized
Tell us about your desired changes so we can prepare an estimate for the design service. Click the button to submit your request for pricing, or call 1-877-222-1762 for assistance.
Plan Description
Floor Plans
Full Specs & Features
Dimension
Depth : 50'
Height : 27' 4"
Width : 40'
Area
Garage : 462 sq/ft
Main Floor : 1489 sq/ft
Patios : 120 sq/ft
Porch : 117 sq/ft
Upper Floor : 1037 sq/ft
Ceiling
Main Ceiling : 9' 1"
Upper Ceiling Ft : 8' 1"
Roof
Primary Pitch : 12/10
Roof Framing : TRUSS
Roof Load : 47 p.s.f.
Roof Type : Hip and Gable
Secondary Pitch : 12/5
Exterior Wall Framing
Exterior Wall Finish : double wall
Framing : 2x6
Insulation : r-23
Bedroom Features
Main Floor Bedrooms
Main Floor Master Bedroom
Split Bedrooms
Upstairs Bedrooms
Walk In Closet
Kitchen Features
Breakfast Nook
Eating Bar
Kitchen Island
Additional Room Features
Den Office Study Computer
Exercise Room
Great Room Living Room
Hobby Rec Room Game Room
Main Floor Laundry
Play Flex Room
Garage Features
Front Entry Garage
Outdoor Spaces
Covered Front Porch
Covered Rear Porch
What's Included In This Plan Set
- Foundation Plan: Drawn to 1/4" scale, this page shows all necessary notations and dimensions including support columns, walls and excavated and unexcavated areas.
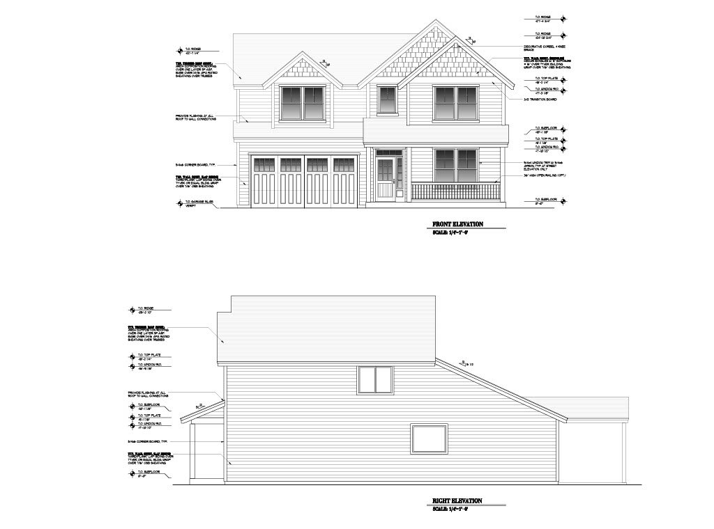
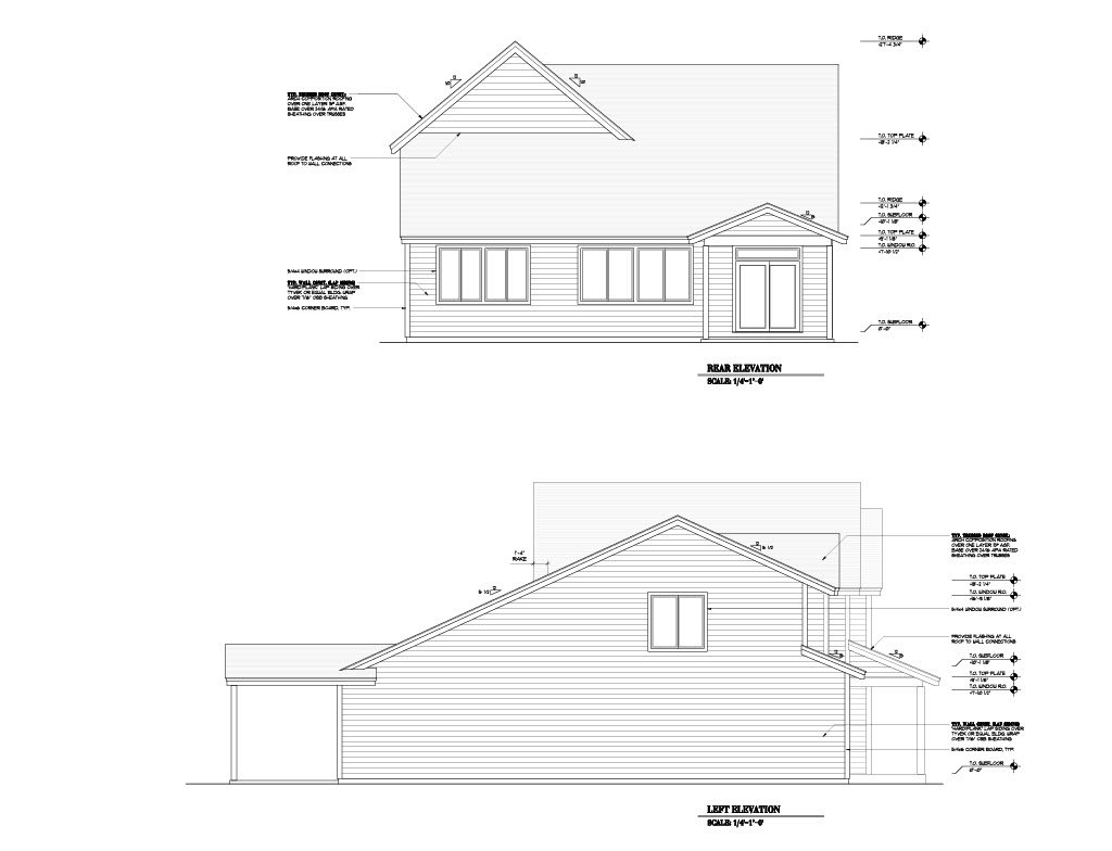
- Exterior Elevations: A blueprint picture of all four sides showing exterior materials and measurements.
- Floor Plan(s): Detailed plans, drawn to 1/4" scale for each level showing room dimensions, wall partitions, windows, etc.
- Cross Section: A vertical cutaway view of the house from roof to foundation showing details of framing, construction, flooring and roofing.
Plan Set
$1525.75
$2375.75
$2460.75
$4294.20
$4294.20
$4294.20
Foundation
$0.00
$0.00
$233.75
Framing
$0.00
$0.00
$297.50
Additional Options
$170.00
$140.25
$250.75
$33.15
$140.25
$4294.20
* Alternate Foundations may take time to prepare.
** Options with a fee may take time to prepare. Please call to confirm.



