- Jump to:
- All (7)
- Floor plans (2)
Key Specs
2087
sq ft
2
Beds
3
Baths
2
Floors
4
Garages
Phone: 1-877-222-1762
See our Terms & Conditions and Privacy Policy.
Use Code CTBFALL
Residential Construction Guide
Learn Building Basics
This downloadable, 26-page guide is full of diagrams and details about plumbing, electrical, and more.
PLAN 932-988
This plan can be customized
Tell us about your desired changes so we can prepare an estimate for the design service. Click the button to submit your request for pricing, or call 1-877-222-1762 for assistance.
Plan Description
Floor Plans
Full Specs & Features
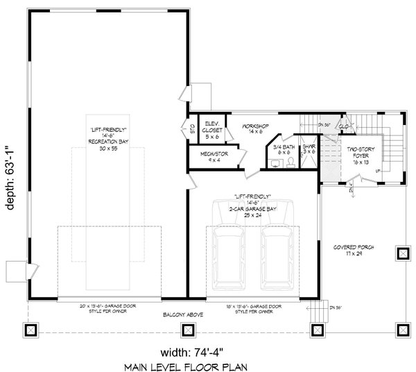
Dimension
Depth : 63' 1"
Height : 45' 1"
Width : 74' 4"
Area
Bonus : 1743 sq/ft
Decks : 1931 sq/ft
Garage : 629 sq/ft
Lower Floor : 292 sq/ft
Porch : 473 sq/ft
Upper Floor : 1795 sq/ft
Ceiling
Ceiling Details : Upstairs ceilings vaulted from 9'-0" to 19'-8"
Lower Ceiling : 14' 6"
Roof
Primary Pitch : 3:12
Roof Framing : gable
Roof Load : 45
Roof Type : engineered roof frame
Exterior Wall Framing
Exterior Wall Finish : siding/stone/stucco
Framing : 2x6
Bedroom Features
Upstairs Master Bedrooms
Walk In Closet
Kitchen Features
Eating Bar
Kitchen Island
Additional Room Features
Great Room Living Room
Storage Area
Upstairs Laundry
Workshop
Garage Features
Front Entry Garage
Oversized Garage
Outdoor Spaces
Balcony
Covered Front Porch
What's Included In This Plan Set
- Foundation Plan(s): This page shows all necessary notations and dimensions including support columns, walls, and excavated/unexcavated areas.
- Floor Plan(s): Detailed plans for each level showing room dimensions, wall partitions, windows and doors sizes, joist directions and beam locations.
- Exterior Elevations: Views of the home from all four sides showing exterior materials, roof slope, ridge heights, siding and trim notes.
- Overhead Roof Plan(s): A view of the home from above showing roof pitch, peaks, valleys, and other details.
- Cross Section(s): A slice of the home from roof to foundation, showing relationships between floors, roof, and foundation.
- Construction Notes / Detail(s): Shows basic parts and assemblies recommended for the home so the builder can see how things come together.
Plan Set
$1688.00
$1894.00
$1965.00
$2375.00
$1269.00
Foundation
$0.00
$200.00
$450.00
$550.00
Framing
$0.00
$200.00
Additional Options
$200.00
$44.00
$165.00
$165.00
$295.00
$50.00
$250.00
* Alternate Foundations may take time to prepare.
** Options with a fee may take time to prepare. Please call to confirm.



