- Jump to:
- All (6)
- Floor plans (2)
Phone: 1-877-222-1762
See our Terms & Conditions and Privacy Policy.
Use Code CTBFALL
Residential Construction Guide
Learn Building Basics
This downloadable, 26-page guide is full of diagrams and details about plumbing, electrical, and more.
PLAN 923-118
This plan can be customized
Tell us about your desired changes so we can prepare an estimate for the design service. Click the button to submit your request for pricing, or call 1-877-222-1762 for assistance.
Plan Description
Floor Plans
Full Specs & Features
Dimension
Depth : 45' 6"
Height : 26'
Width : 42' 2"
Area
Main Floor : 1353 sq/ft
Porch : 369 sq/ft
Upper Floor : 604 sq/ft
Ceiling
Ceiling Details : Vaulted Master Bedroom & Great Room
Main Ceiling : 9'
Upper Ceiling Ft : 8'
Roof
Primary Pitch : 10:12
Roof Framing : Stick
Roof Type : Metal
Exterior Wall Framing
Exterior Wall Finish : Siding
Framing : 2 x 4
Bedroom Features
Main Floor Master Bedroom
Upstairs Bedrooms
Walk In Closet
Kitchen Features
Breakfast Nook
Eating Bar
Walk In Pantry Cabinet Pantry
Additional Room Features
Great Room Living Room
Main Floor Laundry
Mud Room
Lot Characteristics
Suited For Narrow Lot
Outdoor Spaces
Covered Front Porch
More
Economical To Build
Empty Nester
Rooms
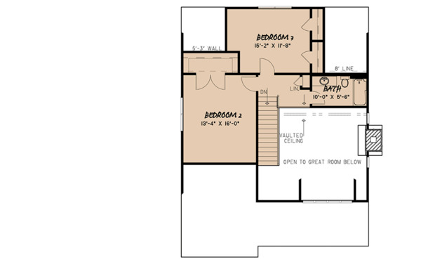
Bedroom 2:
width 13' 4" x depth 16'
Bedroom 3:
width 15' 2" x depth 11' 8"
Breakfast Room:
width 15' x depth 11' 6"
Hall Bath :
width 10' x depth 5' 6"
Kitchen:
width 11' 2" x depth 13'
Laundry:
width 9' 10" x depth 6' 10"
Master Bath:
width 13' 4" x depth 12' 10"
Master Bedroom:
width 13' 4" x depth 16' 6"
Mud Room:
width 7' x depth 7' 8"
What's Included In This Plan Set
- Foundation Plan(s): Most plans are available with a slab or crawlspace foundation. Optional walkout style basement (three walls masonry with a wood framed rear wall with notes for the builder to locate the windows and doors) and optional full basement foundation available if the plan allows, at an additional cost. (Walk out is not shown on elevations unless finished walk out.)
- Floor Plan(s): Each home plan includes the floor plan showing the dimensioned locations of walls, doors, and windows as well as a schematic electrical layout.
- Exterior Elevations: All plans include the exterior elevations (front, rear, right and left) that show and describe the finished materials of the house.
- Overhead Roof Plan(s): This is a “bird’s eye” view showing the roof slopes, ridges, valleys and any saddles.
- Cross Section(s): Cross section views available for an additional fee.
- Building Section(s): The building sections are vertical cuts through the house and the stairs showing floor, ceiling and roof height information. **Cross section views available for an additional fee. ** (cut throughs where applicable)
- Construction Notes / Detail(s): These are included for many interior and exterior conditions that require more specific information for their construction.
Plan Set
$1020.00
$1105.00
$1317.50
$1615.00
$2040.00
$2635.00
Foundation
$0.00
$0.00
Framing
$0.00
$254.15
Additional Options
$254.15
$68.00
$140.25
$250.75
$33.15
$140.25
* Alternate Foundations may take time to prepare.
** Options with a fee may take time to prepare. Please call to confirm.



