- Jump to:
- All (4)
- Floor plans (1)
Key Specs
1901
sq ft
3
Beds
2
Baths
1
Floors
2
Garages
Phone: 1-877-222-1762
See our Terms & Conditions and Privacy Policy.
Use Code CTBFALL
Residential Construction Guide
Learn Building Basics
This downloadable, 26-page guide is full of diagrams and details about plumbing, electrical, and more.
PLAN 417-698
This plan can be customized
Tell us about your desired changes so we can prepare an estimate for the design service. Click the button to submit your request for pricing, or call 1-877-222-1762 for assistance.
Plan Description
Floor Plans
Full Specs & Features
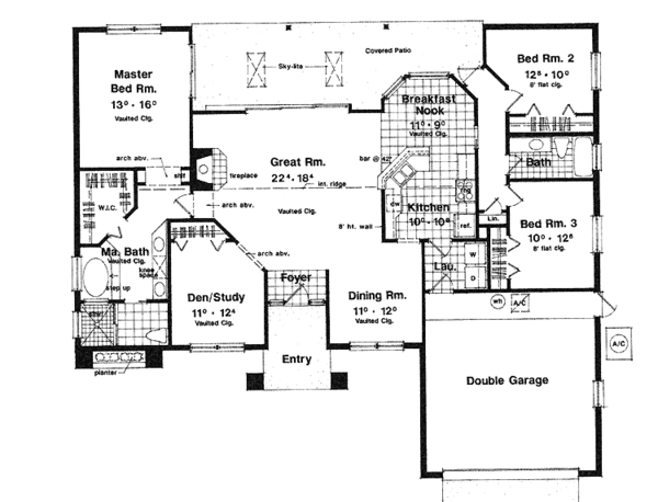
Dimension
Depth : 53' 8"
Height : 20'
Width : 62'
Area
First Floor: 1901 sq/ft
Roof
Primary Pitch : 6:12
Roof Framing : Truss
Roof Type : Shingle
Exterior Wall Framing
Exterior Wall Finish : Stucco
Framing : Block
Bedroom Features
Fireplace
Formal Dining Room
Main Floor Master Bedroom
Split Bedrooms
Walk In Closet
Kitchen Features
Breakfast Nook
Kitchenette Wet Bar
Additional Room Features
Den Office Study Computer
Family Room Keeping Room
Great Room Living Room
Open Floor Plan
Outdoor Spaces
Courtyard
Covered Front Porch
Rooms
Bedroom 2:
width 12' 5" x depth 10'
Bedroom 3:
width 10' x depth 12' 6"
Breakfast:
width 11' x depth 9'
Den:
width 11' x depth 12' 4"
Dining Room:
width 11' x depth 12'
Great Room:
width 22' 4" x depth 18' 4"
Master Bathroom:
154 sq/ft width 10' 4" x depth 15'
Master Bedroom:
width 13' x depth 16'
What's Included In This Plan Set
All plans are drawn at ¼” scale or larger and include :
- Foundation Plan: This page shows all necessary notations and dimensions including support columns, walls, and excavated/unexcavated areas.
- Exterior Elevations: Views of the home from all four sides showing exterior materials and measurements.
- Floor Plan(s): Detailed plans for each level showing room dimensions, wall partitions, windows and doors, etc.
- Cross Section: A slice of the home from roof to foundation, showing important details like stairs and wall construction.
- Overhead Roof Plan(s): A view of the home from above showing roof pitch, peaks, valleys, and other details.
- Construction Notes and Details: Shows the builder how things come together, like walls, the chimney, insulation, and more.
Plan Set
$807.50
$977.50
$1105.00
$1615.00
$510.00
Foundation
$0.00
Framing
$0.00
Additional Options
$42.50
$85.00
$33.15
$85.00
$25.50
* Alternate Foundations may take time to prepare.
** Options with a fee may take time to prepare. Please call to confirm.



