- Jump to:
- All (5)
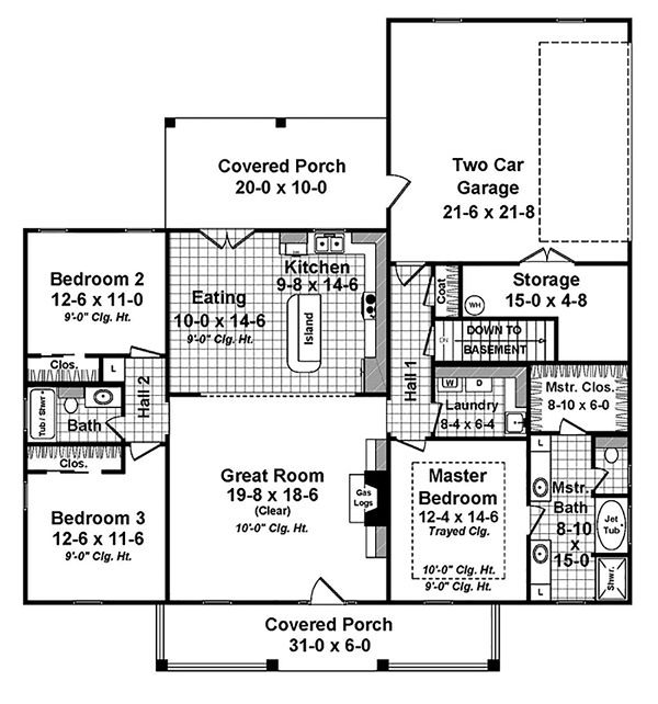
- Floor plans (1)
Key Specs
1657
sq ft
3
Beds
2
Baths
1
Floors
2
Garages
Phone: 1-877-222-1762
See our Terms & Conditions and Privacy Policy.
Use Code CTB2026
Residential Construction Guide
Learn Building Basics
This downloadable, 26-page guide is full of diagrams and details about plumbing, electrical, and more.
PLAN 21-393
This plan can be customized
Tell us about your desired changes so we can prepare an estimate for the design service. Click the button to submit your request for pricing, or call 1-877-222-1762 for assistance.
Plan Description
Floor Plans
Full Specs & Features
Dimension
Depth : 55'
Height : 23' 9"
Width : 59'
Area
Garage: 486 sq/ft
SubBasement Living: 1657 sq/ft height 9'
Ceiling
Main Ceiling : 9'
Roof
Primary Pitch : 8:12
Roof Framing : 2x4
Roof Load : 40 psf
Roof Type : Hip
Secondary Pitch : 4:12
Exterior Wall Framing
Exterior Wall Finish : Brick
Framing : 2x4
Bedroom Features
Split Bedrooms
Walk In Closet
Kitchen Features
Kitchen Island
Additional Room Features
Great Room Living Room
Storage Area
Garage Features
Rear Garage
Side Entry Garage
Outdoor Spaces
Covered Front Porch
Covered Rear Porch
What's Included In This Plan Set
- Cover Sheet: Color rendering or black and white image of the exterior
- Foundation Plan(s): Drawn to 1/4" scale, this page shows all necessary notations and dimensions including support columns, walls and excavated and unexcavated areas.
- Floor Plan(s): Detailed plans, drawn to 1/4" scale for each level showing room dimensions, wall partitions, windows, etc. as well as the location of electrical outlets and switches.
- Exterior Elevations: A blueprint picture of all four sides showing exterior materials and measurements.
- Interior Elevations: Where applicable, each house plan set includes relevant interior elevations, including cabinets, cabinet details, columns and walls with unique conditions.
- Overhead Roof Plan(s): Overhead view of roof.
- Cross Section(s): A vertical cutaway view of the house from roof to foundation showing details of framing, construction, flooring and roofing.
- Electrical Plan(s): Lighting, outlets, switches, detectors, etc.
- Kitchen Cabinet Elevation(s): Scaled drawings of interior cabinets.
- Construction Notes and Detail(s): Shows basic parts and assemblies recommended for the home so the builder can see how things come together.
- Framing Detail(s): Ceiling joist size and spacing and layouts. If included, the framing layout is intended to be a suggested layout only. Design loads and weather conditions vary by region. As a result the size, spacing, and layout of all structural elements in this home design may need approval by a structural engineer or code official based on your specific site location.
- Wall Section(s): Exterior wall and roof sections and specialty details.
Plan Set
$1105.00
$1190.00
$1360.00
$1657.50
$977.50
Foundation
$0.00
Additional Options
$127.50
$55.25
$140.25
$33.15
$140.25
$127.50
$42.50
* Alternate Foundations may take time to prepare.
** Options with a fee may take time to prepare. Please call to confirm.



