- Jump to:
- All (5)
- Floor plans (1)
Phone: 1-877-222-1762
See our Terms & Conditions and Privacy Policy.
Residential Construction Guide
Learn Building Basics
This downloadable, 26-page guide is full of diagrams and details about plumbing, electrical, and more.
PLAN 124-1154
This plan can be customized
Tell us about your desired changes so we can prepare an estimate for the design service. Click the button to submit your request for pricing, or call 1-877-222-1762 for assistance.
Plan Description
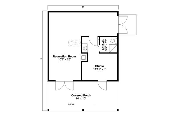
Floor Plans
Full Specs & Features
Dimension
Depth : 34'
Height : 20' 1"
Width : 24'
Area
Main Floor : 576 sq/ft
Porch : 240 sq/ft
Ceiling
Main Ceiling : 10'
Roof
Primary Pitch : 8/12
Roof Framing : Truss
Roof Load : 25
Exterior Wall Framing
Exterior Wall Finish : Lap Siding
Framing : 2x6
Bedroom Features
Main Floor Bedrooms
Additional Room Features
Hobby Rec Room Game Room
Lot Characteristics
Suited For Narrow Lot
Outdoor Spaces
Covered Front Porch
More
Additional Half Bath
Economical To Build
Energy Efficient Features
Energy Efficient Design
What's Included In This Plan Set
Each plan set is drawn at 1/4"=1' scale and includes the following drawings:
- Artist's Rendering: An artist's drawing of the home, usually viewed from the front, and general construction notes.
- Elevations: Shows the front, sides, and rear, including exterior materials, trim sizes, roof pitches, etc.
- Main Floor Plan: Shows placement and dimensions of walls, doors, & windows. Includes the location of appliances, plumbing fixtures, beams, ceiling heights, etc.
- Second Floor Plan (if any): Shows the second floor in the same detail as the main floor. Includes second floor framing and details.
- Foundation Plan: Shows the location of all concrete footings, floor beams, first floor framing, and foundation details. If there is a basement, a basement plan is included which shows all basement details. Foundation types vary; please call to confirm the foundation type of the plan you are interested in.
- Floor Framing Plan (if any): Shows location and spacing of floor joists and supporting walls or beams.
- Roof Framing Plan: Shows roof outlines, conventional framing/trusses, beams, roof framing details, etc. Specific details such as fireplaces, stairways, decks, etc. Details are drawn at 1/2" = 1' scale, and appear as needed throughout the prints.
- Section: Shows a cross-section of the home. Shows support members, exterior and interior materials, insulation, and foundation.
- Electrical Plan: A schematic layout of all lighting, switches and electrical outlets.
Plan Set
$265.00
$315.00
$525.00
$580.00
$655.00
$185.00
Foundation
$0.00
Framing
$0.00
$50.00
Additional Options
$45.00
$15.00
$185.00
$165.00
$295.00
$39.00
$165.00
* Alternate Foundations may take time to prepare.
** Options with a fee may take time to prepare. Please call to confirm.



