- Jump to:
- All (4)
- Floor plans (2)
Key Specs
5533
sq ft
4
Beds
4.5
Baths
2
Floors
3
Garages
Phone: 1-877-222-1762
See our Terms & Conditions and Privacy Policy.
Use Code CTB2026
Residential Construction Guide
Learn Building Basics
This downloadable, 26-page guide is full of diagrams and details about plumbing, electrical, and more.
PLAN 952-53
This plan can be customized
Tell us about your desired changes so we can prepare an estimate for the design service. Click the button to submit your request for pricing, or call 1-877-222-1762 for assistance.
Plan Description
Floor Plans
Full Specs & Features
Dimension
Depth : 85' 6"
Height : 31'
Width : 96' 5"
Area
First Floor: 3359 sq/ft
Second Floor: 2174 sq/ft
Roof
Primary Pitch : 12:12
Roof Framing : Conventional
Roof Type : Shingle
Exterior Wall Framing
Exterior Wall Finish : Siding
Framing : Wood - 2x4
Bedroom Features
Fireplace
Formal Living Room / Parlor
Additional Room Features
Den Office Study Computer
Family Room Keeping Room
Hobby Rec Room Game Room
Outdoor Spaces
Wrap Around Porch
Rooms
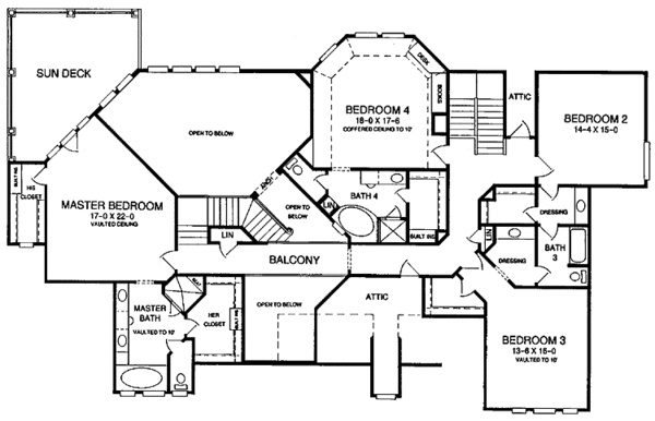
Bathroom 2:
90 sq/ft width 7' 4" x depth 12' 4"
Bathroom 3:
58 sq/ft width 7' 4" x depth 8'
Bathroom 4:
99 sq/ft width 10' 6" x depth 9' 6"
Bedroom 2:
214 sq/ft width 14' 4" x depth 15'
Bedroom 3:
216 sq/ft width 13' 6" x depth 16'
Bedroom 4:
315 sq/ft width 18' x depth 17' 6"
Family Room:
484 sq/ft width 28' 6" x depth 17'
Game Room:
614 sq/ft width 19' 6" x depth 31' 6"
Garage:
636 sq/ft width 23' x depth 27' 8"
Kitchen:
381 sq/ft width 17' 4" x depth 22'
Living Room:
369 sq/ft width 18' x depth 20' 6"
Master Bathroom:
149 sq/ft width 10' 4" x depth 14' 6"
Master Bedroom:
374 sq/ft width 17' x depth 22'
Mud Room:
189 sq/ft width 16' 6" x depth 11' 6"
Office:
120 sq/ft width 11' 6" x depth 10' 6"
Powder Room:
59 sq/ft width 7' x depth 8' 6"
Study:
120 sq/ft width 10' 4" x depth 11' 8"
Utility Room:
76 sq/ft width 9' 6" x depth 8'
What's Included In This Plan Set
All plans are drawn at ¼” scale or larger and include :
- Foundation Plan: This page shows all necessary notations and dimensions including support columns, walls, and excavated/unexcavated areas.
- Exterior Elevations: Views of the home from all four sides showing exterior materials and measurements.
- Floor Plan(s): Detailed plans for each level showing room dimensions, wall partitions, windows and doors, etc.
- Cross Section: A slice of the home from roof to foundation, showing important details like stairs and wall construction.
- Overhead Roof Plan(s): A view of the home from above showing roof pitch, peaks, valleys, and other details.
- Construction Notes and Details: Shows the builder how things come together, like walls, the chimney, insulation, and more.
Plan Set
$2995.00
$5760.00
$1895.00
Foundation
$425.00
Framing
$0.00
Additional Options
$165.00
$495.00
$39.00
$165.00
* Alternate Foundations may take time to prepare.
** Options with a fee may take time to prepare. Please call to confirm.



