- Jump to:
- All (9)
- Floor plans (1)
Phone: 1-877-222-1762
See our Terms & Conditions and Privacy Policy.
Residential Construction Guide
Learn Building Basics
This downloadable, 26-page guide is full of diagrams and details about plumbing, electrical, and more.
PLAN 1106-113
This plan can be customized
Tell us about your desired changes so we can prepare an estimate for the design service. Click the button to submit your request for pricing, or call 1-877-222-1762 for assistance.
Plan Description
Floor Plans
Full Specs & Features
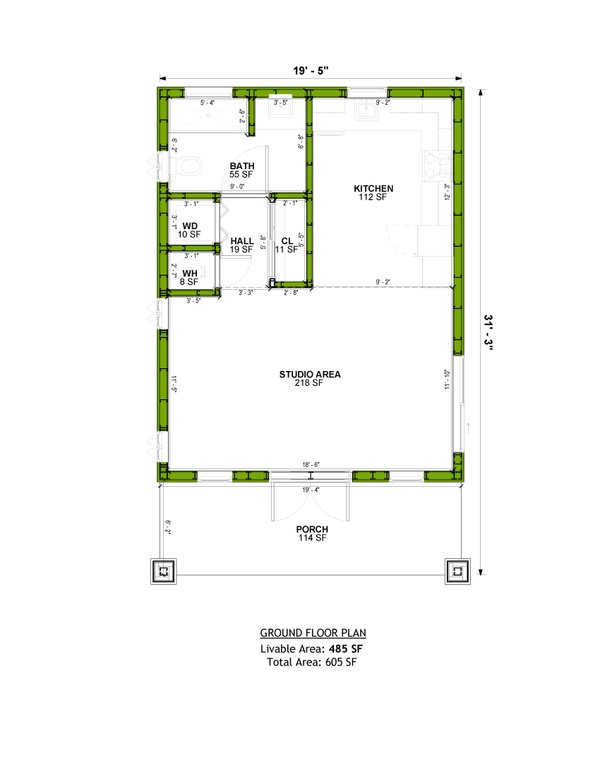
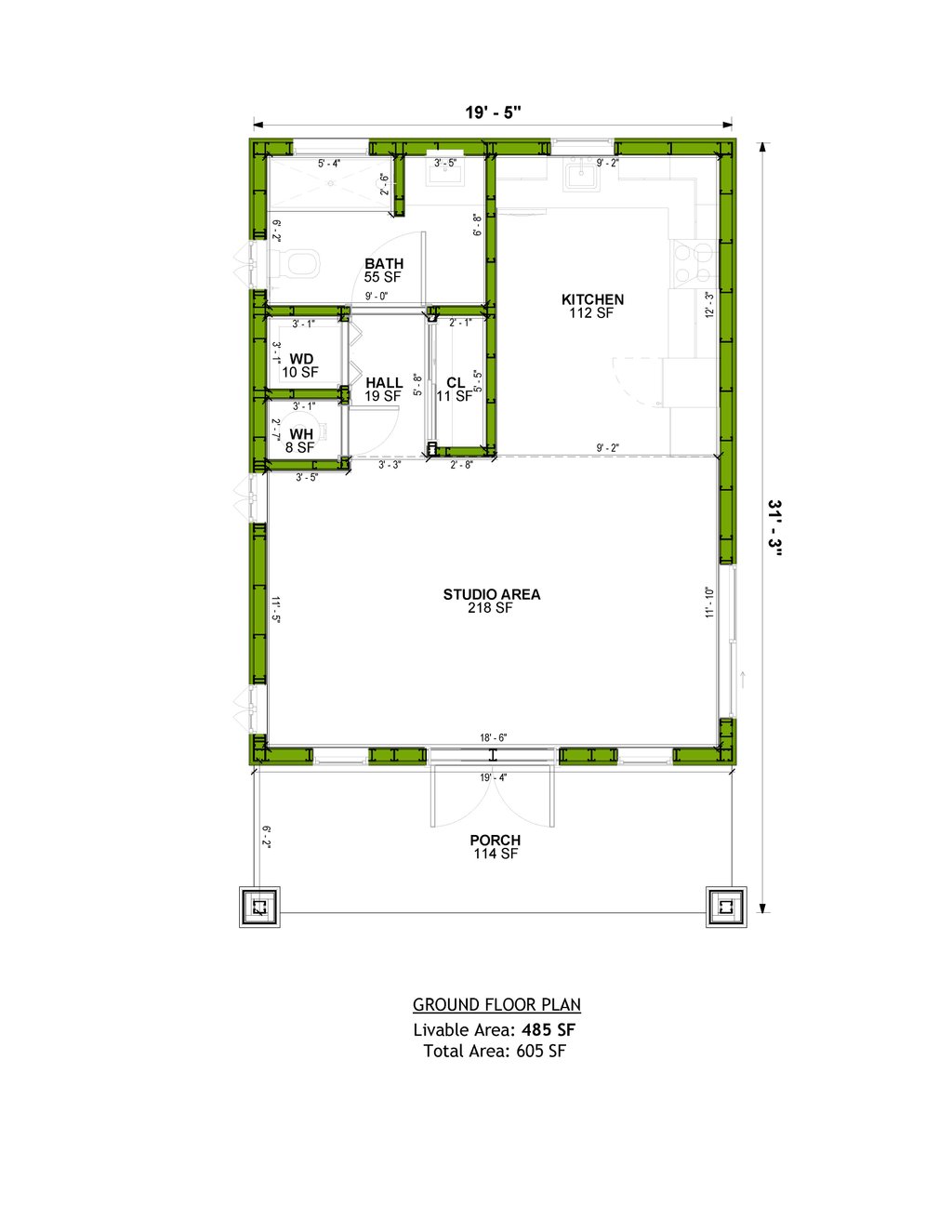
Dimension
Depth : 31' 3"
Height : 13' 10"
Width : 19' 5"
Area
Porch : 114 sq/ft
Ceiling
Lower Ceiling : 8'
Upper Ceiling Ft : 12' 10"
Roof
Primary Pitch : 6/12
Roof Framing : Cold Formed Steel
Roof Load : Inquire for info
Exterior Wall Framing
Framing : Cold Formed Steel
Additional Room Features
Main Floor Laundry
Lot Characteristics
Suited For Narrow Lot
Outdoor Spaces
Covered Front Porch
More
Economical To Build
Empty Nester
Suited For Vacation Home
Energy Efficient Features
Energy Efficient Design
What's Included In This Plan Set
All plans are drawn at ¼” scale or larger and include :
- Foundation Plan: This page shows all necessary notations and dimensions including support columns, walls, and excavated/unexcavated areas.
- Exterior Elevations: Views of the home from all four sides showing exterior materials and measurements.
- Floor Plan(s): Detailed plans for each level showing room dimensions, wall partitions, windows and doors, etc.
- Cross Section: A slice of the home from roof to foundation, showing important details like stairs and wall construction.
- Overhead Roof Plan(s): A view of the home from above showing roof pitch, peaks, valleys, and other details.
- Construction Notes and Details: Shows the builder how things come together, like walls, the chimney, insulation, and more.
Plan Set
$775.00
Foundation
$0.00
Framing
$0.00
$0.00
$300.00
Additional Options
* Alternate Foundations may take time to prepare.
** Options with a fee may take time to prepare. Please call to confirm.



