- Jump to:
- All (7)
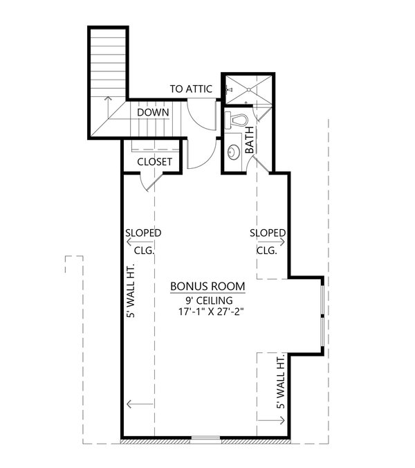
- Floor plans (2)
Phone: 1-877-222-1762
See our Terms & Conditions and Privacy Policy.
Use Code CTB2026
Residential Construction Guide
Learn Building Basics
This downloadable, 26-page guide is full of diagrams and details about plumbing, electrical, and more.
PLAN 1074-58
This plan can be customized
Tell us about your desired changes so we can prepare an estimate for the design service. Click the button to submit your request for pricing, or call 1-877-222-1762 for assistance.
Plan Description
Floor Plans
Full Specs & Features
Dimension
Depth : 82' 5"
Height : 28' 11"
Width : 69' 1"
Area
Bonus : 633 sq/ft
Garage : 738 sq/ft
Main Floor : 2756 sq/ft
Porch : 1009 sq/ft
Storage : 35 sq/ft
Ceiling
Bonus Ceiling : 9'
Garage Ceiling : 9'
Main Ceiling : 10'
Roof
Primary Pitch : 9:12
Roof Framing : stick
Roof Type : shingles
Secondary Pitch : 15:12
Exterior Wall Framing
Exterior Wall Finish : brick
Framing : 2x4
Bedroom Features
Main Floor Bedrooms
Main Floor Master Bedroom
Split Bedrooms
Walk In Closet
Kitchen Features
Kitchen Island
Walk In Pantry Cabinet Pantry
Additional Room Features
Den Office Study Computer
Great Room Living Room
Main Floor Laundry
Mud Room
Storage Area
Garage Features
Side Entry Garage
Outdoor Spaces
Covered Rear Porch
Outdoor Kitchen Grill
Screened Porch
More
Additional Half Bath
What's Included In This Plan Set
All plans are drawn at ¼” scale or larger and include :
- Foundation Plan: This page shows all necessary notations and dimensions including support columns, walls, and excavated/unexcavated areas.
- Exterior Elevations: Views of the home from all four sides showing exterior materials and measurements.
- Floor Plan(s): Detailed plans for each level showing room dimensions, wall partitions, windows and doors, etc.
- Cross Section: A slice of the home from roof to foundation, showing important details like stairs and wall construction.
- Overhead Roof Plan(s): A view of the home from above showing roof pitch, peaks, valleys, and other details.
- Construction Notes and Details: Shows the builder how things come together, like walls, the chimney, insulation, and more.
Plan Set
$1345.00
$1645.00
$2045.00
$2845.00
Foundation
$0.00
$175.00
Framing
$0.00
$295.00
Additional Options
$225.00
$495.00
$165.00
$295.00
$39.00
* Alternate Foundations may take time to prepare.
** Options with a fee may take time to prepare. Please call to confirm.



