- Jump to:
- All (4)
- Floor plans (2)
Key Specs
3160
sq ft
5
Beds
3.5
Baths
2
Floors
2
Garages
Phone: 1-877-222-1762
See our Terms & Conditions and Privacy Policy.
Use Code CTBFALL
Residential Construction Guide
Learn Building Basics
This downloadable, 26-page guide is full of diagrams and details about plumbing, electrical, and more.
PLAN 417-766
This plan can be customized
Tell us about your desired changes so we can prepare an estimate for the design service. Click the button to submit your request for pricing, or call 1-877-222-1762 for assistance.
Plan Description
Floor Plans
Full Specs & Features
Dimension
Depth : 59' 4"
Height : 28'
Width : 55'
Area
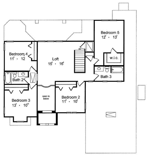
First Floor: 1868 sq/ft
Second Floor: 1292 sq/ft
Roof
Primary Pitch : 6:12
Roof Framing : Truss
Roof Type : Tile
Exterior Wall Framing
Exterior Wall Finish : Brick/Stucco
Framing : Block
Bedroom Features
Formal Dining Room
Formal Living Room / Parlor
Main Floor Master Bedroom
Split Bedrooms
Kitchen Features
Breakfast Nook
Kitchen Island
Kitchenette Wet Bar
Walk In Pantry Cabinet Pantry
Additional Room Features
Family Room Keeping Room
Loft
Main Floor Laundry
Outdoor Spaces
Balcony
Courtyard
Outdoor Kitchen Grill
Rooms
3rd BR Closet:
19 sq/ft width 9' 8" x depth 2'
Bathroom 2:
48 sq/ft width 9' 8" x depth 5'
Bathroom 3:
72 sq/ft width 12' x depth 6'
Bedroom 2:
125 sq/ft width 12' 2" x depth 10' 4"
Bedroom 2 Closet:
17 sq/ft width 8' 6" x depth 2'
Bedroom 3:
171 sq/ft width 13' 4" x depth 12' 10"
Bedroom 3 Closet:
17 sq/ft width 8' 6" x depth 2'
Bedroom 4:
159 sq/ft width 13' 4" x depth 12'
Bedroom 4 Closet:
15 sq/ft width 7' 8" x depth 2'
Bedroom 5:
222 sq/ft width 12' x depth 18' 6"
Bedroom 5 Closet:
40 sq/ft width 8' x depth 5'
Bonus Room - Finished:
381 sq/ft width 23' 4" x depth 16' 4"
Breakfast Room:
117 sq/ft width 11' 2" x depth 10' 6"
Dining Room:
124 sq/ft width 11' 4" x depth 11'
Foyer:
74 sq/ft width 7' 2" x depth 10' 4"
Garage:
485 sq/ft width 19' 8" x depth 24' 8"
Gathering Room:
303 sq/ft width 21' 8" x depth 14'
Kitchen:
170 sq/ft width 13' 10" x depth 12' 4"
Laundry Room:
51 sq/ft width 9' x depth 5' 8"
Living Room:
300 sq/ft width 16' 2" x depth 18' 7"
Master Bathroom:
268 sq/ft width 13' x depth 20' 8"
Master Bedroom:
219 sq/ft width 12' x depth 18' 4"
Master Closet:
38 sq/ft width 5' 8" x depth 6' 10"
Porch - Front:
31 sq/ft width 7' 4" x depth 4' 4"
Porch - Rear:
222 sq/ft width 25' 8" x depth 8' 8"
Powder Room:
31 sq/ft width 3' 8" x depth 8' 8"
Walk-In Closet:
25 sq/ft width 5' 8" x depth 4' 6"
What's Included In This Plan Set
All plans are drawn at ¼” scale or larger and include :
- Foundation Plan: This page shows all necessary notations and dimensions including support columns, walls, and excavated/unexcavated areas.
- Exterior Elevations: Views of the home from all four sides showing exterior materials and measurements.
- Floor Plan(s): Detailed plans for each level showing room dimensions, wall partitions, windows and doors, etc.
- Cross Section: A slice of the home from roof to foundation, showing important details like stairs and wall construction.
- Overhead Roof Plan(s): A view of the home from above showing roof pitch, peaks, valleys, and other details.
- Construction Notes and Details: Shows the builder how things come together, like walls, the chimney, insulation, and more.
Plan Set
$1300.00
$1500.00
$1650.00
$2600.00
$700.00
Foundation
$0.00
Framing
$0.00
Additional Options
$50.00
$100.00
$39.00
$200.00
$30.00
* Alternate Foundations may take time to prepare.
** Options with a fee may take time to prepare. Please call to confirm.



