- Jump to:
- All (13)
- Floor plans (2)
Phone: 1-877-222-1762
See our Terms & Conditions and Privacy Policy.
Use Code CTBFALL
Residential Construction Guide
Learn Building Basics
This downloadable, 26-page guide is full of diagrams and details about plumbing, electrical, and more.
PLAN 56-588
This plan can be customized
Tell us about your desired changes so we can prepare an estimate for the design service. Click the button to submit your request for pricing, or call 1-877-222-1762 for assistance.
Plan Description
Floor Plans
Full Specs & Features
Dimension
Depth : 55'
Height : 31' 9"
Width : 82'
Area
First Floor: 1530 sq/ft height 9' 1"
Second Floor: 1629 sq/ft height 8' 1"
Ceiling
Ceiling Details : Actual ceiling heights are main floor 9'-1 1/8". Upper floor 8'-1 1/8".
Main Ceiling : 9'
Upper Ceiling Ft : 8'
Roof
Primary Pitch : 9:12
Roof Framing : Truss
Roof Type : Shingle
Secondary Pitch : 12:12
Exterior Wall Framing
Exterior Wall Finish : Siding, Stone
Framing : 2"x6"
Bedroom Features
Upstairs Master Bedrooms
Walk In Closet
Kitchen Features
Breakfast Nook
Eating Bar
Kitchen Island
Walk In Pantry Cabinet Pantry
Additional Room Features
Den Office Study Computer
Great Room Living Room
Storage Area
Sunroom
Garage Features
Oversized Garage
Lot Characteristics
Suited For Corner Lot
Suited For View Lot
Outdoor Spaces
Covered Front Porch
Grill Deck Sundeck
Screened Porch
More
Jack & Jill Bath
Rooms
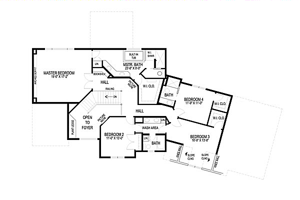
Bedroom 2:
143 sq/ft width 11' x depth 13'
Bedroom 3:
228 sq/ft width 16' 9" x depth 13' 8"
Bedroom 4:
129 sq/ft width 11' 9" x depth 11'
Breakfast:
155 sq/ft width 11' 10" x depth 13' 2"
Deck:
132 sq/ft width 11' x depth 12'
Dining Room:
136 sq/ft width 11' x depth 12' 5"
Foyer:
80 sq/ft width 8' x depth 10'
Garage:
825 sq/ft width 33' x depth 25'
Great Room:
324 sq/ft width 18' 9" x depth 17' 4"
Kitchen:
204 sq/ft width 11' 6" x depth 17' 9"
Laundry Room:
50 sq/ft width 8' 8" x depth 5' 10"
Master Bathroom:
213 sq/ft width 23' 8" x depth 9'
Master Bedroom:
326 sq/ft width 19' x depth 17' 2"
Porch - Screened:
149 sq/ft width 13' x depth 11' 6"
Study:
146 sq/ft width 11' x depth 13' 4"
What's Included In This Plan Set
- Foundation Plan(s): This page shows all necessary notations and dimensions including footings, support columns, walls, and excavated/unexcavated areas.
- Floor Plan(s): Detailed plans for each level showing room dimensions, wall partitions, windows and doors, fixture locations, and ceiling treatments.
- Exterior Elevations: All four sides
- Overhead Roof Plan(s): A view of the home from above showing roof pitch, peaks, valleys, and other details.
- Cross Section(s): A slice of the home from roof to foundation, showing relationships between floors, roof, and foundation.
- Electrical Plan(s): Most plans from this designer have this available
- Kitchen Cabinet Elevation(s): Detailed drawings of kitchen cabinet elevations
- Construction Notes / Detail(s): Shows basic parts and assemblies recommended for the home so the builder can see how things come together.
- Rendering(s): Artist rendering
- Specification(s): Includes general specifications, not specific to individual plans.
Plan Set
$1355.75
$1398.25
$1440.75
$1572.50
$1865.75
Foundation
$0.00
$297.50
$297.50
Framing
$0.00
$297.50
Additional Options
$250.75
$68.00
$637.50
$85.00
$33.15
$170.00
$250.75
$1275.00
* Alternate Foundations may take time to prepare.
** Options with a fee may take time to prepare. Please call to confirm.



