- Jump to:
- All (5)
- Floor plans (2)
Key Specs
2775
sq ft
3
Beds
3.5
Baths
2
Floors
2
Garages
Phone: 1-877-222-1762
See our Terms & Conditions and Privacy Policy.
Use Code CTBFALL
Residential Construction Guide
Learn Building Basics
This downloadable, 26-page guide is full of diagrams and details about plumbing, electrical, and more.
PLAN 930-239
This plan can be customized
Tell us about your desired changes so we can prepare an estimate for the design service. Click the button to submit your request for pricing, or call 1-877-222-1762 for assistance.
Plan Description
Floor Plans
Full Specs & Features
Dimension
Depth : 58' 6"
Height : 32'
Width : 90'
Area
Bonus: 382 sq/ft
First Floor: 1874 sq/ft
Second Floor: 901 sq/ft
Roof
Primary Pitch : 10:12
Roof Framing : Combination Truss/Conventional
Roof Type : Shingle
Exterior Wall Framing
Exterior Wall Finish : Siding
Framing : Wood - 2x6
Bedroom Features
Fireplace
Formal Dining Room
Kitchen Features
Breakfast Nook
Kitchen Island
Additional Room Features
Den Office Study Computer
Great Room Living Room
Loft
Main Floor Laundry
Garage Features
Side Entry Garage
Outdoor Spaces
Balcony
Courtyard
Covered Front Porch
Covered Rear Porch
Grill Deck Sundeck
Rooms
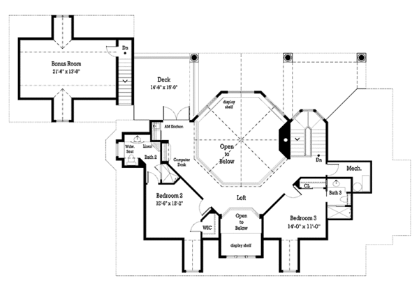
Bedroom 2:
152 sq/ft width 12' 6" x depth 12' 2"
Bedroom 2 Closet:
190 sq/ft width 34' 8" x depth 5' 6"
Bedroom 3:
154 sq/ft width 14' x depth 11'
Bedroom 3 Closet:
12 sq/ft width 6' x depth 2'
Bonus Room - Finished:
279 sq/ft width 21' 6" x depth 13'
Deck:
217 sq/ft width 14' 6" x depth 15'
Dining Room:
177 sq/ft width 13' 6" x depth 13' 2"
Garage:
540 sq/ft width 23' 6" x depth 23'
Gathering Room:
373 sq/ft width 19' 4" x depth 19' 4"
Kitchen:
229 sq/ft width 18' 4" x depth 12' 6"
Master Bathroom:
1200 sq/ft width 100' x depth 12'
Master Bedroom:
219 sq/ft width 14' x depth 15' 8"
Master Closet - Hers:
44 sq/ft width 8' x depth 5' 6"
Master Closet - His:
27 sq/ft width 5' x depth 5' 6"
Porch - Front:
448 sq/ft width 56' x depth 8'
Porch - Rear:
520 sq/ft width 52' x depth 10'
Powder Room:
200 sq/ft width 50' x depth 4'
Study:
135 sq/ft width 11' 8" x depth 11' 7"
Utility Room:
72 sq/ft width 8' x depth 9'
What's Included In This Plan Set
- Cover Sheet: The cover sheet features an elevation of the exterior of the house that shows approximately how the home will look when built. The index lists the order of the drawings included, with page numbers for easy reference.
- Foundation Plan(s): This sheet provides a fully dimensioned and noted foundation layout, including references to footings, pads, and support walls. For plans with a basement, additional walls and columns may be shown. Basement plans come with a floor framing layout which may be included in this section or the floor framing section, depending on the plan. Important: actual structural information should be obtained by a locally licensed engineer for your specific site location.
- Floor Plan(s): This section provides detailed floor plan drawings and descriptions of all the elements that will be included on each floor of the home. The home’s exterior footprint, openings and interior rooms are carefully dimensioned. Important features are noted including built-ins, niches and appliances. All doors and windows are identified. Typically this section also includes the square footage information.
- Exterior Elevations: Exterior elevations are drawings that show how the finished home will approximately look. In this section, elevations of the front, rear and left and right sides of the home are shown. Exterior materials, details and heights are noted on these drawings.
- Interior Elevations: These interior elevations show the specific details and design of the kitchen, bathrooms, utility rooms, fireplaces, bookcases, built-in units and other special interior features. The interior elevations vary based on the complexity of the home.
- Overhead Roof Plan(s): The overall layout and necessary details for roof design are provided in this section. If trusses are used, we suggest using a local truss manufacturer to design your roof trusses to comply with your local codes and regulations.
- Cross Section(s): This section will illustrate the important changes in the floor, ceiling and roof heights or the relationship of different floors to one another. Interior elements of rooms and areas, such as columns, arches, headers and soffits, are also discernible and easier to visualize in a cross section.
- Electrical Plan(s): This section shows an electrical plan that will enhance functionality and highlight the unique architectural features of the home.
- Construction Notes / Detail(s): This section addresses all the facets and typical details you will want to include in your home, with the exception of local building code requirements. Architectural and structural elements are detailed, including: window and door components, railings, balusters, wood stairs and headers, interior walls, interior partitions, concrete steps and footings (if applicable). Important: design loads and weather conditions vary by region. As a result the size, spacing, and layout of all structural elements in this home design may need approval by a structural engineer or code official based on your specific site location.
- Framing Detail(s): Homes with a basement or crawlspace will have a floor framing plan for the first floor. Multi-story homes will have floor framing plans for upper floors as well. The floor framing plans provide structural information such as the joist location, spacing and direction, as well as the floor heights and stair openings. If included, the framing layout is intended to be a suggested layout only. Design loads and weather conditions vary by region. As a result the size, spacing, and layout of all structural elements in this home design may need approval by a structural engineer or code official based on your specific site location.
- Wall Section(s): This section shows section cuts of the exterior wall from the roof down through the foundation. These wall sections specify the home’s construction and building materials. They also show the number of stories, type of foundation and the construction of the walls. Roofing materials, insulation, floor framing, wall finishes and elevation heights are all shown and referenced.
- Other Note(s): Reflected ceiling plan: this designer's most distinguishable feature is the highly detailed ceiling treatments. This section shows ceiling heights and treatments. It also shows the details, profiles and finishes of the ceiling treatments. Arches and soffits are also specified in this section.
- Site Plan(s): The site plan is a scaled footprint of the house to help determine how the home will be placed on the building site.
Plan Set
$1249.50
Foundation
$0.00
$233.75
Framing
$0.00
Additional Options
$55.25
$140.25
$33.15
$165.75
* Alternate Foundations may take time to prepare.
** Options with a fee may take time to prepare. Please call to confirm.



