- Jump to:
- All (19)
- Floor plans (1)
Key Specs
2695
sq ft
3
Beds
2.5
Baths
1
Floors
2
Garages
Phone: 1-877-222-1762
See our Terms & Conditions and Privacy Policy.
Use Code CTBFALL
Residential Construction Guide
Learn Building Basics
This downloadable, 26-page guide is full of diagrams and details about plumbing, electrical, and more.
PLAN 1086-13
This plan can be customized
Tell us about your desired changes so we can prepare an estimate for the design service. Click the button to submit your request for pricing, or call 1-877-222-1762 for assistance.
Plan Description
Floor Plans
Full Specs & Features
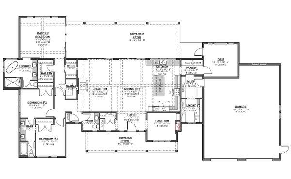
Dimension
Depth : 54'
Height : 23' 3"
Width : 106'
Area
Garage : 1033 sq/ft
Main Floor : 2695 sq/ft
Patios : 660 sq/ft
Porch : 232 sq/ft
Ceiling
Main Ceiling : 9'
Roof
Primary Pitch : 8/12
Roof Framing : Truss
Secondary Pitch : 3/12
Bedroom Features
Main Floor Bedrooms
Main Floor Master Bedroom
Walk In Closet
Kitchen Features
Eating Bar
Kitchen Island
Walk In Pantry Cabinet Pantry
Additional Room Features
Den Office Study Computer
Great Room Living Room
Workshop
Garage Features
Front Entry Garage
Oversized Garage
Lot Characteristics
Suited For View Lot
Zero Lot Lines
Outdoor Spaces
Covered Front Porch
Covered Rear Porch
More
Jack & Jill Bath
Suited For Vacation Home
What's Included In This Plan Set
- Cover Sheet: Drawing index, designer contact info, plan name/number, legal disclaimers. Cover Sheet showing a Rendering of the planned residence .
- Foundation Plan(s): This page shows all necessary notations and dimensions including footings, support columns, walls, and excavated/unexcavated areas.
- Floor Plan(s): Detailed plans for each level showing room dimensions, wall partitions, windows and doors, fixture locations, and ceiling treatments.
- Exterior Elevations: Views of the home from all four sides showing exterior materials, roof slope, ridge heights, siding and trim notes.
- Overhead Roof Plan(s): A view of the home from above showing roof pitch, peaks, valleys, and other details.
- Cross Section(s): A vertical cutaway view of the house from roof to foundation showing details of framing, construction, flooring and roofing.
- Construction Notes / Detail(s): Shows basic parts and assemblies recommended for the home so the builder can see how things come together.
- Framing Detail(s): Floor Joist Layout: General flooring schematic showing direction and spacing of floor joists. If included, the framing layout is intended to be a suggested layout only. Design loads and weather conditions vary by region. As a result the size, spacing, and layout of all structural elements in this home design may need approval by a structural engineer or code official based on your specific site location.
- Other Note(s): Building Details and General Construction Notes: Specific details for this structure and general construction assemblies and elements.
Plan Set
$1355.75
$1780.75
$2205.75
Foundation
$0.00
$0.00
Framing
$0.00
Additional Options
$208.25
$140.25
$250.75
$140.25
* Alternate Foundations may take time to prepare.
** Options with a fee may take time to prepare. Please call to confirm.



