- Jump to:
- All (3)
- Floor plans (2)
Key Specs
2637
sq ft
1
Beds
2
Baths
2
Floors
3
Garages
Phone: 1-877-222-1762
See our Terms & Conditions and Privacy Policy.
Use Code CTBFALL
Residential Construction Guide
Learn Building Basics
This downloadable, 26-page guide is full of diagrams and details about plumbing, electrical, and more.
PLAN 118-139
This plan can be customized
Tell us about your desired changes so we can prepare an estimate for the design service. Click the button to submit your request for pricing, or call 1-877-222-1762 for assistance.
Plan Description
Floor Plans
Full Specs & Features
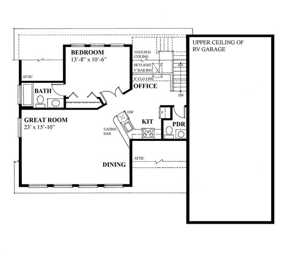
Dimension
Depth : 40'
Height : 25' 3"
Width : 54'
Area
First Floor: 106 sq/ft
Garage: 1508 sq/ft
Porch: 46 sq/ft
Second Floor: 807 sq/ft
Ceiling
Garage Ceiling : 14'
Main Ceiling : 9'
Upper Ceiling Ft : 8'
Roof
Primary Pitch : 10:12
Roof Framing : Roof joists and trusses
Roof Type : Metal
Secondary Pitch : 4:12
Exterior Wall Framing
Exterior Wall Finish : Horiz. Siding
Framing : 2"x6"
Bedroom Features
Upstairs Bedrooms
Additional Room Features
Den Office Study Computer
Great Room Living Room
Workshop
Garage Features
Oversized Garage
RV Garage
Outdoor Spaces
Covered Front Porch
Rooms
Garage:
504 sq/ft width 23' x depth 20'
Garage 2:
264 sq/ft width 10' 6" x depth 23'
Great Room:
width 23' x depth 15' 10"
Master Bedroom:
width 13' 8" x depth 10' 6"
RV Garage:
740 sq/ft width 17' 6" x depth 39'
Work Shop:
216 sq/ft width 11' 6" x depth 16'
What's Included In This Plan Set
- Cover Sheet: Cover sheet with rendering and art floor plans
- Foundation Plan(s): This page shows all necessary notations and dimensions including footings, support columns, walls, and excavated/unexcavated areas.
- Floor Plan(s): Detailed plans for each level showing room dimensions, wall partitions, windows and doors, fixture locations, and ceiling treatments.
- Exterior Elevations: Views of the home from all four sides showing exterior materials, roof slope, ridge heights, siding and trim notes.
- Overhead Roof Plan(s): A view of the home from above showing roof pitch, peaks, valleys, and other details.
- Cross Section(s): A slice of the home from roof to foundation, showing relationships between floors, roof, and foundation.
- Electrical Plan(s): Electrical fixtures / switches / smoke alarms by location only on floor plans.
- Detail Sheet(s): Details as required.
- Construction Notes / Detail(s): Shows basic parts and assemblies recommended for the home so the builder can see how things come together.
- Structural Information: Structural floor / roof information indicated either on the floor plans or separate framing plans for complicated designs. Important: design loads and weather conditions vary by region. As a result the size, spacing, and layout of all structural elements in this home design may need approval by a structural engineer or code official based on your specific site location.
- Site Plan(s): Site plan at 1/8″=1′-0″ or 1/4″= 1′-0″
Plan Set
$745.00
Foundation
$0.00
Additional Options
$145.00
$165.00
$39.00
$165.00
$70.00
* Alternate Foundations may take time to prepare.
** Options with a fee may take time to prepare. Please call to confirm.



