- Jump to:
- All (4)
- Floor plans (2)
Key Specs
2590
sq ft
3
Beds
2.5
Baths
2
Floors
2
Garages
Phone: 1-877-222-1762
See our Terms & Conditions and Privacy Policy.
Use Code CTBFALL
Residential Construction Guide
Learn Building Basics
This downloadable, 26-page guide is full of diagrams and details about plumbing, electrical, and more.
PLAN 965-3
This plan can be customized
Tell us about your desired changes so we can prepare an estimate for the design service. Click the button to submit your request for pricing, or call 1-877-222-1762 for assistance.
Plan Description
Floor Plans
Full Specs & Features
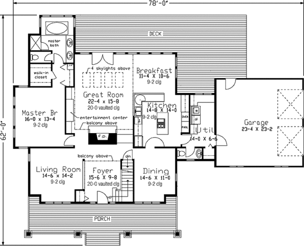
Dimension
Depth : 62'
Height : 25'
Width : 78'
Area
Basement Unfinished: 1996 sq/ft height 8'
First Floor: 1996 sq/ft height 9'
Second Floor: 594 sq/ft height 8'
Exterior Wall Framing
Exterior Wall Finish : Shingle/Siding/Stone
Framing : Wood - 2x6
Bedroom Features
Fireplace
Formal Dining Room
Walk In Closet
Kitchen Features
Breakfast Nook
Kitchen Island
Kitchenette Wet Bar
Walk In Pantry Cabinet Pantry
Additional Room Features
Family Room Keeping Room
Loft
Unfinished Future Space
Outdoor Spaces
Balcony
Covered Front Porch
Deck
Rooms
Bedroom 2:
181 sq/ft width 15' 7" x depth 11' 8"
Bedroom 3:
169 sq/ft width 15' 8" x depth 10' 10"
Breakfast Nook:
118 sq/ft width 11' 4" x depth 10' 6"
Dining Room:
159 sq/ft width 14' 6" x depth 11'
Great Room:
349 sq/ft width 22' 4" x depth 15' 8"
Kitchen:
205 sq/ft width 14' 8" x depth 14'
Living Room:
205 sq/ft width 14' 6" x depth 14' 2"
Master Bedroom:
213 sq/ft width 16' x depth 13' 4"
What's Included In This Plan Set
All plans are drawn at ¼” scale or larger and include :
- Foundation Plan: This page shows all necessary notations and dimensions including support columns, walls, and excavated/unexcavated areas.
- Exterior Elevations: Views of the home from all four sides showing exterior materials and measurements.
- Floor Plan(s): Detailed plans for each level showing room dimensions, wall partitions, windows and doors, etc.
- Cross Section: A slice of the home from roof to foundation, showing important details like stairs and wall construction.
- Overhead Roof Plan(s): A view of the home from above showing roof pitch, peaks, valleys, and other details.
- Construction Notes and Details: Shows the builder how things come together, like walls, the chimney, insulation, and more.
Plan Set
$867.00
$952.00
$1564.00
$697.00
Foundation
$0.00
$0.00
Framing
$0.00
Additional Options
$34.00
$85.00
$33.15
$85.00
$68.00
$42.50
* Alternate Foundations may take time to prepare.
** Options with a fee may take time to prepare. Please call to confirm.



