- Jump to:
- All (14)
- Floor plans (2)
Key Specs
2528
sq ft
3
Beds
2.5
Baths
2
Floors
1
Garages
Phone: 1-877-222-1762
See our Terms & Conditions and Privacy Policy.
Use Code CTBFALL
Residential Construction Guide
Learn Building Basics
This downloadable, 26-page guide is full of diagrams and details about plumbing, electrical, and more.
PLAN 23-2822
This plan can be customized
Tell us about your desired changes so we can prepare an estimate for the design service. Click the button to submit your request for pricing, or call 1-877-222-1762 for assistance.
Plan Description
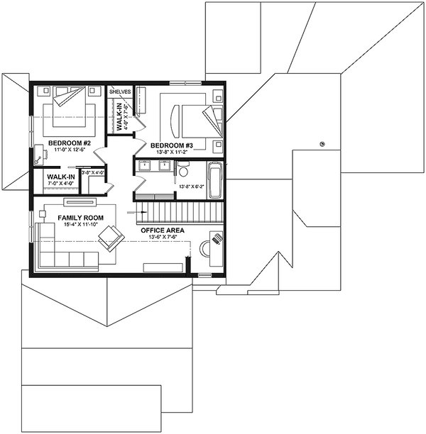
Floor Plans
Full Specs & Features
Dimension
Depth : 64'
Height : 28' 6"
Width : 49' 10"
Area
Decks : 400 sq/ft
Garage : 505 sq/ft
Main Floor : 1618 sq/ft
Porch : 29 sq/ft
Upper Floor : 910 sq/ft
Ceiling
Garage Ceiling : 11' 6"
Main Ceiling : 9'
Upper Ceiling Ft : 8'
Roof
Primary Pitch : 11/12
Roof Framing : Truss
Secondary Pitch : 7/12
Exterior Wall Framing
Framing : Wood
Bedroom Features
Guest Suite
Main Floor Master Bedroom
Walk In Closet
Kitchen Features
Eating Bar
Kitchen Island
Walk In Pantry Cabinet Pantry
Additional Room Features
Den Office Study Computer
Main Floor Laundry
Master Sitting Area
Mud Room
Play Flex Room
Storage Area
Garage Features
Side Entry Garage
Entryway
Friend S Entry
Lot Characteristics
Suited For View Lot
Outdoor Spaces
Covered Front Porch
Covered Rear Porch
Outdoor Kitchen Grill
More
Additional Half Bath
Unusual Shape
What's Included In This Plan Set
Plans are typically drawn to ¼” scale and include:
- Foundation Plan(s): Foundation plans typically include: All exterior / interior dimensions, thickness of foundation walls (if variable), all structural details, location of stairwell, location and size of windows and location / dimensions of footings (where applicable and required)
- Floor Plan(s): Floor plans typically include: All interior / exterior dimensions (included but not as a schedule), location and sizes of doors / windows, indication of the structure above (second floor or roof), indication that details are on other pages
- Exterior Elevations: Front, rear, left & right sides) typically include: Floor/ceiling heights, dimensions of standard windows & roof overhangs, location of all needed flashings, height and location of foundation, type of finishing and textures, dimensions of chimney,
- Overhead Roof Plan(s): Roof plans typically include: location of all the different trusses, general overcharge of the roof compared to the floor footprint.
- Cross Section(s): A slice of the home from roof to foundation, showing relationships between floors, roof, and foundation.
- Construction Notes / Detail(s): Details typically include: Roof sections, sections of concrete wall with wood connection, sections of walls with particular called out, section of concrete porch and connection with wood frame, foundation particulars, wall components.
- Wall Section(s): Wall sections typically include: All the details and components needed in construction.
*** Please note that some plans from this designer may be delayed 5-7 days as they are updating plan content. ***
Plan Set
$1875.00
$2015.00
$2875.00
Foundation
$0.00
$425.00
$425.00
Framing
$0.00
Additional Options
$250.00
$65.00
$165.00
$295.00
$39.00
$165.00
* Alternate Foundations may take time to prepare.
** Options with a fee may take time to prepare. Please call to confirm.



