- Jump to:
- All (5)
- Floor plans (1)
Key Specs
2487
sq ft
3
Beds
2.5
Baths
1
Floors
2
Garages
Phone: 1-877-222-1762
See our Terms & Conditions and Privacy Policy.
Use Code CTBFALL
Residential Construction Guide
Learn Building Basics
This downloadable, 26-page guide is full of diagrams and details about plumbing, electrical, and more.
PLAN 57-620
This plan can be customized
Tell us about your desired changes so we can prepare an estimate for the design service. Click the button to submit your request for pricing, or call 1-877-222-1762 for assistance.
Plan Description
Floor Plans
Full Specs & Features
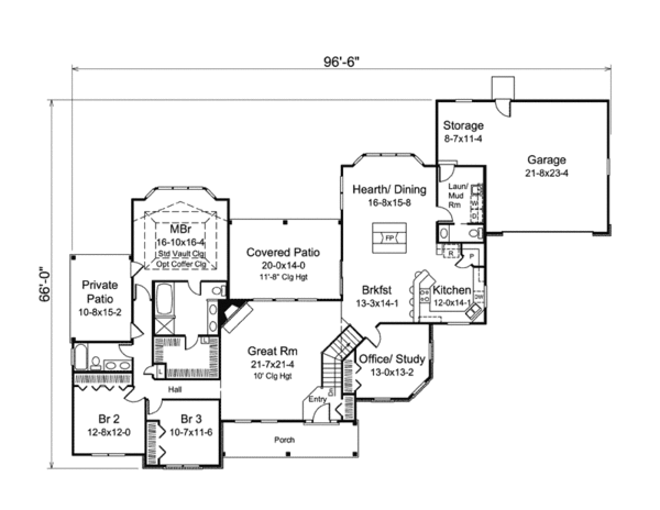
Dimension
Depth : 66'
Width : 97'
Area
Main Floor : 2487 sq/ft
Bedroom Features
Walk In Closet
Kitchen Features
Breakfast Nook
Eating Bar
Walk In Pantry Cabinet Pantry
Additional Room Features
Den Office Study Computer
Great Room Living Room
Main Floor Laundry
Mud Room
Storage Area
Garage Features
Front Entry Garage
Lot Characteristics
Suited For Corner Lot
Suited For View Lot
Outdoor Spaces
Courtyard
Covered Front Porch
Covered Rear Porch
Grill Deck Sundeck
What's Included In This Plan Set
- Cover Sheet: The coversheet offers a rendering or visual representation of the front of the home. It also suggests a potential version of the architectural style, materials, and façade options to help the customer, builder, or customer’s HOA or building department visualize the final exterior.
- Foundation Plan(s): The foundation plan is used to show how the foundation should be built. It explains the thickness of the foundation walls, floor joist sizes and spacing, column locations, window/door/vent locations and sizes, for basement plans potentially suggested furnace/water heater locations, plumbing (where required) and miscellaneous construction details related to the foundation and basement.
- Floor Plan(s): The floor plans of the home indicate the layout/construction of eachfloor of the house. Items typically included are room dimensions, wall sizes, plumbingelectrical locations, stair locations, door/window sizes, kitchen and bath layouts, ceilingconditions in each space, flooring, structural information and any special conditionsrelated to the floor plan.
- Exterior Elevations: The elevation sheets communicate the material/dimensions that the designer envisioned, creating the correct look and feel on the outside of the house. Some of the items typically shown on an elevation sheet include materials used on the exterior of the house, size and shape of windows and doors, size and shape of vents, size of the trim, height and dimensions of various elements, depth of foundations, types of shingles and moldings, pitch of the roof, placement of materials (example: brick soldier course, brick quoins, etc.), and possibly a roof plan ( “bird’s eye” view showing the roof slopes, ridges, valleys and any saddles) and/ or the location of gutters and downspouts.
- Interior Elevations: The details , sections, and interior elevations sheets provide enlarged, precise, and focused drawings of specific construction elements that cannot be fully or clearly explained at the standard scale used in the floor plan. They often zoom-in or dissect important or complex parts of the design, showing exactly how those elements are built, joined, or finished such as walls, drainage, framing, material junctions, stair handrails, or built-ins and cabinetry. They are essential for accuracy, compliance, and construction quality.
- Overhead Roof Plan(s): A view of the home from above showing roof pitch, peaks, valleys, and other details.
- Cross Section(s): A slice of the home from roof to foundation, showing relationships between floors, roof, and foundation.
- Construction Notes / Detail(s): Shows basic parts and assemblies recommended for the home so the builder can see how things come together.
Plan Set
$1149.00
$1149.00
$1249.00
$1549.00
$1649.00
$1849.00
$1849.00
$2249.00
$2249.00
Foundation
$0.00
$250.00
$250.00
Framing
$0.00
$150.00
Additional Options
$150.00
$50.00
$100.00
$39.00
$100.00
$125.00
$400.00
* Alternate Foundations may take time to prepare.
** Options with a fee may take time to prepare. Please call to confirm.



