- Jump to:
- All (4)
- Floor plans (2)
Key Specs
2463
sq ft
4
Beds
2.5
Baths
2
Floors
2
Garages
Phone: 1-877-222-1762
See our Terms & Conditions and Privacy Policy.
Use Code CTB2026
Residential Construction Guide
Learn Building Basics
This downloadable, 26-page guide is full of diagrams and details about plumbing, electrical, and more.
PLAN 315-118
This plan can be customized
Tell us about your desired changes so we can prepare an estimate for the design service. Click the button to submit your request for pricing, or call 1-877-222-1762 for assistance.
Plan Description
Floor Plans
Full Specs & Features
Dimension
Depth : 40' 10"
Height : 23'
Width : 65' 2"
Area
First Floor: 2469 sq/ft
Second Floor: 961 sq/ft
Exterior Wall Framing
Exterior Wall Finish : Shingle
Framing : Wood - 2x4
Bedroom Features
Fireplace
Formal Dining Room
Main Floor Master Bedroom
Kitchen Features
Kitchen Island
Additional Room Features
Family Room Keeping Room
Main Floor Laundry
Sunroom
Vaulted / Cathedral Ceilings
Outdoor Spaces
Courtyard
Covered Front Porch
Screened Porch
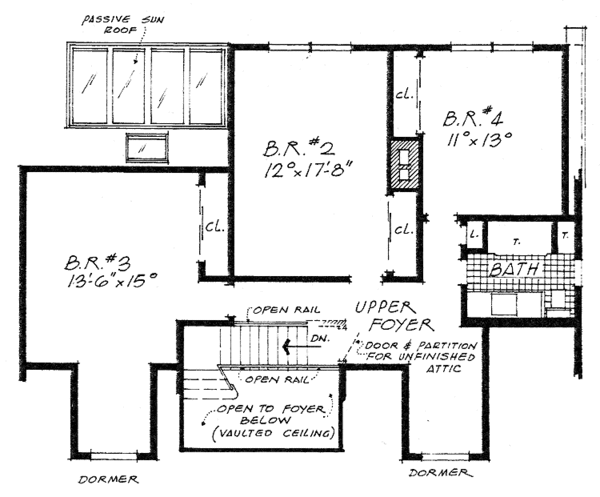
Rooms
Bedroom 1:
192 sq/ft width 12' x depth 16'
Bedroom 2:
212 sq/ft width 12' x depth 17' 8"
Bedroom 3:
247 sq/ft width 16' 6" x depth 15'
Bedroom 4:
143 sq/ft width 11' x depth 13'
Family Room:
212 sq/ft width 12' x depth 17' 8"
Living Room:
216 sq/ft width 18' x depth 12'
What's Included In This Plan Set
- Foundation Plan(s): This page shows all necessary notations and dimensions including footings, support columns, walls, and excavated/unexcavated areas.
- Floor Plan(s): Detailed plans for each level showing room dimensions, wall partitions, windows and doors, fixture locations, and ceiling treatments.
- Exterior Elevations: Views of the home from all four sides showing exterior materials, roof slope, ridge heights, siding and trim notes.
- Overhead Roof Plan(s): Roof pitches and overhangs noted on the cross-section. Overhead not included.
- Cross Section(s): A slice of the home from roof to foundation, showing relationships between floors, roof, and foundation.
- Construction Notes / Detail(s): Shows basic parts and assemblies recommended for the home so the builder can see how things come together.
Plan Set
$806.40
$890.40
$890.40
$890.40
$638.40
Foundation
$0.00
Framing
$0.00
Additional Options
$48.00
$132.00
$31.20
$132.00
$48.00
* Alternate Foundations may take time to prepare.
** Options with a fee may take time to prepare. Please call to confirm.



