- Jump to:
- All (7)
- Floor plans (3)
Phone: 1-877-222-1762
See our Terms & Conditions and Privacy Policy.
Use Code CTBFALL
Residential Construction Guide
Learn Building Basics
This downloadable, 26-page guide is full of diagrams and details about plumbing, electrical, and more.
PLAN 945-127
This plan can be customized
Tell us about your desired changes so we can prepare an estimate for the design service. Click the button to submit your request for pricing, or call 1-877-222-1762 for assistance.
Plan Description
Floor Plans
Full Specs & Features
Dimension
Depth : 66' 1"
Height : 28'
Width : 91'
Area
Basement Unfinished: 2259 sq/ft height 9'
First Floor: 2334 sq/ft height 10'
Garage: 1250 sq/ft
Roof
Primary Pitch : 6:12
Roof Framing : Truss
Roof Type : Asphalt
Exterior Wall Framing
Exterior Wall Finish : Siding/Stone
Framing : Wood - 2x6
Bedroom Features
Fireplace
Guest Suite
Main Floor Master Bedroom
Walk In Closet
Kitchen Features
Breakfast Nook
Kitchen Island
Kitchenette Wet Bar
Walk In Pantry Cabinet Pantry
Additional Room Features
Den Office Study Computer
Exercise Room
Family Room Keeping Room
Great Room Living Room
Hobby Rec Room Game Room
Main Floor Laundry
Media Room
Mud Room
Open Floor Plan
Vaulted / Cathedral Ceilings
Garage Features
Side Entry Garage
Outdoor Spaces
Courtyard
Covered Front Porch
Covered Rear Porch
Deck
Rooms
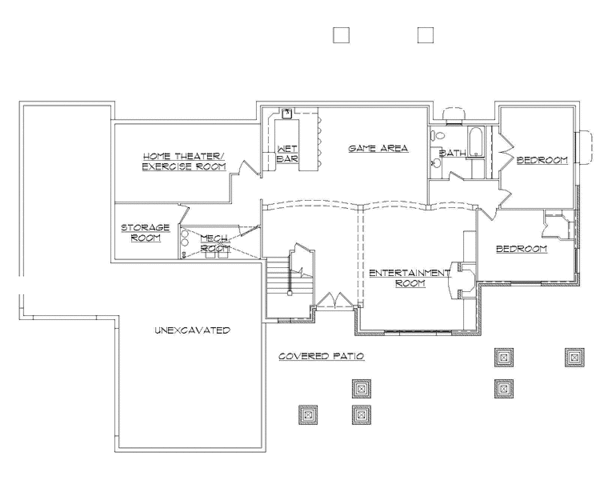
Bedroom 1/basement:
width 15' 8" x depth 11' 6"
Bedroom 2/Basement:
width 11' 10" x depth 16' 4"
Entertainment room:
width 18' 4" x depth 19' 6"
Entry:
width 74' 4" x depth 13' 10"
Game area:
width 17' 10" x depth 15' 10"
Great Room:
width 18' 10" x depth 20'
Guest Bedroom:
width 17' x depth 11' 6"
Home Theater:
width 18' 8" x depth 12' 8"
Kitchen:
width 15' 6" x depth 16'
Laundry room:
width 10' 9" x depth 8' 4"
Master bath:
width 12' 1" x depth 11'
Master bedroom:
width 15' 8" x depth 17'
Master Closet:
width 11' 4" x depth 10'
Mud room:
width 13' 1" x depth 6' 2"
Nook:
width 11' 4" x depth 16'
What's Included In This Plan Set
- Foundation Plan(s): Drawn to 1/4" scale, this page shows all necessary notations and dimensions including support columns, walls and excavated and unexcavated areas.
- Floor Plan(s): Detailed plans, drawn to 1/4" scale for each level showing room dimensions, wall partitions, windows, etc. as well as the location of electrical outlets and switches.
- Exterior Elevations: A blueprint picture of all four sides showing exterior materials and measurements.
- Overhead Roof Plan(s): A view of the home from above showing roof pitch, peaks, valleys, and other details.
- Cross Section(s): A vertical cutaway view of the house from roof to foundation showing details of framing, construction, flooring and roofing.
- Construction Notes / Detail(s): Shows basic parts and assemblies recommended for the home so the builder can see how things come together.
Plan Set
$2500.00
$2500.00
$400.00
Foundation
$0.00
Framing
$0.00
Additional Options
$500.00
$100.00
$39.00
$100.00
* Alternate Foundations may take time to prepare.
** Options with a fee may take time to prepare. Please call to confirm.



