- Jump to:
- All (4)
- Floor plans (2)
Key Specs
2074
sq ft
3
Beds
2
Baths
1
Floors
3
Garages
Phone: 1-877-222-1762
See our Terms & Conditions and Privacy Policy.
Use Code CTBFALL
Residential Construction Guide
Learn Building Basics
This downloadable, 26-page guide is full of diagrams and details about plumbing, electrical, and more.
PLAN 945-103
This plan can be customized
Tell us about your desired changes so we can prepare an estimate for the design service. Click the button to submit your request for pricing, or call 1-877-222-1762 for assistance.
Plan Description
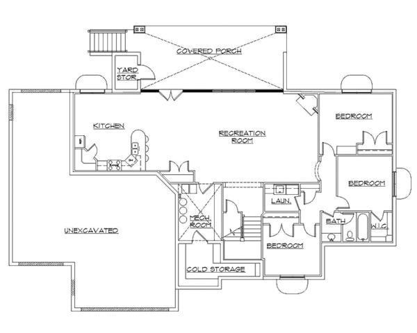
Floor Plans
Full Specs & Features
Dimension
Depth : 59' 7"
Height : 27' 3"
Width : 80' 8"
Area
Basement Unfinished: 1891 sq/ft height 9'
First Floor: 2074 sq/ft height 9'
Garage: 1090 sq/ft height 9'
Roof
Primary Pitch : 8:12
Roof Framing : Truss
Roof Type : Asphalt
Exterior Wall Framing
Exterior Wall Finish : Brick/Stone/Stucco
Framing : Wood - 2x6
Bedroom Features
Fireplace
Main Floor Master Bedroom
Walk In Closet
Kitchen Features
Breakfast Nook
Kitchen Island
Kitchenette Wet Bar
Walk In Pantry Cabinet Pantry
Additional Room Features
Family Room Keeping Room
Hobby Rec Room Game Room
Main Floor Laundry
Mud Room
Open Floor Plan
Vaulted / Cathedral Ceilings
Outdoor Spaces
Courtyard
Covered Front Porch
Covered Rear Porch
Deck
What's Included In This Plan Set
- Foundation Plan(s): Drawn to 1/4" scale, this page shows all necessary notations and dimensions including support columns, walls and excavated and unexcavated areas.
- Floor Plan(s): Detailed plans, drawn to 1/4" scale for each level showing room dimensions, wall partitions, windows, etc. as well as the location of electrical outlets and switches.
- Exterior Elevations: A blueprint picture of all four sides showing exterior materials and measurements.
- Overhead Roof Plan(s): A view of the home from above showing roof pitch, peaks, valleys, and other details.
- Cross Section(s): A vertical cutaway view of the house from roof to foundation showing details of framing, construction, flooring and roofing.
- Construction Notes / Detail(s): Shows basic parts and assemblies recommended for the home so the builder can see how things come together.
Plan Set
$2125.00
$2125.00
$340.00
Foundation
$0.00
Framing
$0.00
Additional Options
$425.00
$85.00
$33.15
$85.00
* Alternate Foundations may take time to prepare.
** Options with a fee may take time to prepare. Please call to confirm.
 
       
       
                 
                         
                         
                 
                 
                 
                 
                 
                 
                 
                 
                 
                 
                        


