- Jump to:
- All (4)
- Floor plans (2)
Phone: 1-877-222-1762
See our Terms & Conditions and Privacy Policy.
Use Code CTBFALL
Residential Construction Guide
Learn Building Basics
This downloadable, 26-page guide is full of diagrams and details about plumbing, electrical, and more.
PLAN 18-268
This plan can be customized
Tell us about your desired changes so we can prepare an estimate for the design service. Click the button to submit your request for pricing, or call 1-877-222-1762 for assistance.
Plan Description
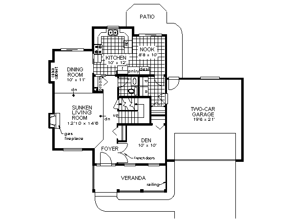
Floor Plans
Full Specs & Features
Dimension
Depth : 43' 4"
Height : 28'
Width : 50'
Area
First Floor: 976 sq/ft
Second Floor: 1026 sq/ft
Ceiling
Main Ceiling : 8'
Roof
Primary Pitch : 8:12
Exterior Wall Framing
Framing : 2"x6"
Bedroom Features
Upstairs Master Bedrooms
Walk In Closet
Kitchen Features
Breakfast Nook
Eating Bar
Additional Room Features
Den Office Study Computer
Lot Characteristics
Suited For Narrow Lot
Suited For View Lot
Outdoor Spaces
Covered Front Porch
Rooms
3rd BR Closet:
14 sq/ft width 2' x depth 7'
Bedroom 2:
125 sq/ft width 12' 6" x depth 10'
Bedroom 2 Closet:
13 sq/ft width 2' x depth 6' 6"
Bedroom 3:
123 sq/ft width 12' 4" x depth 10'
Bedroom 3 Closet:
13 sq/ft width 2' x depth 6' 6"
Bedroom 4:
106 sq/ft width 10' x depth 10' 8"
Bedroom 4 Closet:
14 sq/ft width 2' x depth 7' 2"
Breakfast Room:
86 sq/ft width 10' x depth 8' 8"
Dining Room:
110 sq/ft width 11' x depth 10'
Foyer:
36 sq/ft width 6' x depth 6'
Game Room:
100 sq/ft width 10' x depth 10'
Garage:
409 sq/ft width 21' x depth 19' 6"
Hall:
width 3' 6" x depth 0"
Hall Bathroom:
53 sq/ft width 10' x depth 5' 4"
Hall Closet:
8 sq/ft width 2' x depth 4'
Kitchen:
120 sq/ft width 12' x depth 10'
Laundry Room:
52 sq/ft width 7' 8" x depth 6' 10"
Living Room:
186 sq/ft width 14' 6" x depth 12' 10"
Master Bathroom:
58 sq/ft width 9' 8" x depth 6'
Master Bedroom:
184 sq/ft width 15' 2" x depth 12' 2"
Porch - Front:
136 sq/ft width 7' x depth 19' 6"
Powder Room:
25 sq/ft width 5' x depth 5'
Walk-In Closet:
49 sq/ft width 8' x depth 6' 2"
What's Included In This Plan Set
- Foundation Plan: Drawn to 1/4" scale, this page shows all necessary notations and dimensions including support columns, walls and excavated and unexcavated areas.
- Exterior Elevations: A blueprint picture of all four sides showing exterior materials and measurements.
- Floor Plan(s): Detailed plans, drawn to 1/4" scale for each level showing room dimensions, wall partitions, windows, etc. as well as the location of electrical outlets and switches.
- Cross Section: A vertical cutaway view of the house from roof to foundation showing details of framing, construction, flooring and roofing.
Plan Set
$1013.17
$1130.98
$1248.79
$1248.79
$2026.33
$852.72
$895.36
Foundation
$0.00
Framing
$0.00
Additional Options
$165.75
$51.00
$420.75
$127.50
$250.75
$33.15
$127.50
$0.00
$845.75
* Alternate Foundations may take time to prepare.
** Options with a fee may take time to prepare. Please call to confirm.
 
       
       
                 
                         
                         
                 
                 
                 
                 
                 
                 
                 
                 
                 
                 
                         
                        


