- Jump to:
- All (4)
- Floor plans (2)
Key Specs
1298
sq ft
3
Beds
2
Baths
1
Floors
2
Garages
Phone: 1-877-222-1762
See our Terms & Conditions and Privacy Policy.
Use Code CTB2026
Residential Construction Guide
Learn Building Basics
This downloadable, 26-page guide is full of diagrams and details about plumbing, electrical, and more.
PLAN 47-886
This plan can be customized
Tell us about your desired changes so we can prepare an estimate for the design service. Click the button to submit your request for pricing, or call 1-877-222-1762 for assistance.
Plan Description
Floor Plans
Full Specs & Features
Dimension
Depth : 36'
Height : 23'
Width : 70'
Area
First Floor: 1298 sq/ft height 8'
Roof
Primary Pitch : 9:12
Roof Framing : Combination Truss/Conventional
Exterior Wall Framing
Exterior Wall Finish : Siding
Framing : Wood - 2x6
Bedroom Features
Fireplace
Formal Dining Room
Kitchen Features
Kitchen Island
Additional Room Features
Family Room Keeping Room
Great Room Living Room
Sunroom
Garage Features
Side Entry Garage
Outdoor Spaces
Covered Front Porch
Covered Rear Porch
Deck
Screened Porch
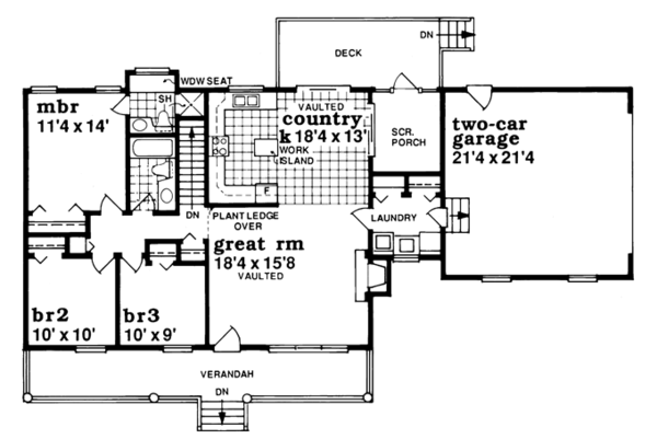
Rooms
3rd BR Closet:
7 sq/ft width 2' x depth 3' 6"
Basement Foundation:
1460 sq/ft width 30' x depth 48' 8"
Bedroom 2:
100 sq/ft width 10' x depth 10'
Bedroom 2 Closet:
width 2" x depth 4' 2"
Bedroom 3:
90 sq/ft width 9' x depth 10'
Bedroom 3 Closet:
width 2" x depth 4' 2"
Crawlspace Foundation:
136 sq/ft width 2' 6" x depth 54' 8"
Deck:
160 sq/ft width 8' x depth 20'
Foyer:
46 sq/ft width 4' x depth 11' 6"
Garage:
441 sq/ft width 21' x depth 21'
Gathering Room:
287 sq/ft width 15' 8" x depth 18' 4"
Hall Bathroom:
45 sq/ft width 8' 6" x depth 5' 4"
Hall Closet:
5 sq/ft width 2' x depth 2' 8"
Kitchen:
239 sq/ft width 13' x depth 18' 5"
Master Bathroom:
37 sq/ft width 7' x depth 5' 4"
Master Bedroom:
157 sq/ft width 14' x depth 11' 3"
Master Closet:
13 sq/ft width 2' x depth 6' 6"
Porch - Front:
240 sq/ft width 6' x depth 40'
Porch - Rear:
80 sq/ft width 10' x depth 8'
Utility Room:
72 sq/ft width 9' x depth 8'
What's Included In This Plan Set
- Foundation Plan(s): This page shows all necessary notations and dimensions including footings, support columns, walls, and excavated/unexcavated areas.
- Floor Plan(s): Detailed plans for each level showing room dimensions, wall partitions, windows and doors, fixture locations, and ceiling treatments.
- Exterior Elevations: Views of the home from all four sides showing exterior materials, roof slope, ridge heights, siding and trim notes.
- Overhead Roof Plan(s): A view of the home from above showing roof pitch, peaks, valleys, and other details.
- Cross Section(s): A slice of the home from roof to foundation, showing relationships between floors, roof, and foundation.
- Construction Notes and Detail(s): Shows basic parts and assemblies recommended for the home so the builder can see how things come together.
Plan Set
$924.00
$1056.00
$1188.00
$1188.00
$1848.00
Foundation
$0.00
$0.00
$275.00
$275.00
Framing
$0.00
Additional Options
$195.00
$60.00
$495.00
$150.00
$295.00
$39.00
$150.00
$85.00
$0.00
$995.00
* Alternate Foundations may take time to prepare.
** Options with a fee may take time to prepare. Please call to confirm.



