- Jump to:
- All (7)
- Floor plans (2)
Phone: 1-877-222-1762
See our Terms & Conditions and Privacy Policy.
Use Code CTB2026
Residential Construction Guide
Learn Building Basics
This downloadable, 26-page guide is full of diagrams and details about plumbing, electrical, and more.
PLAN 1100-106
This plan can be customized
Tell us about your desired changes so we can prepare an estimate for the design service. Click the button to submit your request for pricing, or call 1-877-222-1762 for assistance.
Plan Description
Floor Plans
Full Specs & Features
Dimension
Depth: 62'
Height: 21' 6"
Width: 38'
Area
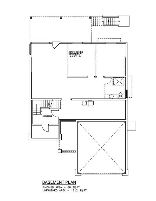
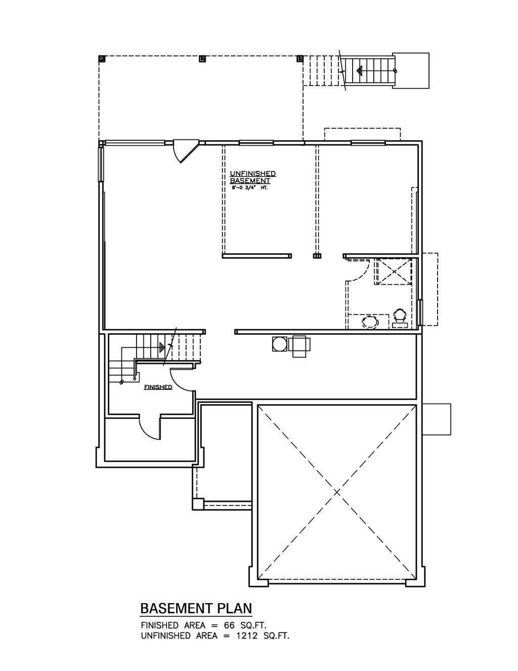
Basement: 1278 sq/ft
Decks: 260 sq/ft
Garage: 420 sq/ft
Lower Floor: 0 sq/ft
Main Floor: 1278 sq/ft
Patios: 0 sq/ft
Ceiling
Garage Ceiling: 10'
Lower Ceiling: 8'
Main Ceiling: 9'
Roof
Primary Pitch: 7/12
Roof Framing: truss
Roof Type: Gable
Exterior Wall Framing
Exterior Wall Finish: siding
Framing: 2x6
Insulation: R24
Bedroom Features
Main Floor Bedrooms
Main Floor Master Bedroom
Walk In Closet
Kitchen Features
Kitchen Island
Additional Room Features
Den Office Study Computer
Great Room Living Room
Main Floor Laundry
Storage Area
Unfinished Future Space
Garage Features
Front Entry Garage
Lot Characteristics
Suited For Corner Lot
Suited For Narrow Lot
Suited For Sloping Lot
Suited For View Lot
Outdoor Spaces
Covered Rear Porch
Grill Deck Sundeck
More
Economical To Build
Empty Nester
What's Included In This Plan Set
All plans are drawn at ¼” scale or larger and include :
- Foundation Plan: This page shows all necessary notations and dimensions including support columns, walls, and excavated/unexcavated areas.
- Exterior Elevations: Views of the home from all four sides showing exterior materials and measurements.
- Floor Plan(s): Detailed plans for each level showing room dimensions, wall partitions, windows and doors, etc.
- Cross Section: A slice of the home from roof to foundation, showing important details like stairs and wall construction.
- Overhead Roof Plan(s): A view of the home from above showing roof pitch, peaks, valleys, and other details.
- Construction Notes and Details: Shows the builder how things come together, like walls, the chimney, insulation, and more.
Plan Set
$885.00
$1549.00
$1669.00
$2876.00
Foundation
$0.00
$0.00
$200.00
$200.00
$200.00
Framing
$0.00
Additional Options
$200.00
$24.00
$0.00
$165.00
$295.00
$39.00
$165.00
$150.00
* Alternate Foundations may take time to prepare.
** Options with a fee may take time to prepare. Please call to confirm.



