Don't lose your saved plans! Create an account to access your saves whenever you want.
See our Terms & Conditions and Privacy Policy.
- Jump to:
- All (5)
- Floor plans (1)
Get Personalized Help
We do our best to get back to you within 24 - 48 business hours.
Need an answer faster? Call now...
Phone: 1-877-222-1762
Phone: 1-877-222-1762
Hours:
Ready for Your Call 7 Days a Week
Every Day 7 am - 8:30 pm Eastern
See our Terms & Conditions and Privacy Policy.
Wow!
Cost to Build Reports
Only $1.99 Right Now
Use Code CTBFALL
Use Code CTBFALL
Our Cost to Build Report gives you a personalized estimate for building your home, based on your location, plan, and materials.
Get Cost To Build Report
Limit one per order.
Residential Construction Guide
Learn Building Basics
This downloadable, 26-page guide is full of diagrams and details about plumbing, electrical, and more.
PLAN 497-14
This plan can be customized
Tell us about your desired changes so we can prepare an estimate for the design service. Click the button to submit your request for pricing, or call 1-877-222-1762 for assistance.
Plan Description
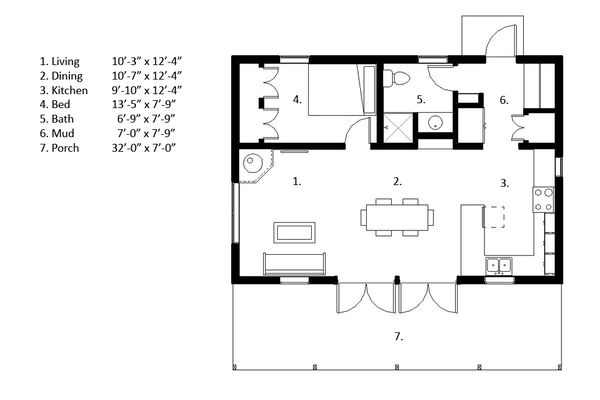
This cabin was designed with the rural lot in mind. It is a small home that maximizes space through an open floor plan and well organized spaces. Its materials and method of construction emphasize durability and energy efficiency. The metal roof, generous overhangs and crawl space foundation will ensure the structure will stand the test of time against the elements. The shell is constructed from R-Control Structural Insulated Panels (SIP’s) which will provide super insulating qualities such that a wood burning stove may be the only required heat source. This design is perfect for a wooded lot, Lake House, summer camp, or any rural lot. Enjoy the sights, sounds and smells of the outdoors from the spectacular front porch of this charming cabin. A crawl space foundation was chosen for The Cabin to accommodate a rural lot where full basements and slab on grade are often not feasible. Wood windows will hold up well in climates with extreme exposures. Vertical cedar board siding is time tested exterior finish and can be painted any color or left raw to reflect rustic charm. If properly treated and maintained cedar will last many years. This cabin house plan’s floor plan was developed to be both simple and functional. A large open and continuous area for cooking, living, and dining bring aspects of modern design into this rural setting. The bedroom and bathroom are extremely functional, and the mudroom leading to the outside presents a great place to rest and take off dirty shoes after a long hike, or stiff ski boots after a downhill session. In keeping with the rustic theme we have chosen a clear finish for the cabinets, windows, doors and interior trim. The kitchen is adequately sized to serve the needs of a large group. The kitchen is open to the dining room, which itself, can open up to the front porch through two double French doors. The high ceiling and exposed structure is the defining element of the interior spaces of The Cabin. A cozy living room is a great place to spend the evenings. Leave the double French doors open to let in the night air while you enjoy a warm fire in your wood burning stove or while you watch your favorite movies. The open floor plan inspires a communal atmosphere for friends and family.
Floor Plans
Full Specs & Features
Dimension
Depth : 22'
Height : 19'
Width : 32'
Area
Main Floor : 704 sq/ft
* Total Square Footage typically only includes conditioned space and does not include garages, porches, bonus rooms, or decks.
Ceiling
Main Ceiling : 9'
Roof
Primary Pitch : 9:12
Exterior Wall Framing
Framing : SIP
Sip
Outdoor Spaces
Covered Front Porch
Code Compliance
Irc 2006
Structural Information Provided
Foundation Drawing
Structural 1st Floor Framing
Structural Roof Framing
What's Included In This Plan Set
House plans created for Green Living give our customers design options that meet or exceed existing energy standards, while giving options in the realm of cost, style, and environmental commitment. As an example, all Green Living homes are designed to perform 30% to 50% better than prescriptive building code energy performance. The level of home performance depends on the products that you choose.
Each Green Living house plan includes:
Plans are typically drawn to ¼” scale and include:
Guidelines to meet LEED for Homes certification levels of: Certified, Silver, Gold, and Platinum. LEED for Homes is a national, voluntary certification system, developed by national experts and experienced builders, that promotes the design and construction of high-performance green homes and encourages the adoption of sustainable practices by the homebuilding industry. The LEED for Homes Rating System is part of the suite of nationally recognized LEED Green Building Rating Systems administered by USGBC. Like all LEED Rating Systems, it is the market's leadership system, targeting the top 25% of home building practices in terms of environmental responsibility. LEED provides industry resources and tools on how to "green" any new home. With LEED, homebuilders can differentiate their structures as meeting the highest performance measures, and homebuyers can readily identify high quality green homes. LEED provides national consistency in defining the features of a green home, enables builders anywhere in the country to obtain a green rating on their homes, and assures homebuyers of the quality of their purchases, all based on a recognized national brand.
» See important
information before purchasing.
Each Green Living house plan includes:
Plans are typically drawn to ¼” scale and include:
- Foundation Plan(s): This page shows all necessary notations and dimensions including footings, support columns, walls, and excavated/unexcavated areas.
- Floor Plan(s): Detailed plans showing room dimensions, wall partitions, windows, etc. as well as the location of electrical outlets and switches.
- Exterior Elevations: A blueprint picture of all four sides showing exterior materials and measurements.
- Interior Elevations: Detailed drawings of kitchen cabinet elevations and other elements as required.
- Overhead Roof Plan(s): A view of the home from above showing roof pitch, peaks, valleys, and other details.
- Cross Section(s): A vertical cutaway view of the house from roof to foundation showing details of framing, construction, flooring and roofing.
- Electrical Plan(s): In general, each house plan set includes an electrical plan which will show the locations of lights, receptacles, switches, etc. Note: Most Green Living plans have an electrical plan, however some do not. Please contact us to verify. Window shading details: External window shading devices are an effective method for reducing heat gains through windows during Summer. In fact, external shading devices can reduce heat gains by up to 80% if sized and built properly. With this in mind, the founders of Green Living, formerly Free Green, created this page to assist home builders in constructing effective window shading devices. The information we provide includes a zoning map of the United States, zoning charts for proper sizing of shading devices and a variety of shading device styles and materials to suite different tastes and different home designs.
- Construction Notes and Detail(s): Shows basic parts and assemblies recommended for the home so the builder can see how things come together.
- Framing Detail(s): The framing layout is intended to be a suggested layout only. Design loads & weather conditions vary by region. As a result the size, spacing & layout of all structural elements in this home design must be approved by a structural engineer and code official based on your specific site location prior to construction.
- Wall Section(s): Detailed drawings showing wall connections, from foundation to the roof. wall connections to foundation, window installation, siding installation, stair details, and more.
Guidelines to meet LEED for Homes certification levels of: Certified, Silver, Gold, and Platinum. LEED for Homes is a national, voluntary certification system, developed by national experts and experienced builders, that promotes the design and construction of high-performance green homes and encourages the adoption of sustainable practices by the homebuilding industry. The LEED for Homes Rating System is part of the suite of nationally recognized LEED Green Building Rating Systems administered by USGBC. Like all LEED Rating Systems, it is the market's leadership system, targeting the top 25% of home building practices in terms of environmental responsibility. LEED provides industry resources and tools on how to "green" any new home. With LEED, homebuilders can differentiate their structures as meeting the highest performance measures, and homebuyers can readily identify high quality green homes. LEED provides national consistency in defining the features of a green home, enables builders anywhere in the country to obtain a green rating on their homes, and assures homebuyers of the quality of their purchases, all based on a recognized national brand.
Questions? Call 1-877-222-1762
Plan Set
PDF Set:
$729.30
$729.30
PDF plan sets are best for fast electronic delivery and inexpensive local printing.
5 Copy Set:
$841.50
$841.50
5 printed plan sets mailed to you.
CAD Set:
$1458.60
$1458.60
For use by design professionals to make substantial changes to your house plan and inexpensive local printing.
Study Set:
$617.10
$617.10
One electronic set for bidding purposes only. Not a legal building set for construction.
Foundation
Crawlspace:
$0.00
$0.00
Ideal for semi-sloped or level lot, home can be built off of grade, typically 18” - 48”.
Slab:
$255.00
$255.00
Ideal for level lot, single layer concrete poured directly on grade.
Additional Options
Right-Reading Reverse:
$165.75
$165.75
Choose this option to reverse your plans and to have the text and dimensions readable.
Additional Construction Sets:
$42.50
$42.50
Additional hard copies of the plan (can be ordered at the time of purchase and within 90 days of the purchase date).
Additional Use License:
$420.75
$420.75
Allows you to build one more home for each additional license purchased.
Audio Video Design:
$127.50
$127.50
Receive an overlay sheet with suggested placement of audio and video components.
Comprehensive Material List:
$250.75
$250.75
A complete list of building supplies needed to construct the infrastructure of your new house, plus an overlay of materials shown directly on your PDF (foundation to rooftop with interior and exterior materials), and a detailed, itemized door and window schedule showing all sizes and types. Please allow 5-7 Business Days for completion. Note, the Comprehensive list is only available with a PDF purchase. The Comprehensive list can be ordered no matter what additional plan options you have selected.
Construction Guide:
$33.15
$33.15
Educate yourself about basic building ideas with these four detailed diagrams that discuss electrical, plumbing, mechanical, and structural topics.
Lighting Design:
$127.50
$127.50
Receive an overlay sheet with suggested placement of lighting fixtures.
Mirror Reversed Sets:
$0.00
$0.00
A mirror-reversed set is a printed copy of your house, resulting in the same image you would see if you held the drawing up to a mirror. Everything, including the text, is backward in relation to the original design. These kinds of drawing are typically used to reorient an original plan more advantageously on a site, either because the homeowner prefers it that way or because of limitations of the site itself. Note: Mirror reverse sets are only available with a 5 copy or 8 copy set. With a Reproducible, PDF, or CAD set, you can print mirrored copies locally. In addition: 5 Copy set selected, should only allow 4 mirrored sets to be selected. 8 Copy set selected, should only allow 7 mirrored sets to be selected.
Unlimited Use License:
$845.75
$845.75
Allows you to build this home as many times as you want.
* Alternate Foundations may take time to prepare.
** Options with a fee may take time to prepare. Please call to confirm.
Unless you buy an “unlimited” plan set or a multi-use license you may only build one home from a set of plans. Please call to verify if you intend to build more than once. Plan licenses are non-transferable and cannot be resold.



