- Jump to:
- All (8)
- Floor plans (3)
Key Specs
6812
sq ft
4
Beds
4
Baths
2
Floors
3
Garages
Phone: 1-877-222-1762
See our Terms & Conditions and Privacy Policy.
Use Code CTBFALL
Residential Construction Guide
Learn Building Basics
This downloadable, 26-page guide is full of diagrams and details about plumbing, electrical, and more.
PLAN 453-597
This plan can be customized
Tell us about your desired changes so we can prepare an estimate for the design service. Click the button to submit your request for pricing, or call 1-877-222-1762 for assistance.
Plan Description
Floor Plans
Full Specs & Features
Dimension
Depth : 76' 6"
Height : 400' 11"
Width : 110' 7"
Area
Bonus: 752 sq/ft height 9'
First Floor: 3956 sq/ft height 10'
Garage: 1047 sq/ft height 10'
Second Floor: 2856 sq/ft height 9'
Roof
Primary Pitch : 18:12
Roof Type : Shingle
Secondary Pitch : 12:12
Exterior Wall Framing
Exterior Wall Finish : Brick/Stone
Framing : Wood - 2x4
Bedroom Features
Fireplace
Formal Dining Room
Guest Suite
Main Floor Master Bedroom
Walk In Closet
Kitchen Features
Breakfast Nook
Additional Room Features
Den Office Study Computer
Family Room Keeping Room
Great Room Living Room
Hobby Rec Room Game Room
Media Room
Outdoor Spaces
Covered Rear Porch
More
Wheelchair Adaptable
Rooms
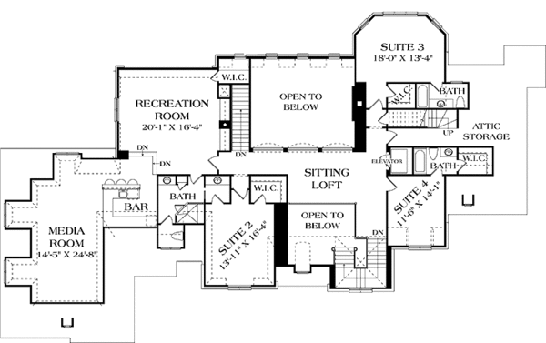
Bonus Room - Finished:
179 sq/ft width 12' 10" x depth 14'
Bonus Room - Finished:
261 sq/ft width 18' 8" x depth 14'
Dining Room:
228 sq/ft width 13' 11" x depth 16' 5"
Family Room:
401 sq/ft width 20' 1" x depth 20'
Garage:
950 sq/ft width 25' 9" x depth 36' 11"
Great Room:
369 sq/ft width 20' 6" x depth 18'
Guest Suite 2:
227 sq/ft width 13' 11" x depth 16' 4"
Guest Suite 3:
239 sq/ft width 18' x depth 13' 4"
Guest Suite 4:
161 sq/ft width 11' 6" x depth 14' 1"
Kitchen:
706 sq/ft width 26' 5" x depth 26' 9"
Master Suite:
372 sq/ft width 16' 1" x depth 23' 2"
Media Room:
355 sq/ft width 14' 5" x depth 24' 8"
Recreation Room:
328 sq/ft width 20' 1" x depth 16' 4"
Study:
206 sq/ft width 14' 8" x depth 14' 1"
What's Included In This Plan Set
- Foundation Plan(s): Dimensioned and detailed foundation plan (type as listed on home plan description). Typical foundation details, wall sections, and cornice details necessary for construction.
- Floor Plan(s): Dimensioned and detailed floor plans
- Exterior Elevations: Views of the home from all four sides showing exterior materials, roof slope, ridge heights, siding and trim notes.
- Overhead Roof Plan(s): A view of the home from above showing roof pitch, peaks, valleys, and other details.
- Cross Section(s): A slice of the home from roof to foundation, showing relationships between floors, roof, and foundation.
- Building Section(s): Shows the relationship between different levels, wall heights, and the overall building volume. May include details like foundation, framing, insulation, and finishes.
- Electrical Plan(s): Separate electrical plan (may be shown on floor plans in some cases). Shows the location of lights, receptacles, switches, etc.
- Construction Notes / Detail(s): Shows basic parts and assemblies recommended for the home so the builder can see how things come together.
- Framing Detail(s): Framing plans (framing may be shown on floor plans in some cases.) If included, the framing layout is intended to be a suggested layout only. Design loads and weather conditions vary by region. As a result the size, spacing, and layout of all structural elements in this home design may need approval by a structural engineer or code official based on your specific site location.
Plan Set
$2040.00
$2040.00
$4080.00
Foundation
$0.00
Framing
$0.00
Additional Options
$170.00
$51.00
$140.25
$420.75
$33.15
$140.25
$42.50
* Alternate Foundations may take time to prepare.
** Options with a fee may take time to prepare. Please call to confirm.



