- Jump to:
- All (27)
- Floor plans (3)
Key Specs
6804
sq ft
4
Beds
4.5
Baths
2
Floors
4
Garages
Phone: 1-877-222-1762
See our Terms & Conditions and Privacy Policy.
Use Code CTBFALL
Residential Construction Guide
Learn Building Basics
This downloadable, 26-page guide is full of diagrams and details about plumbing, electrical, and more.
PLAN 928-379
This plan can be customized
Tell us about your desired changes so we can prepare an estimate for the design service. Click the button to submit your request for pricing, or call 1-877-222-1762 for assistance.
Plan Description
Floor Plans
Full Specs & Features
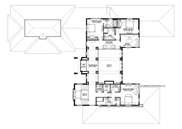
Dimension
Depth : 124'
Width : 92'
Area
Basement : 221 sq/ft
Garage : 1232 sq/ft
Main Floor : 4449 sq/ft
Storage : 520 sq/ft
Upper Floor : 2134 sq/ft
Ceiling
Ceiling Details : beamed ceilings, two story living room
Main Ceiling : 10' 1"
Upper Ceiling Ft : 8' 1"
Roof
Primary Pitch : 6/12
Roof Framing : truss
Roof Type : hip roof
Secondary Pitch : 4/12
Exterior Wall Framing
Exterior Wall Finish : trespassing siding, brick
Framing : 2x6
Bedroom Features
Guest Suite
Main Floor Master Bedroom
Split Bedrooms
Upstairs Bedrooms
Walk In Closet
Kitchen Features
Butler's Pantry
Eating Bar
Kitchen Island
Walk In Pantry Cabinet Pantry
Additional Room Features
Den Office Study Computer
Exercise Room
Family Room Keeping Room
Great Room Living Room
Hobby Rec Room Game Room
Loft
Main Floor Laundry
Master Sitting Area
Mud Room
Storage Area
Upstairs Laundry
Wet Bar
Wine Cellar
Garage Features
Side Entry Garage
Entryway
Friend S Entry
Lot Characteristics
Suited For Corner Lot
Suited For View Lot
Zero Lot Lines
Outdoor Spaces
Covered Front Porch
Grill Deck Sundeck
Outdoor Kitchen Grill
More
Additional Half Bath
Wheelchair Adaptable
What's Included In This Plan Set
Please note:  If you are building this plan in the state of Michigan, please give us a call to confirm availability. The designer has some geographic restrictions in Michigan.
All plans are drawn at ¼” scale or larger and include :Plans are typically drawn to ¼” scale and include:
- Foundation Plan(s): Drawn to 1/4" scale, this page shows all necessary notations and dimensions including support columns, walls and excavated and unexcavated areas.
- Floor Plan(s): Detailed plans, drawn to 1/4" scale for each level showing room dimensions, wall partitions, windows, etc.
- Exterior Elevations: A blueprint picture of all four sides showing exterior materials and measurements.
- Overhead Roof Plan(s): A view of the home from above showing roof pitch, peaks, valleys, and other details.
- Cross Section(s): A vertical cutaway view of the house from roof to foundation showing details of framing, construction, flooring and roofing. Important: If you are ordering a CAD set, or Right-Reading Reverse on this plan, please allow two weeks for delivery based on the current design schedule.
- Construction Notes and Detail(s): Shows basic parts and assemblies recommended for the home so the builder can see how things come together.
Plan Set
$1695.75
$3395.75
Foundation
$0.00
Framing
$0.00
Additional Options
$140.25
$420.75
$140.25
* Alternate Foundations may take time to prepare.
** Options with a fee may take time to prepare. Please call to confirm.
 
       
       
                 
                         
                         
                         
                 
                 
                 
                 
                 
                 
                 
                 
                 
                 
                        


