- Jump to:
- All (5)
- Floor plans (2)
Key Specs
6733
sq ft
4
Beds
4
Baths
2
Floors
3
Garages
Phone: 1-877-222-1762
See our Terms & Conditions and Privacy Policy.
Use Code CTBFALL
Residential Construction Guide
Learn Building Basics
This downloadable, 26-page guide is full of diagrams and details about plumbing, electrical, and more.
PLAN 453-599
This plan can be customized
Tell us about your desired changes so we can prepare an estimate for the design service. Click the button to submit your request for pricing, or call 1-877-222-1762 for assistance.
Plan Description
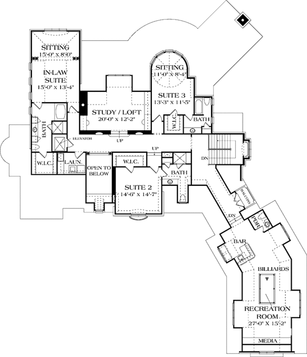
Floor Plans
Full Specs & Features
Dimension
Depth : 113' 6"
Width : 96' 11"
Area
First Floor: 3569 sq/ft height 10'
Garage: 1104 sq/ft height 10'
Second Floor: 3164 sq/ft height 9'
Roof
Roof Type : Shingle
Exterior Wall Framing
Exterior Wall Finish : Brick
Framing : Wood - 2x4
Bedroom Features
Fireplace
Formal Dining Room
Guest Suite
Main Floor Master Bedroom
Walk In Closet
Kitchen Features
Breakfast Nook
Additional Room Features
Den Office Study Computer
Family Room Keeping Room
Great Room Living Room
Hobby Rec Room Game Room
Loft
Master Sitting Area
Mud Room
Upstairs Laundry
Outdoor Spaces
Balcony
Courtyard
Rooms
Dining Room:
246 sq/ft width 14' 5" x depth 17' 1"
Family Room:
300 sq/ft width 15' x depth 20'
Garage:
1062 sq/ft width 24' x depth 44' 3"
Great Room:
333 sq/ft width 20' x depth 16' 8"
Guest Suite 2:
211 sq/ft width 14' 6" x depth 14' 7"
Guest Suite 3:
151 sq/ft width 13' 3" x depth 11' 5"
Guest Suite 4:
199 sq/ft width 15' x depth 13' 4"
Kitchen:
262 sq/ft width 18' 9" x depth 14'
Loft:
243 sq/ft width 20' x depth 12' 2"
Master Sitting Area:
120 sq/ft width 15' x depth 8'
Master Suite:
274 sq/ft width 15' x depth 18' 4"
Office:
135 sq/ft width 12' 2" x depth 11' 2"
Recreation Room:
409 sq/ft width 27' x depth 15' 2"
Sitting Area:
120 sq/ft width 15' x depth 8'
What's Included In This Plan Set
- Foundation Plan(s): Dimensioned and detailed foundation plan (type as listed on home plan description). Typical foundation details, wall sections, and cornice details necessary for construction.
- Floor Plan(s): Dimensioned and detailed floor plans
- Exterior Elevations: Views of the home from all four sides showing exterior materials, roof slope, ridge heights, siding and trim notes.
- Overhead Roof Plan(s): A view of the home from above showing roof pitch, peaks, valleys, and other details.
- Cross Section(s): A slice of the home from roof to foundation, showing relationships between floors, roof, and foundation.
- Building Section(s): Shows the relationship between different levels, wall heights, and the overall building volume. May include details like foundation, framing, insulation, and finishes.
- Electrical Plan(s): Separate electrical plan (may be shown on floor plans in some cases). Shows the location of lights, receptacles, switches, etc.
- Construction Notes / Detail(s): Shows basic parts and assemblies recommended for the home so the builder can see how things come together.
- Framing Detail(s): Framing plans (framing may be shown on floor plans in some cases.) If included, the framing layout is intended to be a suggested layout only. Design loads and weather conditions vary by region. As a result the size, spacing, and layout of all structural elements in this home design may need approval by a structural engineer or code official based on your specific site location.
Plan Set
$2400.00
$2400.00
$4800.00
Foundation
$0.00
Framing
$0.00
Additional Options
$60.00
$165.00
$495.00
$39.00
$165.00
$50.00
* Alternate Foundations may take time to prepare.
** Options with a fee may take time to prepare. Please call to confirm.



