- Jump to:
- All (12)
- Floor plans (3)
Phone: 1-877-222-1762
See our Terms & Conditions and Privacy Policy.
Use Code CTBFALL
Residential Construction Guide
Learn Building Basics
This downloadable, 26-page guide is full of diagrams and details about plumbing, electrical, and more.
PLAN 928-371
This plan can be customized
Tell us about your desired changes so we can prepare an estimate for the design service. Click the button to submit your request for pricing, or call 1-877-222-1762 for assistance.
Plan Description
Floor Plans
Full Specs & Features
Dimension
Depth : 93'
Height : 0"
Width : 66'
Area
Garage : 1076 sq/ft
Lower Floor : 1533 sq/ft
Main Floor : 2069 sq/ft
Porch : 196 sq/ft
Storage : 360 sq/ft
Upper Floor : 1238 sq/ft
Ceiling
Garage Ceiling : 9' 1"
Lower Ceiling : 9' 1"
Main Ceiling : 9' 1"
Upper Ceiling Ft : 8' 1"
Roof
Primary Pitch : 10/12
Roof Framing : truss
Secondary Pitch : 12/12
Exterior Wall Framing
Exterior Wall Finish : board & batten
Framing : 2x6
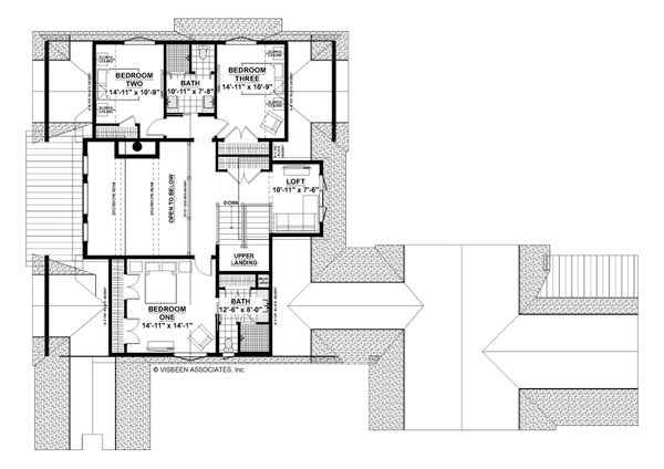
Bedroom Features
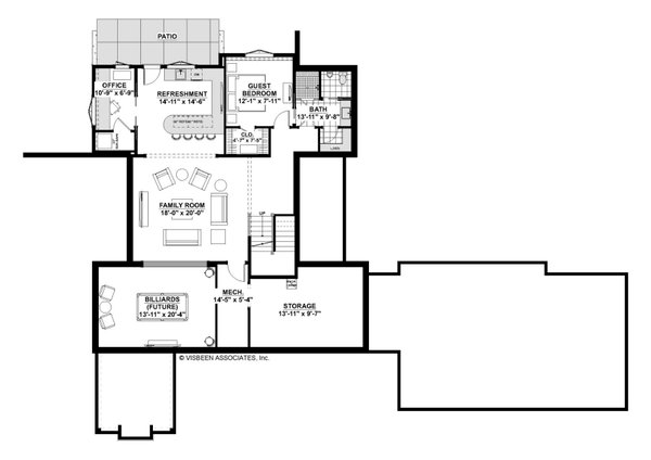
Guest Suite
Lower Level Bedrooms
Main Floor Master Bedroom
Split Bedrooms
Upstairs Bedrooms
Walk In Closet
Kitchen Features
Eating Bar
Kitchen Island
Kitchenette Wet Bar
Walk In Pantry Cabinet Pantry
Additional Room Features
Mud Room
Garage Features
Side Entry Garage
Lot Characteristics
Suited For Corner Lot
Suited For Narrow Lot
Suited For Sloping Lot
Suited For View Lot
Outdoor Spaces
Covered Front Porch
Covered Rear Porch
Grill Deck Sundeck
Screened Porch
More
Economical To Build
Empty Nester
Suited For Vacation Home
What's Included In This Plan Set
Please note: If you are building this plan in the state of Michigan, please give us a call to confirm availability. The designer has some geographic restrictions in Michigan.
All plans are drawn at ¼” scale or larger and include :Plans are typically drawn to ¼” scale and include:
- Foundation Plan(s): Drawn to 1/4" scale, this page shows all necessary notations and dimensions including support columns, walls and excavated and unexcavated areas.
- Floor Plan(s): Detailed plans, drawn to 1/4" scale for each level showing room dimensions, wall partitions, windows, etc.
- Exterior Elevations: A blueprint picture of all four sides showing exterior materials and measurements.
- Overhead Roof Plan(s): A view of the home from above showing roof pitch, peaks, valleys, and other details.
- Cross Section(s): A vertical cutaway view of the house from roof to foundation showing details of framing, construction, flooring and roofing. Important: If you are ordering a CAD set, or Right-Reading Reverse on this plan, please allow two weeks for delivery based on the current design schedule.
- Construction Notes and Detail(s): Shows basic parts and assemblies recommended for the home so the builder can see how things come together.
Plan Set
$1270.75
$2970.75
Foundation
$0.00
Framing
$0.00
Additional Options
$165.75
$140.25
$335.75
$140.25
* Alternate Foundations may take time to prepare.
** Options with a fee may take time to prepare. Please call to confirm.



