Don't lose your saved plans! Create an account to access your saves whenever you want.
See our Terms & Conditions and Privacy Policy.
- Jump to:
- All (5)
- Floor plans (1)
Get Personalized Help
We do our best to get back to you within 24 - 48 business hours.
Need an answer faster? Call now...
Phone: 1-877-222-1762
Phone: 1-877-222-1762
Hours:
Ready for Your Call 7 Days a Week
Every Day 7 am - 8:30 pm Eastern
See our Terms & Conditions and Privacy Policy.
Residential Construction Guide
Learn Building Basics
This downloadable, 26-page guide is full of diagrams and details about plumbing, electrical, and more.
PLAN 124-1340
This plan can be customized
Tell us about your desired changes so we can prepare an estimate for the design service. Click the button to submit your request for pricing, or call 1-877-222-1762 for assistance.
Plan Description
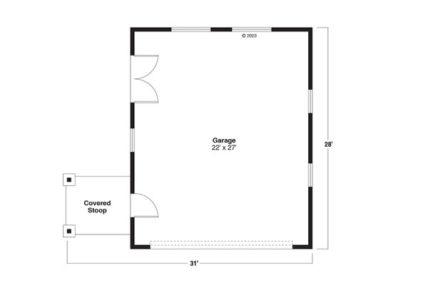
This stunning Craftsman garage would act as a statement of an addition to your property. With the capacity to hold two cars fitting in the large 18' x 12' door this garage can house vehicles that fall on the larger side. The covered stoop to the right is a perfect entry way or gateway that can face your home or simply keep you out of the elements.
Floor Plans
Full Specs & Features
Dimension
Depth : 28'
Height : 22' 9"
Width : 31'
Area
Garage : 644 sq/ft
* Total Square Footage typically only includes conditioned space and does not include garages, porches, bonus rooms, or decks.
Ceiling
Main Ceiling : 14'
Roof
Primary Pitch : 8/12
Roof Framing : Truss
Roof Load : 25
Exterior Wall Framing
Exterior Wall Finish : Shingle/Stone/Siding
Framing : 2x6
Garage Features
Front Entry Garage
Outdoor Spaces
Covered Front Porch
What's Included In This Plan Set
Please note, if ordering a PDF Print Set, it is not-modifiable. The CAD set is best for making local modifications. The "5 set + PDF" combo contains a non-modifiable PDF Print Set.
Each plan set is drawn at 1/4"=1' scale and includes the following drawings:
» See important
information before purchasing.
Each plan set is drawn at 1/4"=1' scale and includes the following drawings:
- Artist's Rendering: An artist's drawing of the home, usually viewed from the front, and general construction notes.
- Elevations: Shows the front, sides, and rear, including exterior materials, trim sizes, roof pitches, etc.
- Main Floor Plan: Shows placement and dimensions of walls, doors, & windows. Includes the location of appliances, plumbing fixtures, beams, ceiling heights, etc.
- Second Floor Plan (if any): Shows the second floor in the same detail as the main floor. Includes second floor framing and details.
- Foundation Plan: Shows the location of all concrete footings, floor beams, first floor framing, and foundation details. If there is a basement, a basement plan is included which shows all basement details. Foundation types vary; please call to confirm the foundation type of the plan you are interested in.
- Floor Framing Plan (if any): Shows location and spacing of floor joists and supporting walls or beams.
- Roof Framing Plan: Shows roof outlines, conventional framing/trusses, beams, roof framing details, etc. Specific details such as fireplaces, stairways, decks, etc. Details are drawn at 1/2" = 1' scale, and appear as needed throughout the prints.
- Section: Shows a cross-section of the home. Shows support members, exterior and interior materials, insulation, and foundation.
- Electrical Plan: A schematic layout of all lighting, switches and electrical outlets.
Questions? Call 1-877-222-1762
Plan Set
PDF Print Set:
$229.50
$229.50
A non-modifiable, print only PDF file
5 Copy and PDF Set:
$272.00
$272.00
5 printed plan sets mailed to you plus PDF plan sets are best for fast electronic delivery and inexpensive local printing.
PDF Master Set:
$454.75
$454.75
An unlocked, modifiable PDF file
CAD Set:
$501.50
$501.50
For use by design professionals to make substantial changes to your house plan and inexpensive local printing.
Master Builder Package:
$565.25
$565.25
Includes CAD Set, PDF Masters and Unlimited Build License
Study Set:
$161.50
$161.50
One electronic set for bidding purposes only. Not a legal building set for construction.
Foundation
Slab:
$0.00
$0.00
Ideal for level lot, single layer concrete poured directly on grade.
Framing
Wood 2x6:
$0.00
$0.00
Wood 2x6 Exterior Walls
Wood 2x4:
$42.50
$42.50
Wood 2x4 Exterior Walls
Additional Options
Right-Reading Reverse:
$38.25
$38.25
Choose this option to reverse your plans and to have the text and dimensions readable.
Additional Construction Sets:
$12.75
$12.75
Additional hard copies of the plan (can be ordered at the time of purchase and within 90 days of the purchase date).
Additional Use License:
$161.50
$161.50
Allows you to build one more home for each additional license purchased.
Audio Video Design:
$140.25
$140.25
Receive an overlay sheet with suggested placement of audio and video components.
Comprehensive Material List:
$250.75
$250.75
A complete list of building supplies needed to construct the infrastructure of your new house, plus an overlay of materials shown directly on your PDF (foundation to rooftop with interior and exterior materials), and a detailed, itemized door and window schedule showing all sizes and types. Please allow 5-7 Business Days for completion. Note, the Comprehensive list is only available with a PDF purchase. The Comprehensive list can be ordered no matter what additional plan options you have selected.
Lighting Design:
$140.25
$140.25
Receive an overlay sheet with suggested placement of lighting fixtures.
* Alternate Foundations may take time to prepare.
** Options with a fee may take time to prepare. Please call to confirm.
Unless you buy an “unlimited” plan set or a multi-use license you may only build one home from a set of plans. Please call to verify if you intend to build more than once. Plan licenses are non-transferable and cannot be resold.



