- Jump to:
- All (6)
- Floor plans (2)
Key Specs
5513
sq ft
4
Beds
4.5
Baths
2
Floors
3
Garages
Phone: 1-877-222-1762
See our Terms & Conditions and Privacy Policy.
Use Code CTBFALL
Residential Construction Guide
Learn Building Basics
This downloadable, 26-page guide is full of diagrams and details about plumbing, electrical, and more.
PLAN 1058-12
This plan can be customized
Tell us about your desired changes so we can prepare an estimate for the design service. Click the button to submit your request for pricing, or call 1-877-222-1762 for assistance.
Plan Description
Floor Plans
Full Specs & Features
Dimension
Depth : 147'
Height : 33'
Width : 100' 4"
Area
First Floor: 4000 sq/ft height 12'
Garage: 937 sq/ft
Second Floor: 1161 sq/ft height 10'
Roof
Primary Pitch : 5:12
Roof Framing : Truss
Roof Type : Tile
Exterior Wall Framing
Exterior Wall Finish : Stucco
Framing : Block (1st Story)/ Wood – 2x6 (2nd Story)
Bedroom Features
Fireplace
Formal Dining Room
Formal Living Room / Parlor
Guest Suite
Main Floor Master Bedroom
Split Bedrooms
Walk In Closet
Kitchen Features
Breakfast Nook
Butler's Pantry
Kitchen Island
Kitchenette Wet Bar
Walk In Pantry Cabinet Pantry
Additional Room Features
Den Office Study Computer
Exercise Room
Family Room Keeping Room
Loft
Main Floor Laundry
Master Sitting Area
Mud Room
Workshop
Garage Features
Side Entry Garage
Outdoor Spaces
Balcony
Courtyard
Covered Rear Porch
Deck
Grill Deck Sundeck
Outdoor Fireplace
Outdoor Kitchen Grill
Wrap Around Porch
Rooms
Arcade:
284 sq/ft
Breakfast:
width 74' x depth 13'
Computer Nook:
width 11' x depth 11'
Dining Room:
width 13' 8" x depth 14' 6"
Family Room:
width 22' x depth 22'
Garage:
937 sq/ft width 38' x depth 23'
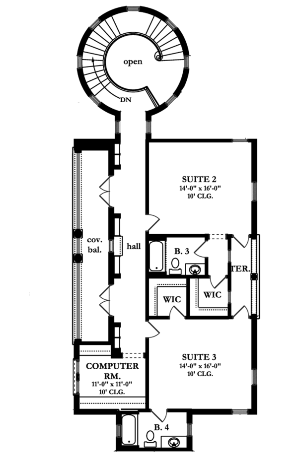
Guest Suite:
352 sq/ft width 16' 4" x depth 13' 4"
Kitchen:
width 17' x depth 17'
Living Room:
width 13' 8" x depth 14' 6"
Master Bedroom:
width 15' x depth 21'
Sitting Area:
width 10' x depth 10'
Study:
width 16' 8" x depth 13'
Suite 2:
width 14' x depth 16'
Suite 3:
width 14' x depth 16'
Utility:
width 10' x depth 13'
What's Included In This Plan Set
All plans are drawn at ¼” scale or larger and include :
- Foundation Plan: This page shows all necessary notations and dimensions including support columns, walls, and excavated/unexcavated areas.
- Exterior Elevations: Views of the home from all four sides showing exterior materials and measurements.
- Floor Plan(s): Detailed plans for each level showing room dimensions, wall partitions, windows and doors, etc.
- Cross Section: A slice of the home from roof to foundation, showing important details like stairs and wall construction.
- Overhead Roof Plan(s): A view of the home from above showing roof pitch, peaks, valleys, and other details.
- Construction Notes and Details: Shows the builder how things come together, like walls, the chimney, insulation, and more.
Plan Set
$3825.00
$4335.00
$4675.00
Foundation
$212.50
Framing
$0.00
Additional Options
$255.00
$59.50
$2337.50
$85.00
$33.15
$170.00
* Alternate Foundations may take time to prepare.
** Options with a fee may take time to prepare. Please call to confirm.



