- Jump to:
- All (7)
- Floor plans (4)
Key Specs
5300
sq ft
6
Beds
4.5
Baths
2
Floors
2
Garages
Phone: 1-877-222-1762
See our Terms & Conditions and Privacy Policy.
Use Code CTBFALL
Residential Construction Guide
Learn Building Basics
This downloadable, 26-page guide is full of diagrams and details about plumbing, electrical, and more.
PLAN 920-99
This plan can be customized
Tell us about your desired changes so we can prepare an estimate for the design service. Click the button to submit your request for pricing, or call 1-877-222-1762 for assistance.
Plan Description
Floor Plans
Full Specs & Features
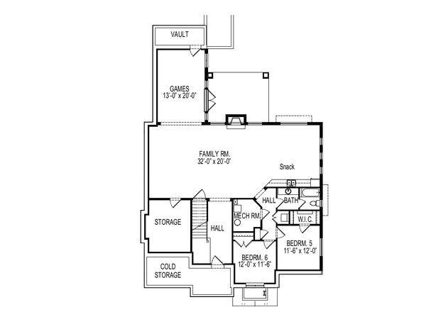
Dimension
Depth : 66' 6"
Height : 26' 11"
Width : 51' 6"
Area
Basement : 1989 sq/ft
Decks : 215 sq/ft
Garage : 722 sq/ft
Lower Floor : 1989 sq/ft
Main Floor : 2234 sq/ft
Patios : 312 sq/ft
Porch : 165 sq/ft
Storage : 450 sq/ft
Upper Floor : 1077 sq/ft
Ceiling
Garage Ceiling : 11'
Lower Ceiling : 9'
Main Ceiling : 9'
Upper Ceiling Ft : 9'
Roof
Primary Pitch : 8/12
Secondary Pitch : 4/12
Exterior Wall Framing
Framing : 2x6
Bedroom Features
Main Floor Bedrooms
Main Floor Master Bedroom
Upstairs Bedrooms
Walk In Closet
Kitchen Features
Kitchen Island
Kitchenette Wet Bar
Walk In Pantry Cabinet Pantry
Additional Room Features
Den Office Study Computer
Family Room Keeping Room
Great Room Living Room
Hobby Rec Room Game Room
Main Floor Laundry
Mud Room
Storage Area
Wet Bar
Garage Features
Detached Garage
Front Entry Garage
Lot Characteristics
Suited For Sloping Lot
Suited For View Lot
Outdoor Spaces
Covered Front Porch
Covered Rear Porch
Energy Efficient Features
Energy Efficient Design
What's Included In This Plan Set
- Cover Sheet: Drawing index, designer contact info, plan name/number, legal disclaimers.
- Foundation Plan(s): This page shows all necessary notations and dimensions including footings, support columns, walls, and excavated/unexcavated areas.
- Floor Plan(s): Detailed plans for each level showing room dimensions, wall partitions, windows and doors, fixture locations, and ceiling treatments.
- Exterior Elevations: Views of the home from all four sides showing exterior materials, roof slope, ridge heights, siding and trim notes.
- Overhead Roof Plan(s): A view of the home from above showing roof pitch, peaks, valleys, and other details.
- Cross Section(s): A slice of the home from roof to foundation, showing relationships between floors, roof, and foundation.
- Electrical Plan(s): Shows the location of lights, receptacles, switches, etc. Some plans that do not include an electrical plan may have it available for an additional fee.
- Construction Notes / Detail(s): Shows basic parts and assemblies recommended for the home so the builder can see how things come together.
- Rendering(s): 3D perspective views (not included with all plans)
- Door / Window Schedule(s): A list of all the doors and windows needed to construct the house. This can help with estimating materials costs.
Plan Set
$2814.35
$4221.53
Foundation
$0.00
$425.00
Additional Options
$42.50
$85.00
$33.15
$170.00
$170.00
* Alternate Foundations may take time to prepare.
** Options with a fee may take time to prepare. Please call to confirm.



