- Jump to:
- All (6)
- Floor plans (2)
Key Specs
4632
sq ft
5
Beds
3.5
Baths
2
Floors
4
Garages
Phone: 1-877-222-1762
See our Terms & Conditions and Privacy Policy.
Use Code CTB2026
Residential Construction Guide
Learn Building Basics
This downloadable, 26-page guide is full of diagrams and details about plumbing, electrical, and more.
PLAN 117-515
This plan can be customized
Tell us about your desired changes so we can prepare an estimate for the design service. Click the button to submit your request for pricing, or call 1-877-222-1762 for assistance.
Plan Description
Floor Plans
Full Specs & Features
Dimension
Depth: 63' 7"
Height: 20' 7"
Width: 115' 2"
Area
Basement Living: 2316 sq/ft
First Floor: 2316 sq/ft
Ceiling
Main Ceiling: 10'
Roof
Primary Pitch: 7:12
Roof Framing: Truss
Exterior Wall Framing
Exterior Wall Finish: Siding/Stone
Framing: ICF
Rooms
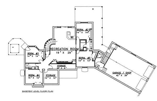
Bedroom 2:
203 sq/ft width 14' x depth 14' 6"
Bedroom 3:
210 sq/ft width 14' 10" x depth 14' 2"
Bedroom 4:
190 sq/ft width 15' x depth 12' 8"
Bedroom 5:
202 sq/ft width 14' 8" x depth 13' 10"
Deck:
330 sq/ft width 24' x depth 13' 9"
Den:
163 sq/ft width 12' 7" x depth 13'
Dining Room:
186 sq/ft width 14' x depth 13' 4"
Foyer:
102 sq/ft width 10' 7" x depth 9' 8"
Garage:
1050 sq/ft width 42' x depth 25'
Garage Two:
1050 sq/ft width 42' x depth 25'
Great Room:
434 sq/ft width 19' 2" x depth 22' 8"
Kitchen:
238 sq/ft width 14' x depth 17'
Master Suite:
265 sq/ft width 15' x depth 17' 8"
Recreation Room:
562 sq/ft width 19' 2" x depth 29' 4"
What's Included In This Plan Set
- Foundation Plan(s): Footing locations, foundation details, etc.
- Floor Plan(s): Layout of floor plan, window/door schedule, interior and exterior dimensions
- Exterior Elevations: Exterior on all four sides, siding notes, roof pitches, garage door heights, etc.
- Overhead Roof Plan(s): A view of the home from above showing roof pitch, peaks, valleys, and other details.
- Cross Section(s): Cut-through view of home. Shows foundation, insulation, wall construction, ceiling heights, etc.
- Electrical Plan(s): Lighting, switches, electrical outlet placement throughout home.
- Detail Sheet(s): Additional structural details included in most log and ICF plans. Important: design loads and weather conditions vary by region. As a result the size, spacing, and layout of all structural elements in this home design may need approval by a structural engineer or code official based on your specific site location.
- Construction Notes / Detail(s): Referencing the entirety of the project.
- Framing Detail(s): Location of supporting walls and beams. Location/spacing of floor joists, floor framing details. Layout of roof, roof framing details, truss/rafter locations, connection details etc. If included, the framing layout is intended to be a suggested layout only. Design loads and weather conditions vary by region. As a result the size, spacing, and layout of all structural elements in this home design may need approval by a structural engineer or code official based on your specific site location.
Plan Set
$2525.00
$2525.00
$2525.00
$2525.00
$3295.00
Foundation
$0.00
Additional Options
$195.00
$165.00
$395.00
$39.00
$165.00
* Alternate Foundations may take time to prepare.
** Options with a fee may take time to prepare. Please call to confirm.



