- Jump to:
- All (5)
- Floor plans (2)
Key Specs
4578
sq ft
6
Beds
6
Baths
1
Floors
6
Garages
Phone: 1-877-222-1762
See our Terms & Conditions and Privacy Policy.
Use Code CTBFALL
Residential Construction Guide
Learn Building Basics
This downloadable, 26-page guide is full of diagrams and details about plumbing, electrical, and more.
PLAN 70-1406
This plan can be customized
Tell us about your desired changes so we can prepare an estimate for the design service. Click the button to submit your request for pricing, or call 1-877-222-1762 for assistance.
Plan Description
Floor Plans
Full Specs & Features
Dimension
Depth : 59' 8"
Height : 20' 10"
Width : 106' 4"
Area
Basement Living: 686 sq/ft
Basement Living: 686 sq/ft
First Floor: 1616 sq/ft
First Floor: 1590 sq/ft
Garage: 783 sq/ft
Roof
Primary Pitch : 8:12
Roof Framing : Truss
Roof Type : Asphalt
Exterior Wall Framing
Exterior Wall Finish : Brick/Siding
Framing : Wood - 2x6
Bedroom Features
Formal Dining Room
Main Floor Master Bedroom
Walk In Closet
Kitchen Features
Breakfast Nook
Additional Room Features
Den Office Study Computer
Family Room Keeping Room
Great Room Living Room
Outdoor Spaces
Covered Rear Porch
Deck
Rooms
Bedroom 2:
156 sq/ft width 12' x depth 13'
Bedroom 2:
132 sq/ft width 12' x depth 11'
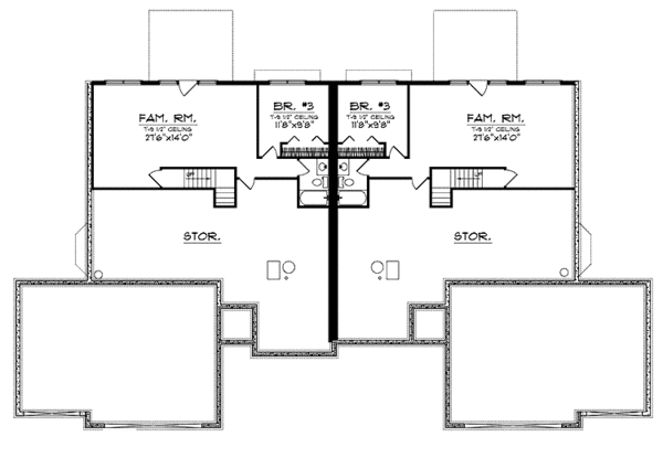
Bedroom 3:
112 sq/ft width 11' 8" x depth 9' 8"
Bedroom 3:
112 sq/ft width 11' 8" x depth 9' 8"
Dining Room:
124 sq/ft width 14' 8" x depth 8' 6"
Dining Room:
124 sq/ft width 14' 8" x depth 8' 6"
Family Room:
385 sq/ft width 27' 6" x depth 14'
Family Room:
385 sq/ft width 27' 6" x depth 14'
Garage:
783 sq/ft width 33' 4" x depth 23' 6"
Garage:
783 sq/ft width 33' 4" x depth 23' 6"
Great Room:
287 sq/ft width 21' x depth 13' 8"
Great Room:
287 sq/ft width 21' x depth 13' 8"
Kitchen:
140 sq/ft width 14' x depth 10'
Kitchen:
140 sq/ft width 14' x depth 10'
Master Bedroom:
219 sq/ft width 14' x depth 15' 8"
Master Bedroom:
219 sq/ft width 14' x depth 15' 8"
Nook:
81 sq/ft width 9' x depth 9'
Nook:
81 sq/ft width 9' x depth 9'
What's Included In This Plan Set
- Cover Sheet: Cover sheet with front rendering
- Foundation Plan(s): Foundation plans at 1/4" = 1' scale
- Floor Plan(s): Floor plans at 1/4" = 1' scale
- Exterior Elevations: Exterior elevations of all four views, front at 1/4" = 1' scale, rear and sides vary from 1/8" to 1/4" = 1' scale
- Overhead Roof Plan(s): A view of the home from above showing roof pitch, peaks, valleys, and other details.
- Cross Section(s): A slice of the home from roof to foundation, showing relationships between floors, roof, and foundation.
- Building Section(s): Building sections and details as required to construct the individual design
- Electrical Plan(s): Schematic electrical plans with suggested switch, outlet, and light fixture locations
- Kitchen Cabinet Elevation(s): Interior elevation of cabinets at 1/4" = 1' scale
- Construction Notes / Detail(s): Shows basic parts and assemblies recommended for the home so the builder can see how things come together.
- Specification(s): General specification design notes
Plan Set
$2529.60
$2685.15
$3697.50
$3697.50
$7199.50
Foundation
$0.00
$552.50
$552.50
Framing
$0.00
Additional Options
$335.75
$68.00
$140.25
$335.75
$33.15
$140.25
$63.75
* Alternate Foundations may take time to prepare.
** Options with a fee may take time to prepare. Please call to confirm.



