- Jump to:
- All (12)
- Floor plans (2)
Key Specs
4536
sq ft
4
Beds
4.5
Baths
2
Floors
3
Garages
Phone: 1-877-222-1762
See our Terms & Conditions and Privacy Policy.
Use Code CTB2026
Residential Construction Guide
Learn Building Basics
This downloadable, 26-page guide is full of diagrams and details about plumbing, electrical, and more.
PLAN 1096-3
This plan can be customized
Tell us about your desired changes so we can prepare an estimate for the design service. Click the button to submit your request for pricing, or call 1-877-222-1762 for assistance.
Plan Description
Floor Plans
Full Specs & Features
Dimension
Depth: 75' 10"
Height: 31'
Width: 88' 2"
Area
Garage: 838 sq/ft
Lower Floor: 0 sq/ft
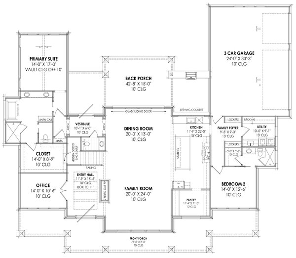
Main Floor: 2850 sq/ft
Porch: 1198 sq/ft
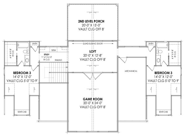
Upper Floor: 1686 sq/ft
Ceiling
Garage Ceiling: 10'
Main Ceiling: 10'
Upper Ceiling Ft: 9'
Roof
Primary Pitch: 12:12
Roof Type: STICK
Secondary Pitch: 10:12
Exterior Wall Framing
Exterior Wall Finish: ROCK & HARDIE BOARD AND BATTEN SIDING
Framing: 2X4
Bedroom Features
Main Floor Bedrooms
Main Floor Master Bedroom
Split Bedrooms
Upstairs Bedrooms
Walk In Closet
Kitchen Features
Kitchen Island
Walk In Pantry Cabinet Pantry
Additional Room Features
Den Office Study Computer
Great Room Living Room
Hobby Rec Room Game Room
Loft
Main Floor Laundry
Mud Room
Garage Features
Side Entry Garage
Lot Characteristics
Suited For Corner Lot
Suited For View Lot
Outdoor Spaces
Balcony
Covered Front Porch
Covered Rear Porch
Outdoor Kitchen Grill
What's Included In This Plan Set
- Foundation Plan(s): This page shows all necessary notations and dimensions including footings, support columns, walls, and excavated/unexcavated areas.
- Floor Plan(s): Detailed plans for each level showing room dimensions, wall partitions, windows and doors, fixture locations, and ceiling treatments.
- Exterior Elevations: Views of the home from all four sides showing exterior materials, roof slope, ridge heights, siding and trim notes.
- Overhead Roof Plan(s): A view of the home from above showing roof pitch, peaks, valleys, and other details.
- Cross Section(s): A slice of the home from roof to foundation, showing relationships between floors, roof, and foundation.
- Construction Notes and Detail(s): Shows basic parts and assemblies recommended for the home so the builder can see how things come together.
- Modeling: A 3D perspective view of the home design
- Main / Upper-Level Floor Plans: Typically drawn to 1/4" scale with all dimensions and notes, plus a Window and Door Schedule showing all door and window types, quantities, and descriptions.
- Electrical Details and Sections: Illustrated on a separate page for clarity, the electrical plan shows suggested electrical layout for the main and upper-level floor plans.
- Exterior Elevations: All elevations are noted, and an aerial view of the roof is provided, showing all hips, valleys, and ridges.
- Siding Notes and Details: Siding installation page and wall sheathing / portal wall framing page.
- General Notes and Area Details: Shows square footage details for foundation, porches, patios, garage, and floor plans, plus general contractor notes.
- Foundation Plan: Dimensioned foundation plan with notes and generic beam details. Basic plumbing plan that shows distances from the edge of the slab on grade to each fixture. Slab foundations are standard for most plans, Alternate foundations are available for a fee.
- Typical floor joist/roof truss diagram: Shows placement and directions of floor joists, suggested placement and direction of roof trusses.
- Wall Section(s): Detail of wall materials and assembly, plate heights, fireplace detail
- Note: Interior elevations are not typically included but can be added for a fee. Please call for details.
Plan Set
$2097.00
$2668.50
$3046.50
Foundation
$0.00
$486.00
$531.00
$675.00
Framing
$0.00
$265.50
Additional Options
$220.50
$148.50
$355.50
$35.10
$148.50
* Alternate Foundations may take time to prepare.
** Options with a fee may take time to prepare. Please call to confirm.



