- Jump to:
- All (3)
- Floor plans (2)
Key Specs
4306
sq ft
4
Beds
4
Baths
2
Floors
3
Garages
Phone: 1-877-222-1762
See our Terms & Conditions and Privacy Policy.
Use Code CTBFALL
Residential Construction Guide
Learn Building Basics
This downloadable, 26-page guide is full of diagrams and details about plumbing, electrical, and more.
PLAN 453-188
This plan can be customized
Tell us about your desired changes so we can prepare an estimate for the design service. Click the button to submit your request for pricing, or call 1-877-222-1762 for assistance.
Plan Description
Floor Plans
Full Specs & Features
Dimension
Depth : 90' 4"
Height : 37'
Width : 64' 10"
Area
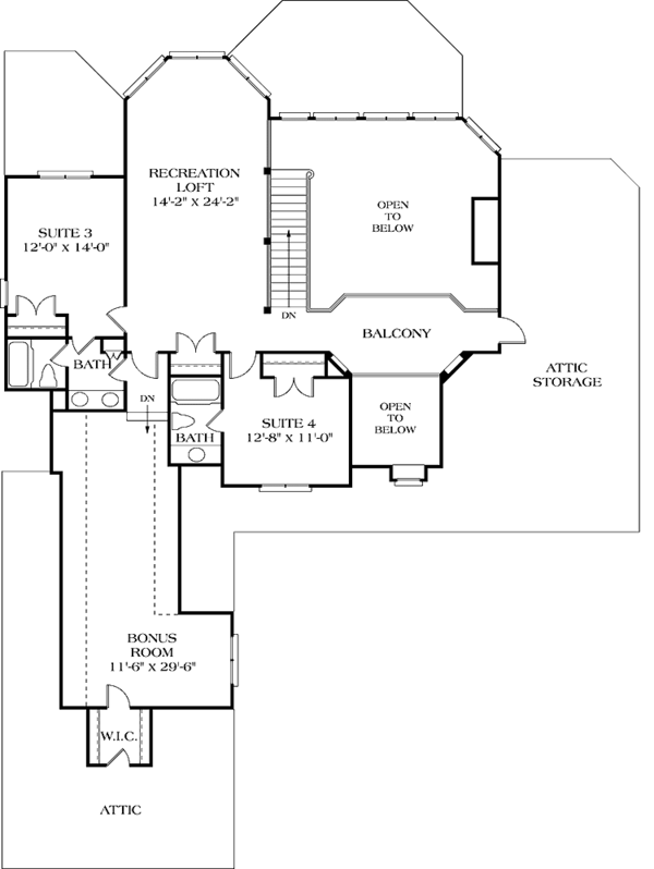
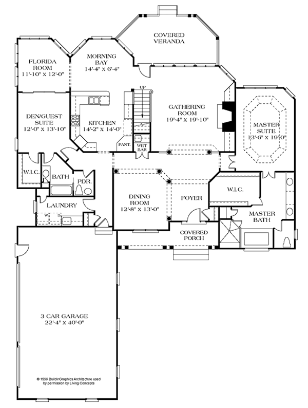
First Floor: 2591 sq/ft
Second Floor: 1715 sq/ft
Roof
Primary Pitch : 12:12
Roof Framing : Conventional
Exterior Wall Framing
Exterior Wall Finish : Brick
Framing : Wood - 2x4
Bedroom Features
Fireplace
Formal Dining Room
Formal Living Room / Parlor
Additional Room Features
Great Room Living Room
Sunroom
Garage Features
Side Entry Garage
Outdoor Spaces
Covered Front Porch
Covered Rear Porch
Screened Porch
What's Included In This Plan Set
- Foundation Plan(s): Dimensioned and detailed foundation plan (type as listed on home plan description). Typical foundation details, wall sections, and cornice details necessary for construction.
- Floor Plan(s): Dimensioned and detailed floor plans
- Exterior Elevations: Views of the home from all four sides showing exterior materials, roof slope, ridge heights, siding and trim notes.
- Overhead Roof Plan(s): A view of the home from above showing roof pitch, peaks, valleys, and other details.
- Cross Section(s): A slice of the home from roof to foundation, showing relationships between floors, roof, and foundation.
- Building Section(s): Shows the relationship between different levels, wall heights, and the overall building volume. May include details like foundation, framing, insulation, and finishes.
- Electrical Plan(s): Separate electrical plan (may be shown on floor plans in some cases). Shows the location of lights, receptacles, switches, etc.
- Construction Notes / Detail(s): Shows basic parts and assemblies recommended for the home so the builder can see how things come together.
- Framing Detail(s): Framing plans (framing may be shown on floor plans in some cases.) If included, the framing layout is intended to be a suggested layout only. Design loads and weather conditions vary by region. As a result the size, spacing, and layout of all structural elements in this home design may need approval by a structural engineer or code official based on your specific site location.
Plan Set
$1800.00
$1800.00
Foundation
$0.00
Framing
$0.00
Additional Options
$60.00
$165.00
$395.00
$39.00
$165.00
$50.00
* Alternate Foundations may take time to prepare.
** Options with a fee may take time to prepare. Please call to confirm.



