- Jump to:
- All (9)
- Floor plans (2)
Phone: 1-877-222-1762
See our Terms & Conditions and Privacy Policy.
Use Code CTBFALL
Residential Construction Guide
Learn Building Basics
This downloadable, 26-page guide is full of diagrams and details about plumbing, electrical, and more.
PLAN 124-621
This plan can be customized
Tell us about your desired changes so we can prepare an estimate for the design service. Click the button to submit your request for pricing, or call 1-877-222-1762 for assistance.
Plan Description
Floor Plans
Full Specs & Features
Dimension
Depth : 108' 6"
Height : 25'
Width : 100'
Area
Bonus: 1033 sq/ft height 9'
First Floor: 3618 sq/ft height 9'
Garage: 1660 sq/ft height 9'
Second Floor: 614 sq/ft height 9'
Ceiling
Main Ceiling : 9'
Roof
Primary Pitch : 8:12
Roof Framing : Truss
Roof Load : 25
Roof Type : Shingle
Exterior Wall Framing
Exterior Wall Finish : Siding/Stone/Shingle
Framing : 2"x6"
Bedroom Features
Guest Suite
Main Floor Bedrooms
Main Floor Master Bedroom
Split Bedrooms
Kitchen Features
Breakfast Nook
Butler's Pantry
Eating Bar
Kitchen Island
Walk In Pantry Cabinet Pantry
Additional Room Features
Den Office Study Computer
Great Room Living Room
Hobby Rec Room Game Room
Loft
Main Floor Laundry
Master Sitting Area
Mud Room
Play Flex Room
Storage Area
Garage Features
Front Entry Garage
Oversized Garage
Lot Characteristics
Suited For View Lot
Outdoor Spaces
Balcony
Breezeway
Covered Front Porch
Covered Rear Porch
Grill Deck Sundeck
Wrap Around Porch
Code Compliance
Irc 2006
Structural Information Provided
Foundation Drawing
Structural 1st Floor Framing
Structural 2nd Floor Framing
Structural Roof Framing
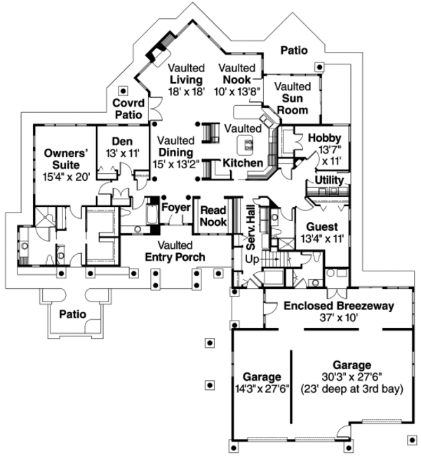
Rooms
Bonus Room - Unfinished:
855 sq/ft width 45' x depth 19'
Dining Room:
217 sq/ft width 15' x depth 14' 6"
Garage:
831 sq/ft width 30' 3" x depth 27' 6"
Garage Two:
391 sq/ft width 14' 3" x depth 27' 6"
Guest Bedroom:
146 sq/ft width 13' 4" x depth 11'
Living Room:
456 sq/ft width 20' x depth 22' 10"
Loft:
123 sq/ft width 8' 2" x depth 15' 2"
Master Suite:
306 sq/ft width 15' 4" x depth 20'
Nook:
133 sq/ft width 10' x depth 13' 4"
Storage:
227 sq/ft width 15' x depth 15' 2"
What's Included In This Plan Set
Each plan set is drawn at 1/4"=1' scale and includes the following drawings:
- Artist's Rendering: An artist's drawing of the home, usually viewed from the front, and general construction notes.
- Elevations: Shows the front, sides, and rear, including exterior materials, trim sizes, roof pitches, etc.
- Main Floor Plan: Shows placement and dimensions of walls, doors, & windows. Includes the location of appliances, plumbing fixtures, beams, ceiling heights, etc.
- Second Floor Plan (if any): Shows the second floor in the same detail as the main floor. Includes second floor framing and details.
- Foundation Plan: Shows the location of all concrete footings, floor beams, first floor framing, and foundation details. If there is a basement, a basement plan is included which shows all basement details. Foundation types vary; please call to confirm the foundation type of the plan you are interested in.
- Floor Framing Plan (if any): Shows location and spacing of floor joists and supporting walls or beams.
- Roof Framing Plan: Shows roof outlines, conventional framing/trusses, beams, roof framing details, etc. Specific details such as fireplaces, stairways, decks, etc. Details are drawn at 1/2" = 1' scale, and appear as needed throughout the prints.
- Section: Shows a cross-section of the home. Shows support members, exterior and interior materials, insulation, and foundation.
- Electrical Plan: A schematic layout of all lighting, switches and electrical outlets.
Plan Set
$2040.00
$2443.75
$4122.50
$4568.75
$4993.75
$1636.25
Foundation
$0.00
$688.50
Framing
$0.00
$561.00
Additional Options
$446.25
$68.00
$1636.25
$140.25
$335.75
$33.15
$140.25
* Alternate Foundations may take time to prepare.
** Options with a fee may take time to prepare. Please call to confirm.



