- Jump to:
- All (4)
- Floor plans (2)
Key Specs
3833
sq ft
3
Beds
3.5
Baths
2
Floors
2
Garages
Phone: 1-877-222-1762
See our Terms & Conditions and Privacy Policy.
Use Code CTBFALL
Residential Construction Guide
Learn Building Basics
This downloadable, 26-page guide is full of diagrams and details about plumbing, electrical, and more.
PLAN 72-380
This plan can be customized
Tell us about your desired changes so we can prepare an estimate for the design service. Click the button to submit your request for pricing, or call 1-877-222-1762 for assistance.
Plan Description
Floor Plans
Full Specs & Features
Dimension
Depth : 48' 8"
Height : 39'
Width : 95' 4"
Area
First Floor: 2098 sq/ft height 10'
Garage: 576 sq/ft
Porch: 724 sq/ft
Second Floor: 1735 sq/ft height 10'
Ceiling
Main Ceiling : 8'
Roof
Primary Pitch : 6:12
Roof Framing : Truss
Roof Type : Shingle
Exterior Wall Framing
Exterior Wall Finish : Siding
Framing : 2"x6"
Bedroom Features
Guest Suite
Walk In Closet
Kitchen Features
Breakfast Nook
Butler's Pantry
Kitchen Island
Walk In Pantry Cabinet Pantry
Additional Room Features
Den Office Study Computer
Family Room Keeping Room
Loft
Garage Features
Side Entry Garage
Entryway
Friend S Entry
Lot Characteristics
Suited For Corner Lot
Outdoor Spaces
Balcony
Covered Front Porch
Covered Rear Porch
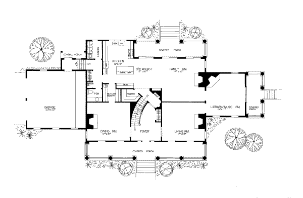
Rooms
Foyer:
75 sq/ft width 12' 1" x depth 6' 3"
Master Bathroom:
164 sq/ft width 18' 4" x depth 9'
Master Closet:
52 sq/ft width 8' 9" x depth 6'
Porch - Front:
351 sq/ft width 48' x depth 7' 4"
Porch - Rear:
210 sq/ft width 28' 8" x depth 7' 4"
Porch - Right:
131 sq/ft width 18' x depth 7' 4"
Study:
152 sq/ft width 13' 5" x depth 11' 4"
What's Included In This Plan Set
All plans are drawn at ¼” scale or larger and include :
- Foundation Plan: This page shows all necessary notations and dimensions including support columns, walls, and excavated/unexcavated areas.
- Exterior Elevations: Views of the home from all four sides showing exterior materials and measurements.
- Floor Plan(s): Detailed plans for each level showing room dimensions, wall partitions, windows and doors, etc.
- Cross Section: A slice of the home from roof to foundation, showing important details like stairs and wall construction.
- Overhead Roof Plan(s): A view of the home from above showing roof pitch, peaks, valleys, and other details.
- Construction Notes and Details: Shows the builder how things come together, like walls, the chimney, insulation, and more.
Plan Set
$1189.32
$1301.52
$1413.72
$1077.12
Foundation
$0.00
Additional Options
$165.75
$51.00
$420.75
$127.50
$335.75
$33.15
$127.50
$72.25
$0.00
$845.75
* Alternate Foundations may take time to prepare.
** Options with a fee may take time to prepare. Please call to confirm.



