- Jump to:
- All (4)
- Floor plans (2)
Key Specs
3752
sq ft
4
Beds
3.5
Baths
2
Floors
3
Garages
Phone: 1-877-222-1762
See our Terms & Conditions and Privacy Policy.
Use Code CTB2026
Residential Construction Guide
Learn Building Basics
This downloadable, 26-page guide is full of diagrams and details about plumbing, electrical, and more.
PLAN 17-2498
This plan can be customized
Tell us about your desired changes so we can prepare an estimate for the design service. Click the button to submit your request for pricing, or call 1-877-222-1762 for assistance.
Plan Description
Floor Plans
Full Specs & Features
Dimension
Depth : 86' 8"
Height : 36' 9"
Width : 101' 8"
Area
Bonus: 677 sq/ft
First Floor: 2771 sq/ft
Garage: 955 sq/ft
Second Floor: 981 sq/ft
Ceiling
Ceiling Details :
Main Ceiling : 10'
Upper Ceiling Ft : 9'
Roof
Primary Pitch : 14:12
Roof Framing :
Roof Load : 45
Roof Type :
Secondary Pitch : 5:12
Exterior Wall Framing
Exterior Wall Finish : Stone Veneer
Framing : 2x4
Insulation : R-13
Bedroom Features
Main Floor Bedrooms
Main Floor Master Bedroom
Split Bedrooms
Upstairs Bedrooms
Walk In Closet
Kitchen Features
Breakfast Nook
Eating Bar
Kitchen Island
Walk In Pantry Cabinet Pantry
Additional Room Features
Den Office Study Computer
Great Room Living Room
Main Floor Laundry
Garage Features
Front Entry Garage
Lot Characteristics
Suited For View Lot
Outdoor Spaces
Covered Front Porch
Covered Rear Porch
Grill Deck Sundeck
Outdoor Kitchen Grill
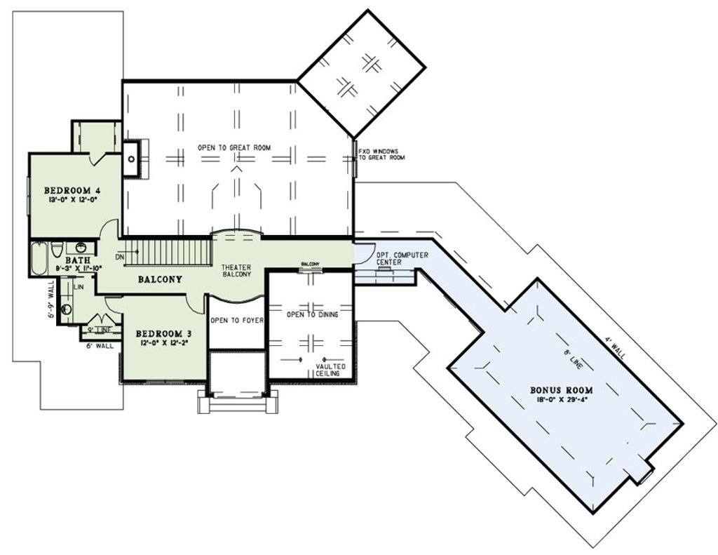
Rooms
Bath 2:
width 11' 6" x depth 5' 6"
Bath 3:
width 9' 3" x depth 11' 10"
Bedroom 2:
width 11' 4" x depth 11' 10"
Bedroom 3:
width 12' x depth 12' 2"
Bedroom 4:
width 12' x depth 12'
Bonus:
677 sq/ft width 18' x depth 29' 4"
Breakfast:
width 11' 4" x depth 14' 6"
Covered Front Porch:
48 sq/ft width 8' x depth 6'
Covered Rear Outdoor Living:
width 14' x depth 12'
Dining:
width 12' x depth 16' 10"
Garage:
955 sq/ft width 23' x depth 38'
Great Room:
width 22' 4" x depth 22'
Kid's Nook/Mud Room:
width 8' x depth 8'
Kitchen:
width 11' x depth 16' 9"
Laundry:
width 12' x depth 7' 8"
Master Bath:
width 11' 6" x depth 18' 2"
Master Bedroom:
width 15' 4" x depth 20' 2"
Rear Patio:
width 14' 10" x depth 10' 6"
Safe Area:
width 5' 4" x depth 5' 4"
Study:
width 12' x depth 13'
What's Included In This Plan Set
Plans are typically drawn to ¼” scale and include:
- Foundation Plan(s): Most plans are available with a slab or crawlspace foundation. Optional walkout style basement (three walls masonry with a wood framed rear wall with notes for the builder to locate the windows and doors) and optional full basement foundation available if the plan allows, at an additional cost. (Walk out is not shown on elevations unless finished walk out.)
- Floor Plan(s): Each home plan includes the floor plan showing the dimensioned locations of walls, doors, and windows as well as a schematic electrical layout.
- Exterior Elevations: All plans include the exterior elevations (front, rear, right and left) that show and describe the finished materials of the house.
- Overhead Roof Plan(s): This is a “bird’s eye” view showing the roof slopes, ridges, valleys and any saddles.
- Cross Section(s): **Cross section views available for an additional fee. ** (cut throughs where applicable)
- Building Section(s): The building sections are vertical cuts through the house and the stairs showing floor, ceiling and roof height information. **Cross section views available for an additional fee. ** (cut throughs where applicable)
- Construction Notes / Detail(s): Shows basic parts and assemblies recommended for the home so the builder can see how things come together.
- Other Note(s): These are included for many interior and exterior conditions that require more specific information for their construction.
Plan Set
$1650.00
$1750.00
$2000.00
$3300.00
Foundation
$0.00
$0.00
$299.00
$299.00
Framing
$0.00
$299.00
Additional Options
$299.00
$80.00
$165.00
$395.00
$39.00
$165.00
* Alternate Foundations may take time to prepare.
** Options with a fee may take time to prepare. Please call to confirm.



